圣东尼材质体验中心(SANTONI MEC)是由白鹭设计受圣东尼针织机器有限公司委托进行室内设计,为纺织业专业人士打造的一处现代研发中心。他们在这里可以与客户会谈,分享想法并一起完成各种定制化项目。它将成为启发灵感,进行理念实验与知识分享的一个枢纽空间。为满足多种多样的需求,它的室内设计十分灵活多变,空间显得开放明亮,简洁利落,意在成为设计师们既能舒适相处又能创意丛生的港湾。
设计未来
MEC的设计是为了迎合现代纺织品生产商在产品方面所一贯倡导的可持续性和未来设计思维。圣东尼无缝和圆针织技术促成了这样成功的合作伙伴关系的行程,材料和设计之间可以实现完美的协同。圣东尼上海首席执行官皮特(Gianpietro Belotti)表示:“建立这一新的协作网络让我们能够以不同的方式思考,并洞察不同的新领域。从而更好的完成我们用尖端解决方案激励世界编织者的使命。”
△ 空间轴测图
挑战与解决方案
圣东尼需要一个灵活、易于变化的空间来适应不同用途和项目。为了实现这一目标,建筑师设计了一个可调吊灯系统和易于移动的矮柜。简洁性和适应性是最终设计的核心。其理念是,客户可以使用提供的区域,轻松地在空间内安插不同的产品、样品和演示。
该公司还要求一个开放、明亮和高科技的空间。为了达到这一效果,Bylu设计公司使用了明快的白色油漆和水磨石地板,增强和反射从窗户进来的光线。为了营造科技感,他们加入了金属网、不锈钢、LED墙和触摸屏等元素。在内饰需要令人感觉温暖和受欢迎的地方,木地板和柔和的颜色被用来创造一种更人性化的氛围。其结果是一个干净、精致、通风的空间与所有科技和未来派的东西和谐一致。
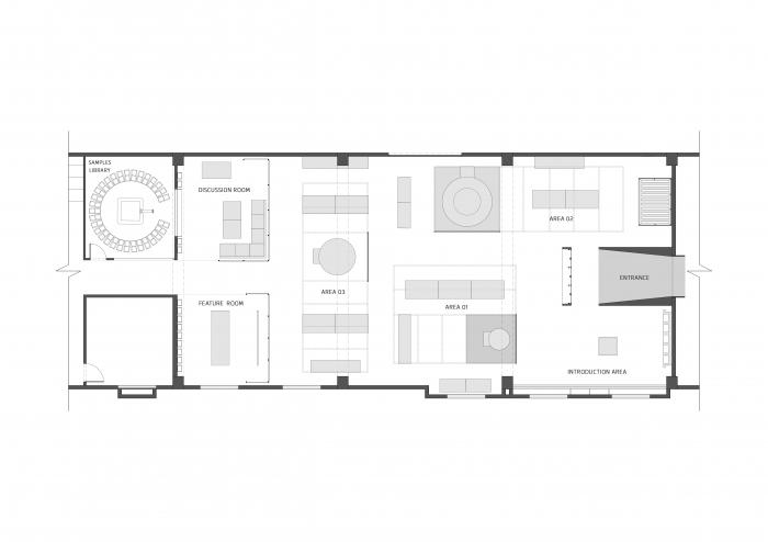
△ 平面图
引人入胜的入口
空间本身是所有圣东尼上海的访客都会参观的一个重要区域,由入口、概念阐释区、一般展示区、特色概念区和休息室组成。游客首先触达的是入口。这一入口连接圣东尼工厂前台与材料体验中心。“这不仅仅是一个入口,”总建筑师路易吉·阿卡杜(Luigi Arcadu)说,“这是一次体验。这是针织技术从现在走向未来的象征。”入口的外形是一个平行六面体,表面覆盖着铝面板。内部采用了蓝色环氧涂料,并制造出一个轻微的反向漏斗形状效果,以一个3x4m的透明LED墙作为结束。由此产生的空间使参观者从进入展厅的那一刻起就赞叹不已。
△ 入口
探索空间
概念阐释区是参观者进入的第二个区域。它包含两个白色立方体、用于演示的数字屏幕和一个LED墙,给人一种标志性的感觉。接下来是令人印象深刻的一般展示区,专门展示圣东尼的机械、面料和生产工艺。这个空间被分为三个不同的区域。藉由独立的悬挂灯光系统、配色方案和隔离物,每一个区域都被显著区隔并且独具特色。整个区域有趣而且灵动,游客在其中可以方便的游走和查看样品或产品。创意工作室总监伊娃•德•拉特(Eva de Laat)表示,鼓励游客进行收集、探索和发现的想法是圣东尼的愿景和最终设计的核心。
△ 概念区
一般展示区还设有展示样品的矮柜,以及一个装有触摸屏的玻璃幕墙。触摸屏将用于阐释每个展品功能、开发过程以及背后的故事。附加信息可以以贴纸的形式添加,当与屏幕上的项目重叠时,可以创建增强现实的效果。
△ 展览区
△ 样品区
探讨样品和初样的区域
特色概念区中展示的是最前沿的项目,为访客提供了发现新产品和纺织品的机会。这一区域被白色金属网隔开,给人一种私密舒适的感觉。中间的一张长木桌为讨论样品和初样提供了一个极好的聚拢与讨论的场地。
△ 特色概念区
休息室区域是最终落脚点,这里舒适且吸引人,是放松和讨论项目的好地方。这里的木地板高于水磨石地板,放置了沙发并用网格隔板做了隔断,营造了温暖和亲密的氛围。一个凸窗连接将休息区与圣东尼材料图书馆相连。
△ 走廊
△ 讨论区
配备高科技的材料图书馆
圣东尼的材料图书馆是整个空间的点睛之笔;这个图书馆中可以收藏多达2000件样品,并且管理高度自动化,令人印象深刻。图书馆中心的机械臂可以将把访客选中的任何样品送到休息室。这一机器人应用无疑将成为访客们谈论的焦点,它是对圣东尼及其合作伙伴所具有的创造力和技术创新的致敬。首席执行官皮特(Gianpietro Belotti)评论道:“材料图书馆空间是我们知识的顶峰,是我们活动的总和。实验室测试、创新思维、新设计和出人意料的成果在这里被系统地收集和存档。我梦想有一天,机器人能全天候运行,以满足远程和现场客户需要以及他们的创新欲望。”
△ 剖面图
△ 剖面图
项目信息
项目名称:圣东尼材质体验中心
完工年份:2019
建筑面积:400 SQM
项目地址:中国上海
室内设计公司:白鹭设计
网站:www.byludesign.com
联系邮箱:[email protected]
设计团队:LUIGI ARCADU┃STEFANO BAI┃SARA CIRIBIFERA┃CHENEY CAO┃YI ZHANG
客户:SANTONI
公司地址:中国上海市静安区万航渡路888号16A
摄影版权:Sven Zhang

BIM建筑网






















