Jim Caumeron Design完成了距离菲律宾马尼拉市仅3小时车程的周末度假寓所。项目坐落于一个封闭式的小区,周边是地中海风格的住宅。巨大的白色体量从周围环境中突显出来,两道横向切口创造了与外部的联系,同时产生了大量的自然通风。
项目坐落于一块300平米的场地上,而Jim Caumeron Design打造的这栋全景住宅仅占场地空间的三分之一。剩余的未建空间被设计成与室内产生联系的花园,创造出令人愉悦的框景。白色体块上的水平切口不仅起到窗户的作用,在炎热的夏季还能进行通风。由于地块下沉1.5米,一层的起居室和餐厅也随之下沉。然后该空间向花园空间延伸,花园里白色鹅卵石铺地,反射出室内的光线。
由于气候是非常重要的考虑因素,因此全景住宅在通风和朝向上都进行了优化。西侧墙面是完全封闭的,以保护起居室免受日晒。而服务用房则设置于此处,因为起居室需有高大天花,以允许热空气上升并离开。在气温上升的早上,嵌入式的顶棚也能保护它免受阳光暴晒。
在二层,水平和对角切口的结合包围着结构,这同样是为了引入自然光和促进通风。大量元素如太阳照射最强烈的侧墙上的小窗和倾斜的天花板,有助于引导空气的流动,降低室温。楼梯之间通向主卧,楼梯平台被改造成孩子的玩耍空间。最不可思议的是,即使在楼上,你也能感受到空气的循环流动。
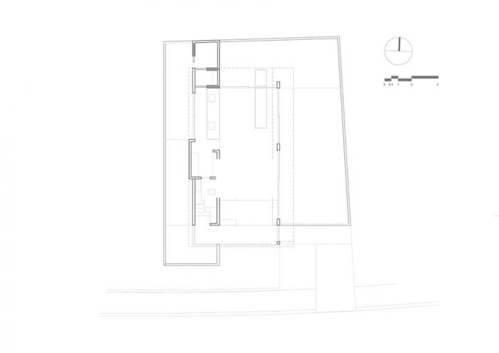
△ 平面图
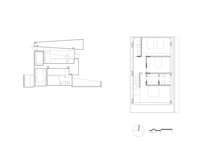
△剖面图&平面图
△剖面图
△光照与通风分析
项目信息:
项目名称:全景住宅
建筑设计:jim caumeron design
项目地点:tagaytay, philippines
总面积:200sqm
项目年份:2019
微信公众号:xuebim
关注建筑行业BIM发展、研究建筑新技术,汇集建筑前沿信息!
← 微信扫一扫,关注我们+

BIM建筑网
















