Bloco Arquitetos通过增加砖表皮和两座钢制凉亭,对巴西的一座住宅项目进行了更新和扩建。项目坐落于巴西利亚市中心附近一个名为Lago Sul的社区,场地上原有的住宅被裸露混凝土网格所包裹。如今,该元素服务于更新后的结构,房屋以此命名为“网格住宅”。“地块的原所有者计划建造一座更大的住宅——两层高,350平方米”,建筑师说,“而相反,由于资金问题,他决定建造房屋的全部基础,仅使用150平方米中的一部分,且是一座单层建筑。”然而,在房屋扩建计划推进之前,房屋即被售卖了。
项目坐落于一个住宅时常被拆除并重新设计的社区,Bloco Arquitetos决定利用原有结构和部分原有墙体。由于原来建筑占据的面积不足以适应新项目,因此一个新的混凝土网格被创造了出来。然而,由于原基础、柱子和梁结构的布局缺乏规律,因此,新网格结构基于原结构的无规律性,遵循着一种“假想的”生长模式。它矗立于原始结构和新基础之上,并使用了两种不同截面的柱子:40x40cm 和 40x15cm。
“新网格起到嫁接的作用,连接新旧墙体,并支撑扩建部分的其它结构”,设计团队解释道,“具有不同类型开口的砖表皮根据减少太阳照射和保护隐私的需要进行排布。这一策略类似于由巴西现代主义建筑师奥斯瓦尔多·布拉克(Oswaldo Bratke)(1907-1997)设计的Ascar Americano住宅中所使用的策略。新增的两座钢制凉亭用来容纳额外的服务设施,如车库、室外厨房和桑拿室。”
△ 原有场地状况
△原有场地状况
△原有场地状况
△原有场地状况
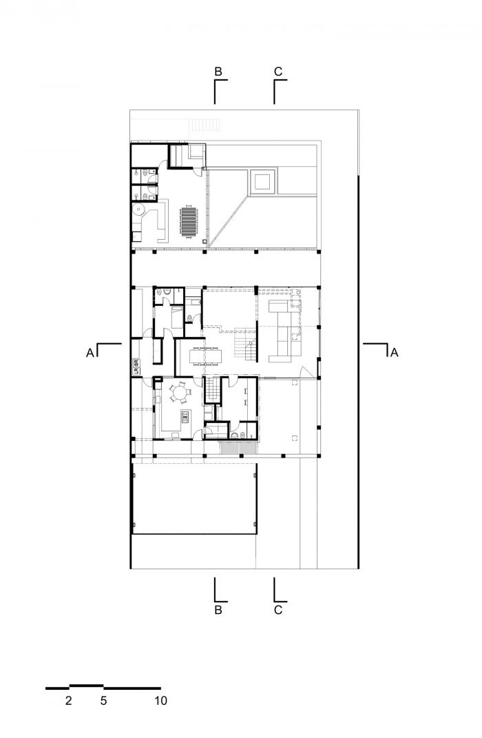
△一层平面图
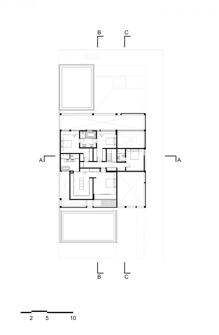
△二层平面图
△剖面图
△形体演变
项目信息
项目名称:网格住宅
项目地点:巴西利亚,巴西
面积:410平方米/ 4,413平方英尺
设计方:bloco arquitetos– daniel mangabeira, henrique coutinho and matheus seco
合作方:tatiana lopes, victor machado, and guilherme mahana
施工(承包商):vítor odísio engenharia
摄影:haruo mikami

BIM建筑网



























