△ 鸟瞰图
承德最为著名的是已被列为世界文化遗产的清朝皇家行宫“避暑山庄”和寺庙群“外八庙”,它们赋予了这个城市一个特殊且宏大的历史场景。在这样的背景下设计博物馆,最先明确的方向就是尊重历史与自然,以一种谦逊的态度将建筑融入环境之中。
△ 建筑主入口
△ 入口广场中轴线上远眺“磬锤峰”
△ 入口檐下远望
△ 场地主入口看下沉庭院-主片
基地处于古建筑和风景名胜的“环抱”之中,属于三级文物保护区,受国家文物局、河北省文物局等单位的制约,建设条件非常严苛,其中对建筑影响最大的因素是限高7m。
△ 区位分析
△ 区位关系分析
△ 融入自然的建筑
首先,对建设场所进行调整与组织。将基地整体下挖约6m,使下沉庭院如同新的“地面”。建筑由此向上布置两层,使出地面的部分控制在7m以内,仿佛“藏”在环境中一样。建筑结合庭院分散布局,形成良好的采光及通风效果,消除了常规地下建筑的封闭感。下沉庭院边缘,结合当地古建中常见的台基形式,做了层层跌落的台地。
△ “隐藏”的建筑
△ 下沉庭院
△ “空中连桥”
△ “空中连桥”
△ 建筑局部
△ 下沉庭院边缘的“清水”片墙
△ “藏起来”的建筑
△ 藏起来的楼梯
△ 楼梯上空
△ 一层展厅回廊看内庭院
结合“藏起来”的体量及周边独特的景观,将屋顶设计成城市的观景平台。建筑的功能被放大,既能够融入环境,又能够反过来表现环境;既可以向内、向下参观特定的展品,又可以向上、向外欣赏鲜活的“世界文化遗产”。博物馆实现了全方位的“博物”,这也是它区别于其他博物馆建筑的最大不同。
△ 视线分析
△ 展馆屋顶观景平台
△ 展馆屋顶观景平台
△ 下沉庭院
建筑中心是一个马蹄形的室外庭院,并点缀了两棵代表山庄特色的油松,营造出一种静谧的氛围。以“小中见大,咫尺山林”的姿态展示承德的历史文脉与意境。
△ 双马蹄形内庭院
△ 双马蹄形内庭院
△ 双马蹄形门把手
庭院整体延续了避暑山庄的园林意境,为游客和工作人员提供了舒适的驻足空间和行走体验。
△ 雪中的油松,隐约可见其八角形的树穴
抽取外八庙藏式建筑中经典的梯形窗元素,形成新的设计语言,除了在所有砌筑墙面上使用了倾斜的混凝土线条,还在部分墙上直接运用了“梯形”。
△ 墙体上的倾斜混凝土线条
△ 从“新”的地面长起来的建筑
△ 承德博物馆:花格墙立面与远处的“磬锤峰”
△ 梯形窗元素
△ 下沉庭院雪景
设计图纸
△ 总平面图
△ 功能分析图
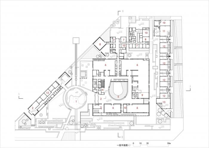
△ 一层平面图
△ 地下一层平面图
△ 剖面图A-A
△ 剖面图B-B
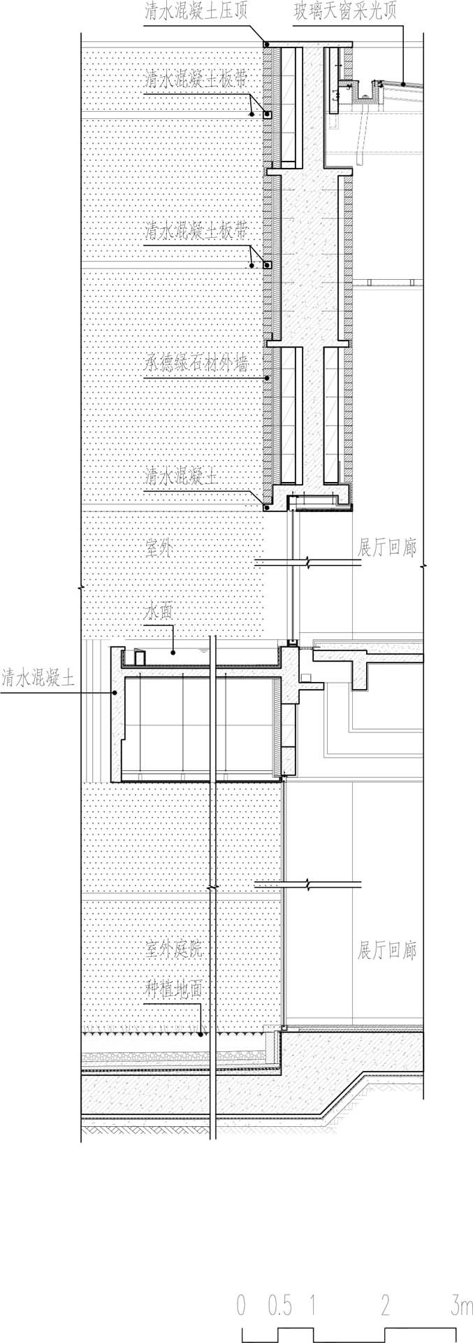
△ 外檐详图出图
项目信息
项目类型:博物馆
项目地点:承德市,中国
建筑事务所:华汇营造
面积:25163m²
项目年份:2019
摄影师:Gang Wei
主创建筑师:周恺
设计团队:王建平、唐敏、黄彧晖、高洪波
结构设计:毛文俊
景观设计:黄文亮
室内设计:沈薇
撰文:吕俊杰

BIM建筑网

















































