Dpot建在圣保罗的一个1500平方米的地块上,这座地块以前的房屋曾被一个花园包围。在研究现有土地使用和房屋占有法律(Soil Usage and Occupation laws)后,我们意识到,拆除现有建筑物之后,新建筑的使用指数与退界红线等因素相较与现有参数而言非常不同(并且不利)。因此,为确保相同建造潜质将意味着对现有结构进行翻新和改造。
解决方案为重新组织原有建筑的内部空间和外立面,使其适用于商业用途。这种改变虽然很大,但是保留了住宅“过去”的非正式和放松的形式,产品可以在一间屋子里陈列展示。天花板高低的变化和夹层的存在使得每个空间有了不同的尺度,将不同体积的空间相互排列陈设,像万花筒一样。
最后,两个重要想法:在商店内总是可以看到花园,在商店外总是可以看到外部的装饰。解决方案为将所有空间下方的剖面“撕裂”(除了服务区域的部分),并在建筑整个外部等距镶嵌玻璃条,以此提供设计期望所达到的透光度。我们选择在建筑外部涂以水泥,在内部饰以木板。这样一来,建筑内外整合完毕,巨大的水泥空间似乎是漂浮在休息空间上方,置之其身于葱郁的花园中。
设计图纸
△ 总平面图
△ 地下一层平面图
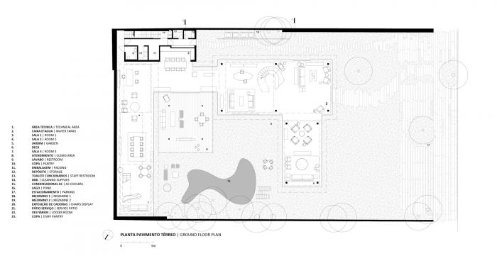
△ 地面一层平面图
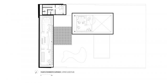
△ 上层平面图
△ 正立面&剖面图
△ 剖面图&纵向剖面图
项目信息
项目类型:商店
项目地点:JARDIM AMÉRICA,巴西
建筑事务所:Isay Weinfeld
面积:770m²
项目年份:2015
摄影师:Fernando Guerra | FG+SG
厂家:Art Steel,Cia de Iluminação,Clatt,Concresteel,Deca,Eurocentro,Hansgrohe,Microcimento Do Brasil,Portinari,Pratikline,Tecnics,Viroc
主创建筑师:Elena Faria Scarabotolo
设计团队:Cristiano Kato, Elisa Canjani, Katherina Ortner, Sara Leitão, Sebastian Murr, Sophia Lin
总承包商:Alle Engenharia
结构设计:Leão e Associados
暖通工程:Logitec
电气工程:Zamaro
照明工程:Maneco Quinderé E Associados
自动化设计:Oguri Tecnologia Integrada
景观设计:Rodrigo Oliveira
湖水设计:Ecosys Lagos Ornamentais
标识设计:Roberto Cipolla

BIM建筑网


















