项目背景
马家浜文化因发掘于浙江省嘉兴市马家浜遗址而得名,主要分布于太湖地区,南达浙江的钱塘江北岸,西北至江苏常州一带。据放射性碳素断代并经校正,年代约始于公元前5000年,距今有7000多年的历史。马家浜文化及其后续的崧泽文化、良渚文化的发现及确立,表明太湖地区的新石器文化源远流长、自成系统,具有鲜明的地域特色。
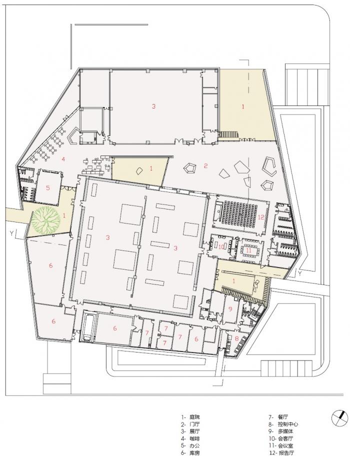
△ 总平面图
形体生成及功能布局
建筑通过几个简单纯粹的原型单元体拼接组合,形成了一个有趣的游览序列,就像原始的聚落一样,每个单体之间形成了迂迂回回的小路。博物馆的展览、休憩空间沿着这条路径展开,入口处通过一个角院拉开博物馆的浏览序幕,有一种沉稳大气的代入感。进到门厅后正对着主展厅,而主展厅紧邻的天井两侧穿通,重叠着三重空间:门厅、天井、休息厅和远处的遗迹。一条狭长的通道引导着人们沿着转向东侧继续前进。空间随着行进变得愈发明亮开阔,茂盛的农田在眼前横向展开,远处青年雕塑家的作品与室内空间形成对景,建立起一种静默的对话。博物馆的研究办公、库房区间沿南侧布置,与参观区域相隔离,相对静谧。
意象与材质
基地周围遗址出土的陶器,是马家浜文化的典型特征,我们通过运用陶土色的清水混凝土,还原出一处具有原生态质感的远古文明展示“容器”。阳光帮助刻画出细腻的建筑细部,在几个简洁的庭院空间里,无时无刻不在为建筑带来改变。不同于光洁的现代立面材质,这种粗糙的、经过原始手段处理的材料,使其更容易接受时间和大自然的影响。在不同气候下,随着温度、湿度、以及时间的差异,墙面也变幻着不同的色彩。仿佛有了生命般,融入这片田野。
空间特色
游廊:时空长廊游廊的东侧是城市,西侧是马家浜文化遗址,东西两面分别代表着两个不同的时代,穿越其中犹如置身于时光长廊。游廊同时也是各种功能的中枢场所,南北两侧分布着各个展馆、多功能厅等空间。
庭院:转折空间
建筑形体间自然形成了五个庭院,形成了室内功能交接处有趣的过渡,在空间转承启合的节点处,形成了每个庭院独特的性格,点缀并丰富了整个建筑的空间体验。
观景台:与遗址对话朝向马家浜遗址方向,是一面全景打开的视窗,作为参观的终点,序列在此被推向高潮,吸引着人群走向遗址。
设计图纸
△ 平面图
△立面图
△剖面图
△分析图
△轴测图
△模型1
△模型2
△模型3
△模型4
项目信息
项目类型:博物馆
项目地点:嘉兴市,中国
建筑师:TJAD/曾群建筑研究室
面积:7840m²
项目年份:2019
摄影师:章勇
主创建筑师:曾群
设计团队:曾群、吴敏、李荣荣、马忠、冯婉垚、陈伟鹏、孙嘉秋
结构设计:陈曦、奚嘉锴
给排水设计:施锦岳、季兴立
暖通设计:周谨、边争
电气设计:谷屹岩、陈蓉瑛
委托方:嘉兴市文化广电新闻出版局

BIM建筑网



































