引言
针对城市化发展过程中“重物轻人”的问题,未来社区中心建设“以人为本”的发展道路,从注重物质建设转向更加注重“人的城市化”,不仅关注好的建筑,实现城市物质空间现代化,并且强调以人民群众对美好的向往为出发点,回归城市本生活本源样子。
向城市打开的生活体验馆
本案位于四川省成都市成华区,昭觉寺南路与中环路昭觉寺横路段交叉口东北侧,街角界面向城市打开。毗邻绿化覆盖高达88.41% 的昭觉寺城市绿肺区,主城内最大城市公园海滨公园。设计师希望建造一座成都的又一奢尚中心,延续商业气息秉持奢侈品店般的轻奢质感,提升整个城市的审美语境,展现一种高规格的生活理念。
△区位分析
内部配套服务于商住地块,打造一个城市型的开放式社区中心。建设新型城市功能单元,聚焦“人本化”,把社区中心建设成让城市更有温度的生活体验馆。
△总平面图
创造有活力的次文化空间
本案分别由五个大小不一的盒子堆叠而成,采用积木式体块穿插的形式,让每个盒子相互咬合增强了形体的透视效果,各部分体块各显独立,却又紧密相连。同时化解了大体量建筑带来的沉重与压抑感,强调建筑体块与内部功能的有效结合。设计师在街角处以退让的方式强调入口,开展与周边形成相适应与平衡的共存关系,同时也充分的利用建筑用地,创建额外的户外公共空间。
△体型生成图
在建筑中创造有活力的次文化空间,是开放、交互、渗透、参与性和多元跨界,营造创意型与集中性。建筑功能的分布使这些空间的组合,充分体现了社区中心实践的空间载体。
△剖面图
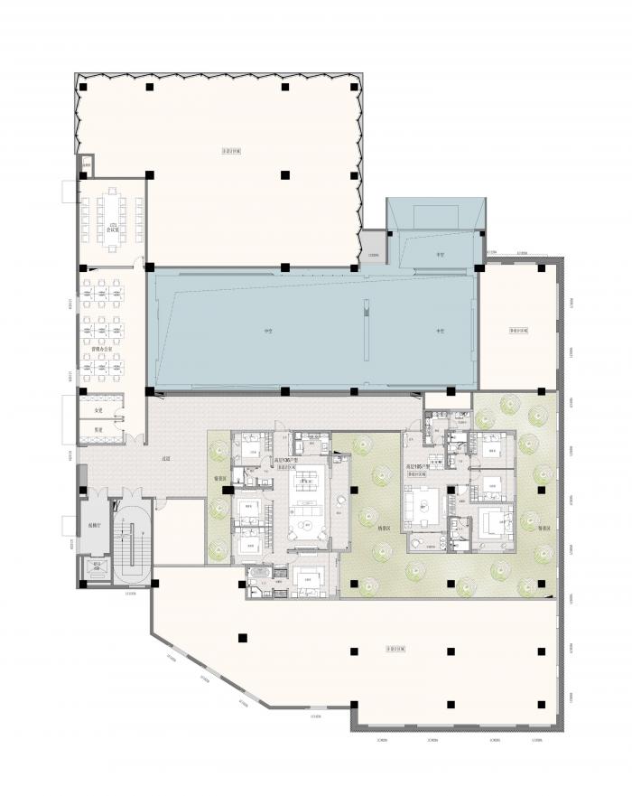
△ 一层平面图
△ 二层平面图
充满韵律的表皮语言
立面材料分两个主要元素,入口处运用米黄色石材和铝合金格栅幕墙的交织,整体色彩协调性较好,实体墙和半透明材料的交替形成表面的韵律。表皮以统一而富有变化的造型带来强烈的视觉冲击,营造出一个洁净的环境同时又是相对较为素雅轻奢的立面。
△表皮材质
北立面采用了彩釉玻璃幕墙,将室外的光源通过建筑外墙的玻璃以及天窗反射到室内空间,让整体效果更加充满韵律以及活力。摆脱了保守的束缚,以大量创新的手法作为建筑的装饰立面,这并不像传统概念中的表现手法,似乎以一种特定的立面形式来表达商业角度的宣传。
从繁华到静谧的连廊空间
景观中采用现代简洁的设计手法,带有铬棒交织形成的菱形的特色景观雕塑显得时尚与摩登,展现出景观装置艺术的独特魅力。从繁华到静谧的一个空间过渡,繁华都市建筑文化的首选以一种全新的形式诠释,穿梭于城市之间。
结语
塑造个性化的社区生活空间,设计更加优质宜人的公共空间,愿意停留、互动,有助于创造难忘的体验。实现人与人和谐为价值追求、满足居民美好生活向往的新型城市功能单元,建设目标是实现“人的城市化”,让现代城市更有温度。
项目信息
项目名称:成都梵锦108项目示范区
地理位置:成都市成华区昭觉寺南路与川陕路交汇
项目业主:金地商置&弘阳地产
项目功能:社区中心
建筑面积:6828.9平方米
建筑设计:上海成执建筑设计有限公司
设计总监:姜超 刘巍
设计团队:夏萍萍谢厚旻 于颂 彭朝飞
建筑施工图设计:筑博设计股份有限公司成都分公司
景观设计:LAURENT罗朗景观
泛光设计:上海徽之度照明科技有限公司
设计时间:2019年6月
竣工时间:2020年4月
项目摄影:三棱镜建筑景观摄影

BIM建筑网

































