△ 集屿 ©李金辉
△ 集屿©一乘建筑
"建筑意味着把一个场地转变成具有特定性格与意义的场所。设计就是造就场所。换句话说,场所是有清晰特性的空间,人必须要能体验到环境是充满意义的。”
——诺伯尔·舒尔茨《场所精神-迈向建筑现象学》
01
范式:小尺度与大城市
9㎡的集屿,是这座城市里,一种新的空间范式的提炼。它并不因其小而匮乏深度,它孕育着理想、思想、生活、文化、和邻里这些要素。9㎡,针对的是城市快速发展中,稀缺的一种空间尺度,它和蓝图、速度、宏伟无关,它是一种小而轻的空间叙事,容易忽视但不可或缺。建筑师在空间现实和社会意义层面找到了介入的视角,9㎡让人和人相互靠近并获得存在的真实感。
△ 《癫狂的纽约》雷姆·库哈斯(图源网络)
《癫狂的纽约》,这本给曼哈顿补写的宣言写到:宣言的致命弱点是与生俱来的证据缺失,曼哈顿的问题恰恰相反,它有堆积如山的证据,却没有宣言。集屿,在快速的大背景下,作为一种带有理想和关怀的空间载体最终落地,它为城市日渐衰退的社区氛围,做出了一定诠释和补充。
△ 《找回趣味之城》©一乘建筑
《找回趣味之城》在描绘城市里的大街小巷,我们想寻找雅各布斯写过的街道尺度和邻里安全监督的意义,这些空间不像那种街块簇拥下,覆盖着层层建筑魅影的都市意向,它们有自己的个性和张力,或是公共空间、或是可触可及的景观屋面,而集屿就在这其中。
02
公共空间:一种非刚需的空间类型
△ 区位图 ©一乘建筑
集屿位于建成于上世纪90年代的香蜜三村,近20年的变迁更迭中,陈旧的社区硬件加速了活力的丧失,激增的路面车位不断占用着这个社区的底层公共空间。
△ 公共空间分析 ©一乘建筑
我们见过公共绿地更改性质建设高楼,这种公共空间的“挤占”实际上比比皆是。因此这一次实践,我们和业主的其中一个共同目标就是,在满足功能的前提下去还原一个公共性的节点,要在缝隙中创作。
△ 公共空间分析 ©一乘建筑
△ 社区商业构成研究 ©一乘建筑
03
策略:想象建筑融入在场所中的样子
集屿的前身是一个社区空调维修店,踏勘现场的时候我们发现许多空调零部件及油污散落在入口前,大家会有意的避让开这个区域,到干洗店取衣服或到药店取药。居民没有太多地方可以停留,场所的感受更多是杂糅的或是消失的和模糊的。邻里之间不缺乏连接,但缺乏真正的联系。
△ 改造前 ©一乘建筑
△ 改造后 ©李金辉
设计开展最难的部分不是来自于项目自身的挑战,而是来自于左右邻居施工中不解的“问候”,不过这些分歧都在施工的过程中逐一的化解,正如集屿的“屿”字的寓意一样,这里最终成为了大家喜欢的岛屿。
△ 空间原状 ©一乘建筑
面对宽度不足三米的狭长型场地,我们需要抓住主要矛盾,就是如何让大家在远处可以轻易的看到我们,在内部亦可以得到舒适的体验。
△ 功能轴侧分解图 ©一乘建筑
在建构的整体策略当中,最核心的是立面门头的整体考虑。内部定制的置物架与夹层,提升了空间使用效率。
04
立面:过度与消解
立面的构成逻辑,犹如一个建筑装置,嵌入到这个空间单元。立面的外延是一个屋檐的设计,象征着从城市回到家的感觉,向内则是一段弧线的吊顶,进一步消解和让人放松下来。
△ 模型 ©一乘建筑
远眺这个空间的第一印象,就是屋檐和它并不喧哗的质感,空间以亲和的姿态敞向社区,形成了一个客厅式的空间场所记忆。我们将原本厚重低矮的灯箱拆除后,空间的前场变得轻盈与开阔,这里是使得心理产生过渡变化的一个重要区域。
△ 建筑装置式的立面设计 ©一乘建筑
向内部空间延伸的弧形吊顶,以入口玻璃门的顶点,顺势延伸至内部空间的最高点。既消解了内部空间窄和高的局促感,也给这个空间带来一丝神秘和仪式性的感受。
△ 内部空间的弧形吊顶 ©李金辉
在这一道门的内外之间,即便当大门是敞开的情况下,我们仍可以明显的感受到气氛会变得安静和温暖。
△ 模型 ©一乘建筑
在施工的过程中,热心的邻居时常会帮我们出设计方面的主意,起初这种交流我们有点抗拒,但渐渐发觉在这样一种共生的环境下,能提意见和保持交流更为宝贵,至少这种参与性是可贵的。正如入口右侧的这一道墙的设计,我们称这是一个顺势而为的设计,也算是和邻居的合作成果。
△ 与邻居顺势而为的隔墙 ©李金辉
屋檐的结构既是独立的,也是从现状生长出来的。缝纫机和花池还在原来的位置,新旧的脉络和依存关系,仍旧良好保留着。
△ 集屿入口 ©李金辉
在集屿进入运营状态之后,我们有过几次回访,老板娘始终有条不紊的保持着出品,迎接着着客人,入口的座位也常常是大家争抢的地方。
05
剖面:光线进入的方式
剖面的深入研究,是集屿这个项目成败的关键。因为我们不仅要在小尺度里,找到更多功能的可能性和放置,还希望这个空间的采光可以得到改善。
△ 剖面研究 ©一乘建筑
入口挑高这部分的改造,可以让日光最大化的进入到室内,这对内部空间有限的采光而言,有着非常积极的改善作用。灯箱这种手段更像一种“凸”的表达,而集屿的入口更像是一种“凹”的表达,同样是照明和标志性,我们希望集屿看上去有些不同,光的感觉也希望更柔和。
△ 集屿入口 ©李金辉
正立面竖条形的采光高窗,少量的获取着白天的光照,可以让室内保持一种宁静感。夜幕降临,它所透出来的光线,又像是一只凝视着这个城市的眼睛。
△ 夜幕中的集屿 ©李金辉
△ 邻里关系©李金辉
△ 内部看向入口 ©李金辉
△ 屋顶©李金辉
06
识别感:不存在的存在
LOGO越大,功能的识别感越强,但当LOGO弱化到极小的状态时,我们是否就感知不到空间了?带着这个设想,我们尝试去用氛围,而不是夸张的形式来创造识别感,就像诺伯尔·舒尔茨提到的 “特定性格与意义的场所”,集屿的使命应该是朝这个方向去努力。
△ 集屿和环境 ©李金辉
△ 局部 ©李金辉
△ 集屿夜景 ©李金辉
集屿就是一个精神的孤岛,不在意喧嚣也不在意冷漠,它完完全全的展开和封闭,既是一个卖场,也是一个修心的地方。达到这种知行合一的状态,取决于业主和设计师的高度契合。
△ 集屿夜景 ©李金辉
因此,它看上去的“不知道是什么”,激发了人心深处的好奇,空间的氛围反倒变成了全部,潜移默化的“生根”在这里,根本不需要去呼喊:“我在这里”,大家都明白。
07
产品:体验闭环的观看之道
在室内不足二米六的宽度下,去创造一个精确的体验和适度的留白是很困难的。我们通过对陈列架体网格化的设计,来控制它的起伏和大小,最终希望每一件物品都有一个独立的陈设状态。
△ 柜体道具设计©一乘建筑
△ 模型 ©一乘建筑
柜体的形式做过多版方案,有最大化利用空间的,有尝试特别的材质语言的。最终我们保留的这一稿方案关键有两点:一是把空间上半部分留白,让弧线屋面产生消解的意图更加强烈,二是柜体本身装置化的灵活性。
△ 定制柜体与门头 ©李金辉
这是一个把钱花在刀刃上的项目,完善的咖啡和烘焙操作,独立上下的个人休息区,这些在起初我们都觉得难以实现的命题,最终都逐一解决了。在十万元的预算内,建筑师采取了很多办法去节约成本和统筹工期,并且要保证结构的安全性和材料的耐久度。
△ 夹层与咖啡区 ©一乘建筑
△ 入口看内部 ©李金辉
△ 室内空间 ©李金辉
对于社区的居民而言,集屿的存在填补了我们对美好的一种想象。城市空间的同质化严重,集屿并不是一个基因突变的结论,而是业主和建筑师关于美好记忆的延续。
△ 模型 ©一乘建筑
△ 立面图 ©一乘建筑
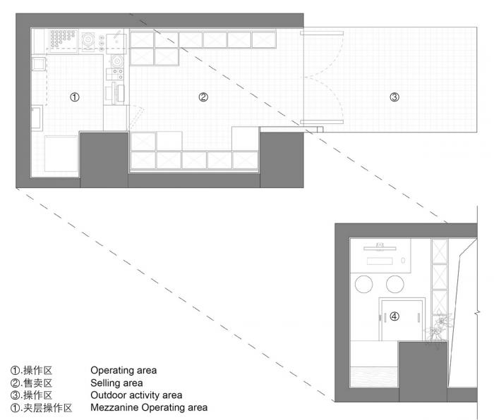
△ 平面图 ©一乘建筑
△ 剖面图 ©一乘建筑
项目信息
项目名称:集屿 | JOYS
项目地点:深圳市福田区红荔西路香蜜三村香居阁
设计团队:一乘建筑(http://www.onexn.com/)
主持建筑师:张博、王晶晶
团队:安炳祥、石秋杨、郭晓红
施工图:李南芳
施工:质乘工坊
材料:水泥质感涂料、方通、木饰面、磨砂亚克力、艺术玻璃
灯光:谱迪
规模:9平方米
设计周期:07/2019-08/2019
施工周期:08/2019-09/2019
摄影师:李金辉

BIM建筑网








































