一个因水和遗弃受到严重伤害的城市村庄启发了一个新的集体和多功能项目的落地,通过新的室内空间的开放。进入建筑的光与空气产生了新的空间性,改变了夯土墙僵硬的结构和黑暗的房间。
起源于巴洛克时代的 El Mallol,从18世纪以来,由于其位于通往小镇市中心的道路上,是 Sant Hipòlitde Voltregà 自治市(位于巴塞洛尼亚北部,大约有3000名居民)的一栋标志性建筑。在20世纪末,由于废弃,它处于非常危险的境地。那段时间它被一个房地产组织获得,以将其彻底毁灭,建设一栋六户人家居住的集合住宅,并模仿原有的立面。幸运的是,经济危机以及城市议会和地方技术人员的勇气,这栋建筑最终被收回并列入BCIL-当地文化资产目录。
项目的一些主要决策是依据一个最初的历史研究和病理报告。由于资源的缺乏和有限的功能策划,一个建设原理指导了项目的最初步骤:除了将建筑表面简化之外,还将那些并不重要的被毁坏的部分去除。一方面,不重建一些被渗水破坏的板片使空气和光能够进入室内。另一方面,将与主立面连接的体量去除,暗示了对原建筑体量的复原:一个带有山墙的对称的建筑体,从根本上改善了周围的公共空间。
△ 轴测图
△ 横向剖面
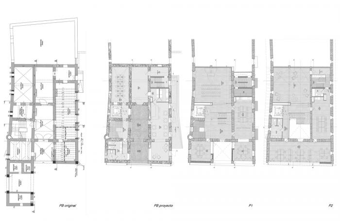
建筑的地面层平面描绘了一个由传统(孤立的)农房和城市巴洛克建筑混合而成的特殊的建筑类型。一个画廊被附加于原建筑的南部,然后一个新的翼楼被连接到建筑的西南部分,改变了原本长方形的几何构图。
这个建筑项目选择保留原有的结构逻辑,避免引入新的钢框架结构。它强化了可用的结构元素:夯土墙,大多数状态良好;地面层房间的陶制拱顶,各不相同并从内部被强化;还有唯一使用木梁的地面,在原建筑的一层,标志了其中最高形制的房间。
△ 改造过程
设计图纸
△ 总平面图
△ 平面图
△ 纵向剖面
△ 室内分析
△ 南立面细部
△ 南立面细部
△ 西立面细部
△ 西立面细部
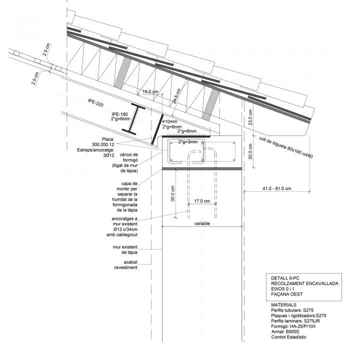
△ 节点详图
项目信息
项目类型:社区中心,适应性利用
项目地点:SAN HIPÓLITO DE VOLTREGÁ,西班牙
建筑师:Carles Crosas,SOG design
项目年份:2019
摄影师:Joan Guillamat
厂家:ASVALL,BETEC PROPAMSA,Cemento Broke,Guardian Glass,Knauf,LATERLITE,Persiana Barcelona,Reiter,Tallfusta
主创建筑师:Carles Crosas, Gemma Domingo
设计团队:Oriol Ribas, Lorena Hernández, Marta Medina, Laia Vilaubí, Hernan Lleida
客户:Ajuntament de Sant Hipòlit de Voltregà
结构:Josep Baquer
工程师:Clusells & Roca Ingenieros, SL
测算:Miquel Autet

BIM建筑网




























