五岔子大桥位于成都市高新区南部园区锦江沿线,是连接高新区桂溪和中和街道的重要慢行桥梁,总面积有4180㎡。它主要采用了钢箱梁加钢箱拱的结构形式,功能是市政人行桥,即供行人和非机动车通行。它的设计创意来自于“无限之环”—莫比乌斯环的概念,把四维空间中才存在的无限形态,抽象设计到三维空间中,形成了数学中无穷大的符号形象,所以可以说这个形象代表着桥梁所在的高新区无限的发展可能。
△ 总平面
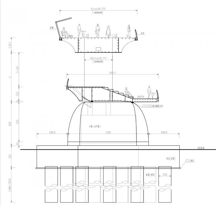
在构造上,桥体分为主桥和副桥,主桥在上,全长346.89m,宽度4.65m-9.88m变宽;是连接两岸绿道可供自行车顺利通行的桥体;副桥在下,全长208.78m,宽度6m-14.53m变宽;有观河的环绕式剧场台阶,为公众提供别样的停留体验。同时夜景照明上主要是突出此桥独特的桥型之美,因此做了简单大气的现代化泛光照明处理,希望在锦江上勾勒出别样的风景。
桥梁结构形式:五岔子大桥分两幅桥进行设计,上游桥为主桥,下游桥为副桥,主、副桥间通过连接通道相接。主桥分两联设计,第一联为27m+27m两跨连续钢箱梁桥,第二联为28.5m+75.347m+84.152m+44.73m四跨斜腿刚构桥,满足通航及行洪要求。副桥采用钢结构,分三跨设计,第一、二跨为异形钢箱拱桥,跨径分别为59.166m和84.431m,满足通航及行洪要求,第三跨为斜腿刚构结构,跨径41.673m。
桥长、桥宽:主桥全长:346.891m,宽度4.654m~9.88m变宽。副桥全长:208.781m,宽度6m~14.533m变宽。
单孔最大跨度:单孔最大跨度为副桥第二跨异形钢箱拱,跨径为84.431m。
桥高:主桥梁体为变高,最小高度处位于Z2墩顶,梁体竖向高度1.0m;梁体最大高度位于轴线Z4-1(斜腿ZX1)处,梁体竖向高度约2.4m。副桥主拱圈高度1.5m,第三跨梁体竖向高度1.3m~1.5m。梁段亲水平台梁高约2.15m。
△ 主桥立面
△ 副桥立面
设计图纸
△ 平面
△ 断面1
△ 断面2
项目信息
项目类型:桥梁
项目地点:成都,中国
设计方:四川省建筑设计研究院有限公司
面积:4180m²
项目年份:2019
摄影师:存在建筑
主创建筑师:吕锐
设计团:高静、熊唱、李伟、白熙、周佳、吕锐、夏战战
结构设计:四川西南交大土木工程设计有限公司
结构设计团队:林清阳、李兴林、郑爱华、王美馨、李科
景观:四川省建筑设计研究院有限公司
施工方:成都建工集团有限公司
咨询单位:德国Buschmeyer+Cai事务所蔡为、Philipp Buschmeyer,Tom Wunschmann, Achim Kaufer
委托方:成都高投建设开发有限公司

BIM建筑网























