01 文脉
绍兴满园位于绍兴市区东南,南邻著名的会稽山。会稽山,在历史上曾是中国文化的高地。除了民间代代相传的上古大禹治水传说,魏晋时期的名门高士在此聚集,王羲之、谢灵运在稽山耶溪间生活、游历、创作,为中国知识分子最高致的作品和人格画像;明代时,王阳明先生在会稽山筑室隐居,研修心学,悟道传道。如果说绍兴城区的小桥流水是古越文化温柔敦厚的一面,会稽山则是绍兴清越的风骨象征。
02 勘地
第一次来勘地,离基地还有几公里,已经能看见葱茏的会稽山和其上矗立的大禹像。这个区域由于景区的视线控制因素,有严格的建筑高度限制,周围的建成区域均是掩映在绿荫之中,与会稽山古老而宁静的姿态并存。基地东临浣江路,北至嵊山路,南侧与绍兴二环路留有米宽的绿带。东侧、北侧道路都有种植时间久、姿态茂盛的双侧香樟行道树,给予基地优良的微观现状环境。
03 谋篇
满园整体占地201.4亩,容积率1.15,产品分为联排合院、叠墅和洋房三种类型。从项目最早期,景观团队即参与到规划和空间优化工作中,意欲形成建筑景观一体化的效果,融合于会稽山的自然文化氛围之中。
最终形成“两园九境十二坊”的景观规划结构,通过恰当规模的邻里尺度,给予居住者归属感和清晰的空间导向。连接东侧和北侧两个出入口,形成“L”形的主要公共景观生活轴,在线性的空间里创造如长卷般的连续画面,同时利用空间收放形成九个驻留性节点,创造兼具游览与交往功能的丰富场境。
项目既以“园”命名,体现了景观的价值和所承担的期待,如何造一座当代园林,既承接场域原有的宁静人文气息,又契合当代审美和生活方式?
明代祁彪佳在《越中园亭记》曾言:“越中之水无非山,越中之山无非水,越中之山水无非园。”山水林泉,自古就是中国人理想的栖居之境,“平地丘壑,咫尺乾坤”,园林是将山水引入日常生活的重要载体。此次,我们将“山水入园,古质今妍”确立为景观造园的意旨。
04 推演
当下与往古对勘
△文征明·《兰亭雅集图》
童寯先生曾精辟地将中国园林概括为“三维的中国画”,对于古代文人来说,造园常常遵循绘画的原则,历史上重要的造园家几乎无一例外都精通绘画,园林一直被视为如画般,超越普通世界的意境载体空间。
△ 李公麟· 《西园雅集图》
魏晋之后,在园林中雅集的传统在文人中代代流传下来,虽然大部分园林已失,所幸历代的艺术图画为我们保留了当时文雅的记忆。雅集,曾是传统的精神生活方式,在当下,可以理解成一种高品质的交往,人与人相应,人与自然相应。
4.1 基地推敲
本次呈现的示范区位于“L”型景观主轴的东部起始处,是整个项目的主入口园林,属于“外园”,将来会被所有业主和外来消费的人群所共享。北侧的二层建筑暂时用作销售场地,在交付后将作为经营空间为本区域提供生活服务。由于近远期不同的使用模式,场地天然形成两条动线需求,在销售期两条动线相联成为一条体验和游园环线,在交付后则分为业主归家和经营空间两条内外动线。
在最早的建筑总图中,示范区是一个矩形,北侧是二层的社区经营性建筑,整个项目的主入口构筑物位于矩形用地南侧的中间位置,并外凸于围墙之外,是一个非常建筑感的形体,进入之后开门见山,一眼可见水面为主体的庭园。几经推敲之后,我们对总图进行了优化调整,将主入口南移并后退,取消了南侧两栋联排住宅,在矩形主庭园之外增加了一进空间,同时将展示围墙南北双向延长,从原来的67米增加到85米。
主庭园宽48米深25米,借鉴了绍兴著名宋代园林——沈园的古迹核心区和苏州网师园比例,期望创造以小见大的效果。
4.2 理山脉顺水源
“叠山理水”是传统园林设计的第一步,山贵有脉、水贵有源,气脉贯通是中国园林审美的底层原则。满园建于平地之上,如何让山水入园,细微处见变化?
通过标高设计,我们把园内普遍标高提高30厘米,并在入口处进一步提高30厘米,利用这60厘米的高差,在不经意间形成整个园子水体的源头和流向,通过线型勾回和两次跌落,延长感受长度,最终汇入中心平池之内。山脉走势则沿着西侧和南侧围墙铺陈开去,借景园外的会稽山共同形成满园的山林背景意象。
4.3 构筑物布局
山水格局基本确立之后,下一步工作是结合功能流线和视线因借在空间中合理布局重要构筑物。在L形的基地上,我们布置了四处构筑物,分别是入口花厅、东侧游廊、池台水榭与内园柴扉。尺度大小各异,互为平衡,或广阔或精巧或高举,或通过或停留,或可观景或在景中,与山林、水体、花木、人物穿插融合,以期形成相生互妙的多重空间感受。
为了获得更加整体化的效果,本次所有构筑物的建筑部分和室内部分均由ZSD卓时统一设计。
4.4 空间递进转化
△景观设计过程动图
场地被组织成四进式递进空间,用景观场景叙事的游园手法将建筑、室内、景观串联起来。
第一进:退让借景望之森然
前场借会稽山为远景,在原有红线的基础上,将入口花厅和景墙进行了谦虚的留白退让,形成敞开式迎宾空间,东侧浣江路的香樟行道树自然形成前景。将停车区设置于前场的北侧,引导来访者沿着路径望向视线尽头的会稽山。以宋代歇山顶为原型的入口花厅,高7.34m,檐口长18.4m,宽12m,与端景处的灌木球和迎客黑松,在水平延展的围墙前,构成一幅不施繁饰、自然典雅的中式画卷。
第二进:曲水流觞松间问泉
歇山顶下的接待花厅,由压低的檐口和格栅框景出纵深的视线牵引。室内排除了过多的结构冗余,形成无阻隔的轩敞空间,木纹铝合金扣板吊顶带来温暖优雅的感受。室内外30厘米的标高,以及位于花厅中央的“曲水流觞”水轴装置,将这154㎡的空间分隔成停留和通过两部分。
最早流传于东晋文人士大夫归隐山林后的“曲水流觞”雅集,成为了二进空间的索引。我们通过在磐石装置上模拟出纵横曲折的水道,相仿古人洒脱飘逸的饮酒作诗之意。来水无影的水轴被视为整个项目的起始水源,引伸至门洞外,串联起高下动静相化的山泉瀑布意景。山涧自上流下,伴奏出一曲“松间问泉”的叠水清音。
第三进:通而不畅辗转蓄势
沿着园内西侧,是通往内园柴扉的小径,通过制造迂回曲折的折叠动线,营造出虽路长近在百米,却仍然充满丰富趣味的游园体验。
沿路两边,以大乔木为背景,小灌木做点缀,连绵起伏出疏朗的山势布景与曲岸回沙的水岸景观。春季的红梅、夏季的杏树、乌桕、沙朴、秋季的红枫、青枫、南天竹、铺地柏等花木,流转于四季,蓊郁成自然的诗意生机。在不同节点分别设置两桥一亭:以小桥渡水逾折;以水榭静寄休憩,共同接续出文人园林的雅集场境。山石花木与构筑物,互相交织糅合出障景、漏景、借景的互动起兴。
第四进:一境天开展卷沉吟
绕过柴扉,或顺着花厅外的曲尺游廊,抵达东侧的露天池台,是前一进空间蓄势铺垫下,有着强烈尺度对比的水岸洽谈区。与池台对视成景的花木小径横陈于水岸眼前,全景式的构图,层层积染出以会稽山为远景,花厅柴扉为中景的立体画卷。设计营造一镜天开的中心平池,使得两岸仅8米多的水距,与天空共显一色,横斜疏影于水面,创造出以小见大,超越物像更大自由的宽广之感。坐于岸边谈天闲吟,心情盎然平静,似与万物同娱。这一方水池也自然地将未来业主的归家流线与外部使用分隔开,而在视觉上又相互因借。
05 材料节点
满园在意境和形制上对传统园林和建筑进行借鉴,在材料和工艺上,则采用了完全现代的建构语言。凯撒灰石材墙面和深色金属瓦屋面筑定了整体沉着大气的基调,进一步用木纹金属吊顶、金属格栅和栏杆勾勒工艺细节。造园叠山则选用了黑山石,与整体氛围更为融合。
营造过程中历经多次打样确认、现场调整,以期获得最佳效果。
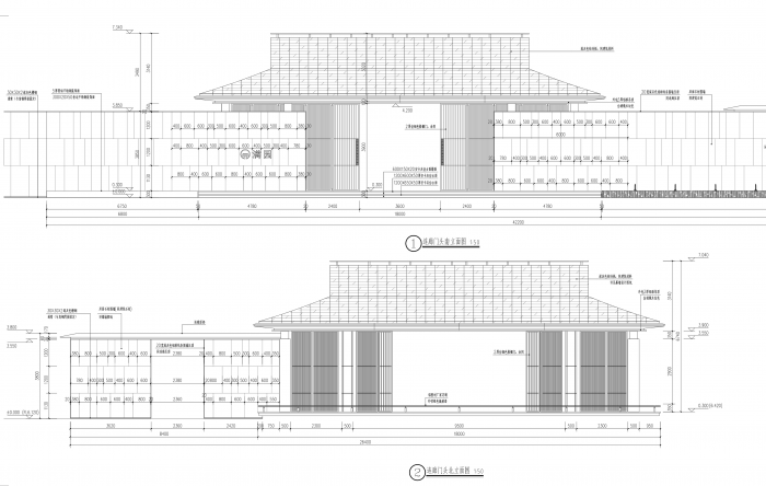
△门头图纸
△水榭图纸
△柴扉与“曲水流觞”水轴图纸
△栏杆图纸
06 后记
中国传统园林代表了东方式的“理想居住”图式,一方面是对自然的珍视向往,一方面是对生活的喜爱意趣。除却样式化的风格表达,内里的这两条并不随着时代更迭而有改变。绍兴满园是卓时ZSD再一次在造园方向上的尝试,向传统学习,而造当代之园。
项目信息
项目名称:大家·湛景满园
项目类型:低密住宅
项目业主:绍兴毓林置业有限公司
项目地点:浙江绍兴
设计/竣工:2019年8月/2020年5月
项目面积:13.4万㎡
示范区面积:3200㎡
景观设计:ZSD卓时
设计指导:袁笑雨
景观团队:余玉俊,王立诚,钭龙飞,黄志超,吴婷,王安远,何家滨,江遥,程雅静,林晓晔
项目摄影:薛钰滔

BIM建筑网












































