△ 西南街景 ©张广源
“第三空间”位处唐山繁华的建设北路,其用地东侧紧邻一片南北向平行排列的工人住宅,建筑朝向、布局和塔楼及裙房的体量、形状几乎完全由日照计算得出,以满足严格的日照法规要求:两栋平行的百米板状高楼顺着西南阳光的入射方向旋转了一个角度,朝向东南方向,裙房的屋顶也被“阳光通道”切成了锯齿形状,其东侧留出一个带状的花园空地。
△ 卫星航拍图
△ 基于日照计算分析的前期设计草图
△ 从悬挑亭台望出东侧住宅区 ©张广源
△ 东侧鸟瞰 ©张广源
第三空间综合体试图表达这样的意象:一个向高空延伸的立体城市聚落,城市中垂直叠摞的76套“别业”宅园。“标准层”中惯常平直的楼板被以错层结构的方式层层堆叠,形成每个单元中连续抬升的地面标高,犹如几何化的人工台地,容纳从公共渐到私密的使用功能,使人犹如在山地上攀爬穿行,在不断的空间转换中形成静谧的氛围。
△ 整体模型
△ 复式单元叠加模型
△ 大比例实物模型
△ 大比例模型复式单元内部
收藏及影音空间被塑造成“坡地上的小屋”形态,大小、形态、朝向各异的“亭台小屋”被移植于立面,以收纳城市风景,并且就像敞开于都市的一个个生动的生活舞台,成为密集分布的垂直“城市聚落”的象征;顶层单元中,则凭借屋顶之便,引入真正的葱郁庭院,与通常的“别墅”相比,这里的“高度”大不相同。
△ 从南楼望向北楼南立面 ©张广源
△ 从第三空间顶层俯瞰建设北路西侧住宅区 ©李兴钢
△ 从北楼悬挑亭台望向南楼 ©张广源
△ 西北街景 ©李兴钢
△ 立面局部夜景 ©张广源
△ 从入口空间看起居室(样板间室内设计:印西诃EXH) ©李兴钢
△ 从楼梯看餐厅(样板间室内设计:印西诃EXH) ©李兴钢
所有复式单元在垂直方向并列叠加,对应的建筑立面悬挑出不同尺度及方向的室外亭台,收纳下方和远处的城市及自然景观,自身也成为城市中的新景观。
△ 从道路西侧望向北楼 ©李兴钢
△ 立面局部夜景 ©孙鹏
△ 施工中的混凝土框架结构和悬挑亭台密肋板
△ 施工中的悬挑亭台
设计图纸
△ 总平面图
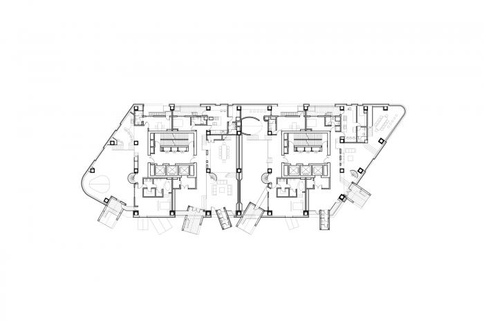
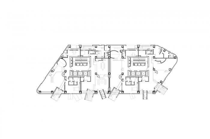
△ 南楼七层平面图
△ 南楼八层平面图
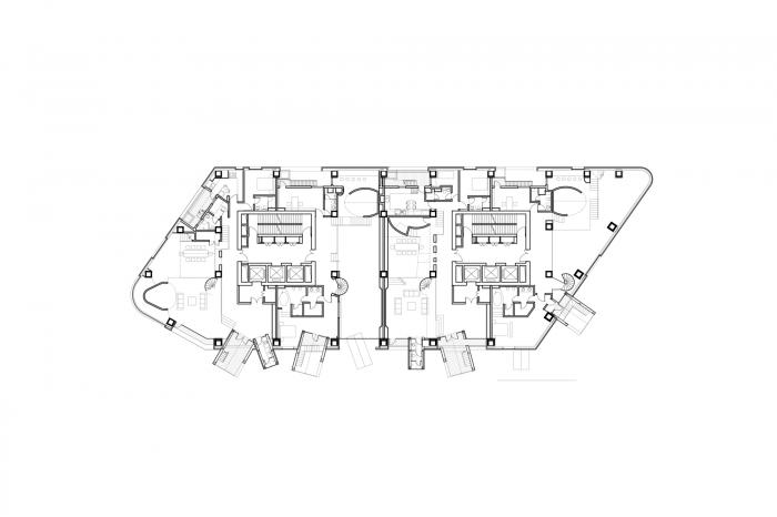
△ 北楼七层平面图
△ 北楼八层平面图
△ 南立面局部放大图(复式单元错层错位分布)
△ 北立面局部放大图(复式单元错层错位分布)
△ 剖面图
项目信息
项目类型:公寓
项目地点:唐山,中国
建筑师:李兴钢建筑工作室
面积:88011m²
项目年份:2015
摄影师:张广源,李兴钢
厂家:南京倍立达,深圳罡正实业

BIM建筑网






























