在教会人员与Vřesovice政府达成协议,将教区和教区房产转为市政财产时,他们希望这些房屋能在未来得到充分的利用。于是,自2013年教区主楼一直被用作一所小学的教学楼。两年后,在两座翼楼的底层设置了带厨房和餐厅的日托中心。我们的任务是将建筑的另一部分改造成两间普通教室和两间职业教室。
最后是将原来的毗邻巴洛克式建筑的体育馆改建为现代体育馆和两个活动室。目前,该项目正在等待补贴资金。项目改建的目的是扩大学校的容量,保存巴洛克建筑群迅速腐烂的屋顶桁架并纠正其内部庭院的不满意状态,整个建筑群是逐步建造的,其各个部分服务于不同的目的。它们已在不同的条件下被保护。同样,根据市政当局的需求,财政资源以及综合大楼各个部分的条件,其重建工作将逐步进行。 因此,从操作和技术上来说,这种多样性在逻辑上已成为重建项目的主要出发点。
项目强调各个部分之间的相互联系,以便保留其作为一个综合体的历史价值,并使学校和日托中心的使用者可以放心使用所有部分。新老建筑的历史要素既要交织在一起,又可以显然地区分开。历史建筑部分由经典的石膏立面,红色的素色屋顶和铜制水暖元素结合在一起。 另一方面,简单的立方体形状,光滑的表面和独特的颜色是新建筑的特征。 过去分开的建筑物的通道和互连处更加突出。 它不仅给建筑群带来色彩,而且为操作和移动提供了新的可能性。孩子们可以自由选择他们要使用的入口和颜色进入学校。
项目通过将教学楼中的现有教室与新教室相互连接而得到加强。过去,学校的经济设施位于教区的首层,而日托中心则位于另外两侧翼的首层。为此,我们将学校的主要设施放在了二楼,除此原因之外,还可以保护宝贵的巴洛克式屋顶,也更好地利用教堂山坡脚下的综合体位置。这样一来,新教室便拥有了一个带草坪的宽敞露台,在那里,学生们可以一边欣赏St. Peter and Paul教堂的美景一边上课。
该项目设法使伟大的巴洛克建筑群焕发出新的生命。尽管它是具有国家文化遗产地位的建筑物,但还是选择了完全现代化这种自信且敏感的建筑方法进行重建。就学校的需求而言,历史建筑有一些局限性,因此新的建筑元素不仅改善了儿童和教师的使用条件,而且将他们在学校的时间转化为对空间的体验。在学校,嬉戏和自由活动的时刻变得很重要。最重要的是儿童可以移动的自由空间,即他们自己制定规则以放松秩序和命令的空间。
设计图纸
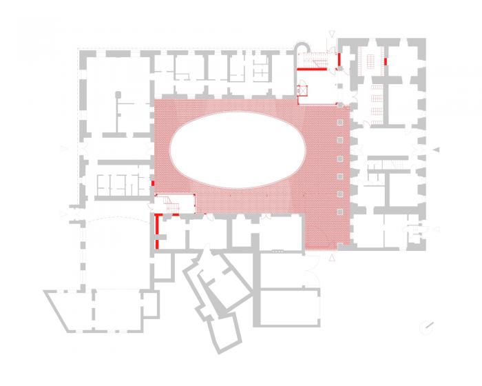
△ 一层平面图
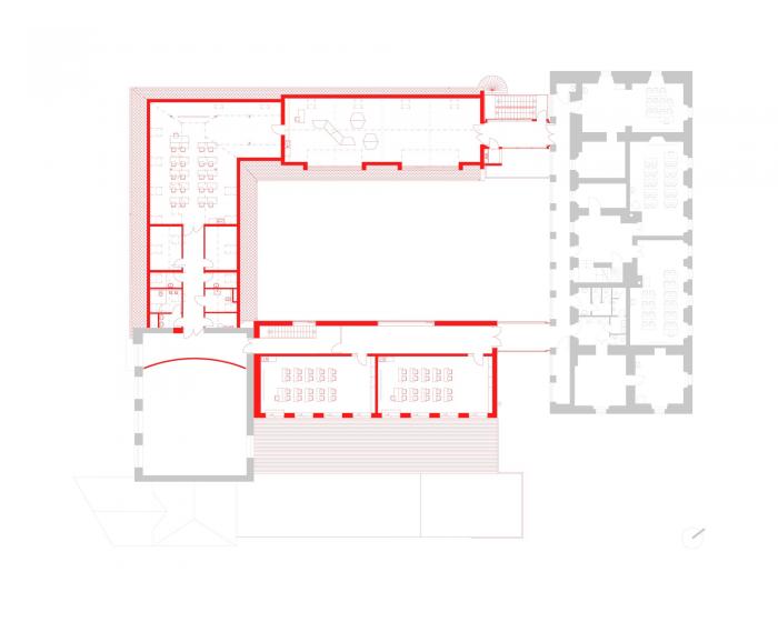
△ 二层平面图
△ 剖面图aa
△ 剖面图bb
△ 剖面图cc
项目信息
项目类型:小学及初中
项目地点:VŘESOVICE,捷克
建筑师:Fuuze,Public Atelier
面积:950m²
项目年份:2019
摄影师:BoysPlayNice
厂家:Climax,Forbo,KLINKER,Kospo,Manus,Novatronic,Roca,Velux,Wienerberger
工程师:Dana Opletalová
户外改造:Vendula Markevičová
平面设计:Radim Lisa + Marie Štindlová
客户:The Municipality of Vřesovice

BIM建筑网




































