泰国农业部金禧年博物馆以其对泰国各种农业种植技术的知识展现和传播而著名。该项目不光是农业部的一个办公室,其还扮演了一个公共博物馆的都市功能角色。
来访者会在进入空间内部前,接受到关于该机构的详细介绍,继而再进入大楼的内部。该大楼的建筑面积合计5900平方米,包括了各种规格的研讨室,小到10人,大至700人。同时,该大楼内还有充足的展览空间、博物馆商店、办公室等。
建筑师采用了“从地面升起”的概念,来表达农作物从土中生长而出的形态。建筑师还在大楼的屋顶设置了充足的树木,使得该建筑与周围的景观场地,融为一体。
设计图纸
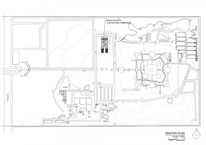
△总平面图
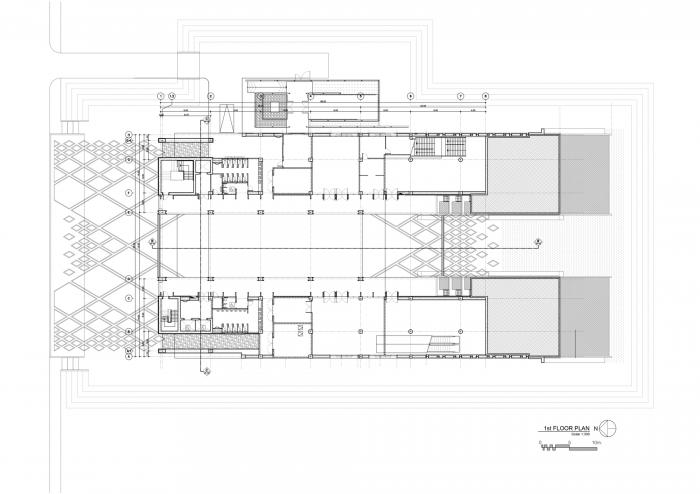
△一层平面图
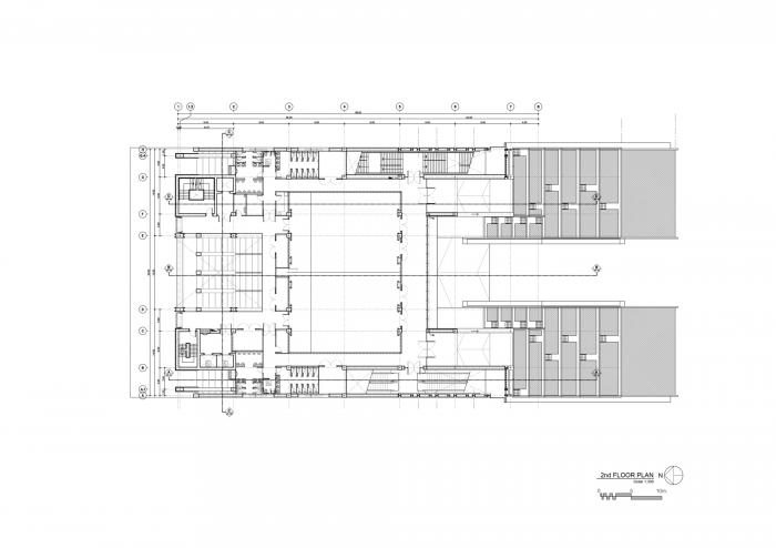
△二层平面图
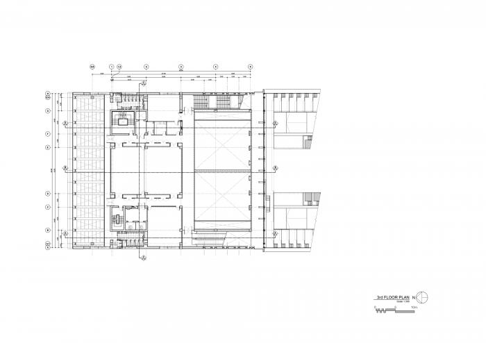
△三层平面图
△四层平面图
△五层平面图
△屋顶平面图
△屋顶平面图
△立面图
△立面图
△立面图
△立面图
△剖面图
△剖面图
项目信息
项目类型:混合用途建筑,展陈建筑,办公设施
项目地点:泰国
建筑师:Plan Architect
面积:5900m²
项目年份:2015
摄影师:Panoramic Studio
厂家:Bluescope,Danpal,S&P NAKORNLUANG,TOA,WILLY
主创建筑师:Plan Architect Company Limited
项目团队:Sinn Phonghanyudh Wara Jithpratugs Anak Boonprasartsuk Chayothorn Songtirapunya
微信公众号:xuebim
关注建筑行业BIM发展、研究建筑新技术,汇集建筑前沿信息!
← 微信扫一扫,关注我们+

BIM建筑网












































