△鸟瞰 ©蒿莱
积木公寓,作为2019年深港双年展龙岗分展场“闪建学校”单元组成部分之青年教师公寓,是何川教授团队以中建科技已有低造价轻钢盒子为构成单元,针对年青人的多样化特征,通过系统化的设计与建造,研究出的高效、共享、自由可变的住宅设计及建造体系。
△总平面鸟瞰 ©蒿莱
快速建造要求下的空间适应性
近几十年我国城市建筑的快速建造,以满足“量”为前提的设计及建造方式带来了很多问题。从增量到存量,我们是否只考虑无差别的标准化的居住、工作和生活方式,建筑师能否在现代工业化的背景下运用新的设计及建造的一体化手段,设计出适应性强、多样化、可持续发展的有机生长建筑?这是我们面临并急需回答的问题。
△西北侧透视 ©蒿莱
建构系统与单元
积木(模块):以3×3×3米标准的空间模块为基本设计单元,按积木式自由组合形成多维的构成模块,再通过模块的多种组合创造出多样化的立体单元空间。
△模数
单元(组合)
根据使用者的不同需求,通过单元之间的多样化组合实现各功能单元之间的内在联系,空间因此而变得既整体又有个性。
△空间建构
△南侧透视 ©蒿莱
△人视点透视 ©蒿莱
系统(适应)
以16个6(长)×3(宽)×3(高)米的预制钢框架搭建成骨架(Skeleton),在其中插填充体(Infill)。骨架由交通核、结构及设备管道组成, 填充体则是N种可变的组合单元体。
△骨架与填充体
花园(气候)
为了适应深圳亚热带气候条件,保证建筑的自然通风与生态环境,在每层抽出一个单元格作为空中花园平台;空中花园平台按照一定的规律由下至上,形成丰富的建筑外部空间形态,同时表达出使用者的多样化生活特征。
△人视点透视 ©蒿莱
△人视点透视 ©蒿莱
△外观局部透视 ©蒿莱
总结
积木公寓以标准化、模块化方式搭建出多样可变的构架及单元,希望探索一个在模块化基础下运用数字化建造方式去构建未来的设计建造体系。追求目标:高效,舒适,共享,可变。
△外观局部透视 ©蒿莱
△楼梯平台 ©蒿莱
△楼梯平台 ©蒿莱
△楼梯平台 ©蒿莱
△楼梯细节 ©蒿莱
△旋转楼梯中庭 ©蒿莱
△夜景 ©王彦斌
△夜景 ©王彦斌
△施工现场照片
△施工现场照片
△过程模型搭建
△过程模型搭建
△过程模型搭建
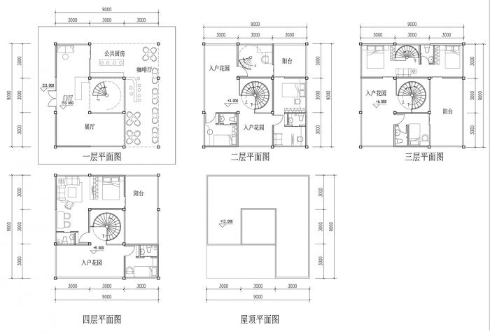
△平面图
△立面图
项目信息
项目类型:展陈装置
项目地点:深圳,中国
建筑师:何川建筑工作室,深圳大学
面积:310m²
项目年份:2019
摄影师:Lai Hao,Yanbin Wang
主创建筑师:何川
设计团队:马文龙吟、陈婧、姜睿、文惠
委托方:深圳市龙岗区人民政府
结构设计:中建科技有限公司
景观设计:中建科技有限公司
施工方:中建科技有限公司
策展方:未来+学院

BIM建筑网




























