△ 项目视频
基地概述
中国文化(出版广电)大数据产业项目是我国新闻出版广电领域首个国家级大数据中心项目,坐落于贵阳双龙航空港区,未来将打造全国最大的版权交易平台和广电网络新型业态聚集平台。园区依托贵州省的自然、地理、气候等天然优势,将大数据、云计算作为国民经济发展的战略性产业,以产业政策为导向,营造活力复合、开放共享、生态先导的大数据展示平台。
△ 建筑远景©章勇
△ 建筑近景 ©章勇
本项目版权云基地作为中国文化(出版广电)大数据产业园区的首个启动项目,建设国家级版权信息资源及版权标本比对两大数据库,嵌入对全网文化内容传播的多维度监测追踪,打造数字内容从认证登记、监测登记、再到开发交易等交易应用于一体的全产业链服务平台。
△ 建筑立面 ©章勇
△ 建筑北侧 ©章勇
项目建筑主体位于核心启动区,贵阳市双龙航空港区兴业西路与西南环线交叉路口附近,与双龙临空经济区规划展示馆隔街相望,贴邻多彩贵州文化创意园、多彩贵州城等文旅创新项目,拥有良好的周边生态环境和交通区位优势。原始地形南高北地,最大竖向高差约为15米,用地面积约7500平方米,地上建筑面积约4462平方米,建筑主体高度18.6米。建筑主体地上3层,地下2层。
△ 建筑高差 ©章勇
设计理念
建筑形态以悬浮的“智慧信息盒”为设计理念。建筑本体呼应场地地形,因地制宜采用贵州独特的吊脚楼建筑样式,顺应坡地形成不同标高层。二、三层建筑形体平直方正,构成“智慧信息盒”的主体形态。首层东半侧与西侧两立柱之间的跨度约为三十米,局部架空,使上部“智慧信息盒”悬浮于空中,随自然环境的起伏定义空间形态。地下部分建筑形体以烘托上部为主,顺应地形,采用简洁的石材白描手法,在北向主要幕墙的基础上,勾勒出主要出入口及西北角的“窗口”形象,与上部母盒呼应。
△ 设计理念
△ 形体生成
另一方面,在建筑形态设计的考量中,以“大数据盒”的功能导向出发,凸显建筑的时代性、科技感的视觉感官体验。“信息盒”四周为玻璃幕墙,东西两侧略向内凹,营造出具有数码时代气息的“展示窗口”形象。南北两侧外墙提炼大数据代码符号,采用铝合金格栅横向密布,间隔呈数码跳跃状随机跳空。南立面左上侧设计一处“水滴”状的内凹造型,活跃建筑主体。
△ 模型
功能布局
项目由南向北呈台阶状分布,分地上、地下两部分。地上部分共三层,首层西侧架空,形成入口广场,内部道路构成环形,是大数据、版权云展示功能的主要入口,通过展示厅及自动扶梯,可上至二层展示区域,一、二层以大数据、版权云展示功能为主。首层东侧设置后勤辅助入口,北侧设置电梯厅入口,直达三层的版权交易厅、监控展示厅、托管中心及相应附属办公场所。
△ 流线分析图
△ 建筑分析爆炸图
△ 功能分析图
△ 交易中心 ©章勇
△ 公共空间 ©章勇
△ 会议室 ©章勇
下部建筑顺地形坡向,南侧埋入地下,为地下一层,主要是消防水池、变电所等各类设备机房;北侧敞开露明,为地下两层,主要是企业办公场所及配套的员工餐厅、厨房。建筑东西两侧分别依据地形设置大台阶,供人行交通及疏散。
△ 建筑东侧 ©章勇
△ 大台阶 ©章勇
绿地规划——竖向垂直
就项目的绿地规划而言,综合考虑了地形、成本、维护等因素,沿道路和基地竖向地形设置不同的绿化景观。如负一层、二层楼梯种植本地绿植,广场区域设置铺地、绿化、树池、小景、小品等,将建筑藏匿于生态地形之中,形成若隐若现的城市生态景观,仿佛天然山地中隐藏着一片开阔的平台,通过灵动的建筑形态远望着城市。
△ 建筑夜景 ©章勇
△ 建筑景观 ©章勇
版权云工作基地项目依托城市的自然地理、产业政策等优势,力争将智慧为核、数码云心、生态融合的设计理念展现在建筑之中,营造活力复合、开放共享、生态先导的大数据展示平台,确保了智能化、现代化的信息网络基础设施有效落地。
△ 场景插画
△ 剖面图
△ 一层平面图
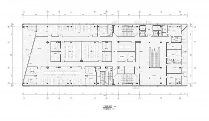
△ 二层平面图
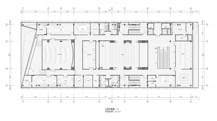
△ 三层平面图
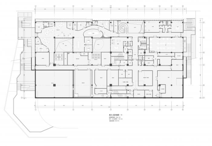
△ 地下一层平面图
△ 地下二层平面图
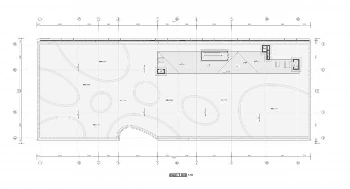
△ 屋顶层平面图
项目信息
建筑公司:上海华都建筑规划设计有限公司(HDD)
地理位置:中国贵州省 贵阳市
总设计师:匡晓明
建筑设计团队:沈毅、张海翱、石峰、姚奇炜、龚本玲、陈晓曈
结构设计团队:张永强、浦译文、朱越海、周振、汪国勋
电气设计团队:张弋、陈羽、肖岩、任福胜
给排水设计团队:蒋毅、吴文雯、杨成
暖通设计团队:程岭松、柴昀梁、曲东阳、董云峰、杨超
建筑面积:9767㎡
项目年份:2018年
摄影师:章勇

BIM建筑网
































