这是一个在日本长崎的日托所项目。一个最近令人担忧的问题是,过多的看屏幕的时间会对孩子的语言能力产生负面影响。另一方面,大声朗读以及儿童与成年人之间的互动交流,可以使他们的行为问题和给父母的压力减轻。在这样的背景下,我们的想法是利用“屋檐下的图书森林”,自然地赋予孩子阅读和朗读的能力,并培养他们丰富的思维方式。
几个书角散布在整个日托所里,以营造一个在整体的木制屋顶下的“书林”的氛围。厨房旁边的书柜里的书是关于“食物和食物教育”。有一个里面装满图书的小屋,而在鱼缸旁边是一个“生物书架”,里面是与各种生物有关的书籍。
天窗下方的书架是与天空和天气有关“地球书架”。 来托儿所的父母也可以使用的入口附近的图书架里是与儿童和父母有关的书籍,为生病后的孩子准备的是“恢复元气书架”,以及还有老师推荐书籍的课堂主题书架。即使只是翻阅日托所不同角落的这些不同书籍,孩子们也能学到很多东西。
并且,采用长檐的当地特有设计,能在夏季保护室内空间免受太阳辐射,在冬季使得室内能自然采暖,而无需过多地依赖空调等电气设备,并实现设计的可持续。而且,室内外的颜色选择是基于当地的乡村景色,使其效果很自然和最小化,让孩子们与当地相联结。
设计图纸
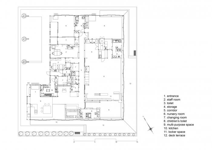
△ 平面图
△ 立面图
△ 剖面图
项目信息
项目类型:幼儿园,教育建筑室内设计
项目地点:长崎,日本
建筑设计:日比野设计,Youji no Shiro
主创建筑师:HIBINOSEKKEI, Youji no Shiro
面积:558m²
项目年份:2019
摄影师:Studio Bauhaus
微信公众号:xuebim
关注建筑行业BIM发展、研究建筑新技术,汇集建筑前沿信息!
← 微信扫一扫,关注我们+

BIM建筑网


























