项目位于东京郊区一个约50平米的居民区地块。住宅东面朝街,一楼比街面高出2m,其他三面被周边住宅环绕,视线受遮挡。这使住宅有一种独特的漂浮感,并于朝街方向有开阔的视野,能一眼望向路对面的学校操场。住宅业主为一对带孩子的夫妇,他们也是项目的建筑师。
所在场地对住宅有许多严格限制,如建筑退线要求和小于25平米的可用建筑面积。基于此,我们设计了一个塔状住宅,地上地下各两层。连续的楼梯和位于角落的小中庭使光、空气与人可在各楼层间流动,在建筑中产生一个连贯的“流”空间。
从剖面上看,住宅入口位于中层。走进这个类似裂缝的入口后,人们如被突然推入一个“流”中,悬于半空。“流”没有明确的起始点,因为我们决定不给这个房子一个强硬的框架。我们将许多不同参数——功能布局、与周围环境的关系以及漫长设计过程中的前后差异——视为与“流”共存的元素,类似音乐中的“通奏低音(basso continuo)”。换句话说,设计时我们并没有非常清晰的全景。
△ 剖面图
这样的设计过程产生了许多有差异性的元素,使住宅开口与楼层有一种不连续性,不同的房间与室内设施间存在相对尺度差异与不平衡。住宅悬浮的视角使我们的家不仅能容纳过去与现在,也能以同样的中立态度迎接未来。
设计图纸
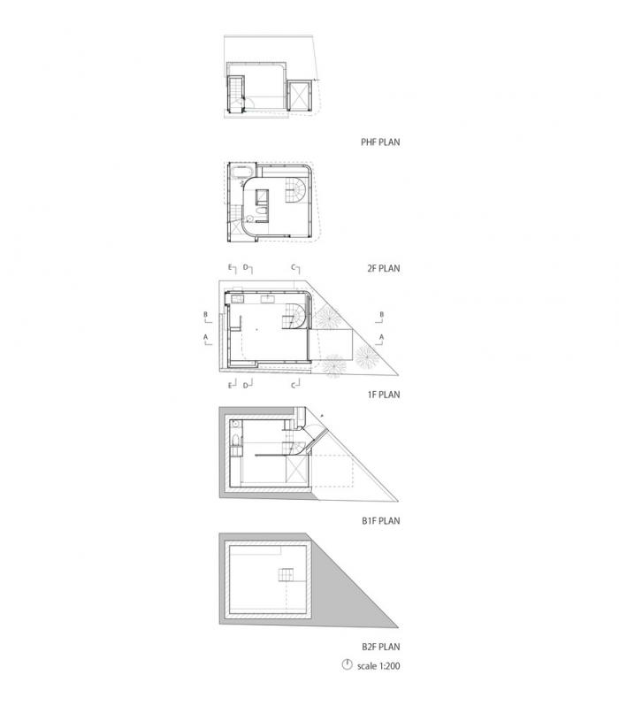
△ 平面图
△热环境模拟
项目信息
项目类型:独立住宅
项目地点:日本
建筑设计:aoyagi design
面积:93m²
项目年份:2019
摄影师:Takumi Ota
厂家:AGC Glass,AutoDesk,IOC Flooring,Sankyo aluminum,Yamada shomei lighting,luci
主创建筑师:aoyagi design
设计团队:Hajime Aoyagi, Ayaka Aoyagi
结构工程:KONISHI STRUCTURAL ENGINEERS, Yasutaka Konishi, Takuya Asamitsu, Kengo Marumoto

BIM建筑网




























