崇仁 1 洞是首尔一个较老的街区,边上有一个全新的高层住宅区。这造成两边居住环境与景观的巨大差异,以公寓的高墙为分界线。高层公寓配有生活所需的齐全设施和服务,或说社会基础设施,居民在楼中过着舒适的生活,与周边社区分离。
在墙另一侧,情况有很大不同。这里的居民无法负担起同样的社会基础设施。实际上,新建公寓配备的设施服务,如老年人中心、图书馆和社区空间,都是应由公共部门提供的基础设施。
但在韩国,私营部门主导了公寓楼单元的供应,即使是社会基础设施也被商业化了,居民可使用的基础设施受其收入水平影响。这也是崇仁洞基础设施较差的原因。在崇仁 1 洞,本地居民占很大比例,平均居民年龄较高,新增年轻人口少。因此社区氛围也似乎有些凝滞。
崇仁空间(Sungin Space)位于崇仁1洞东望山街,希望能为该区域注入新的活力,平衡附近新建公寓造成的差异。
崇仁空间主要由两部分组成。一楼是一个共享空间,任何人都可以使用,包括楼上共享住宅的居住者、社区居民以及其他人。空间可用于小组集会、展览或快闪商店等各类功能。二到五楼是年轻人的共享住宅,希望他们能为社区带来新活力。
共享住宅是因经济原因出现的一种新生活方式。一种新生活方式不可避免需要一种新的住宅形式。然而,大多数这样的新生活方式只能容纳于现有住宅空间中,如公寓和多户家庭住宅。如今,在独居时代,共享住宅是一种值得被考虑的可持续公共住房形式。共享住宅将公共空间由外部(城市)延伸至内部(住宅),换句话说,住宅与公共广场的关系可被转换为个人房间与客厅的关系。
共享住宅中的个人房间应尽可能私密。居民必须有属于自己的个人空间(住宅),才可以自在地在广场游荡。这也是为什么将一个完整体块分割为独立房间的原因,即使住宅本身体量较小。因此每个房间都有独立通风,住宅的取景与自然采光也被加倍。另一方面,一楼共享空间将分离的体块透明地连接在一起。朝街前门与栽竹中庭的折叠门都透明可开,使空间具有延展性,同时可以与街道产生具有活力的视觉交流。
设计图纸
△ 总平面图
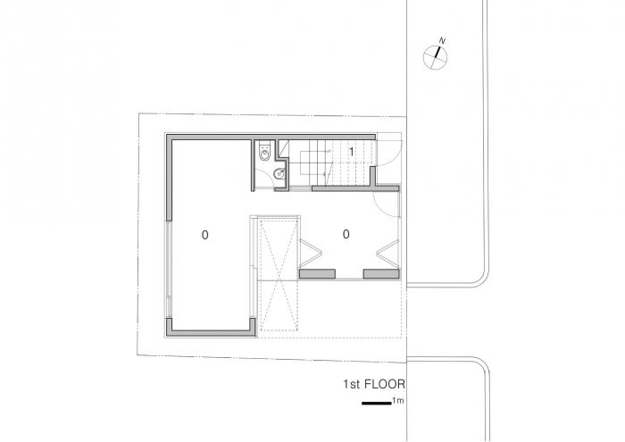
△ 一层平面图
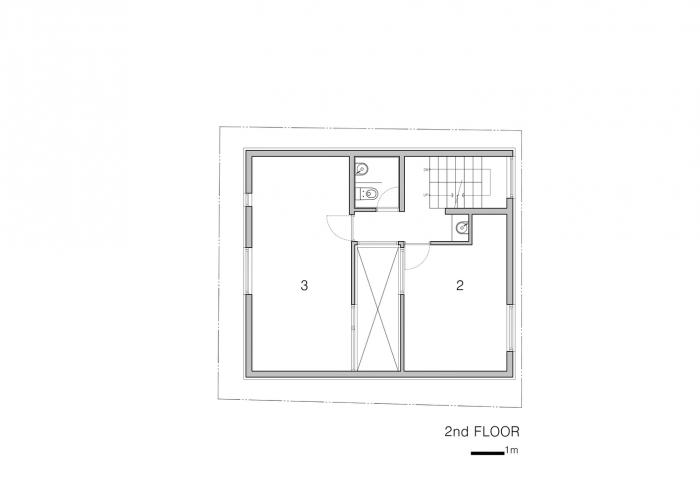
△ 二层平面图
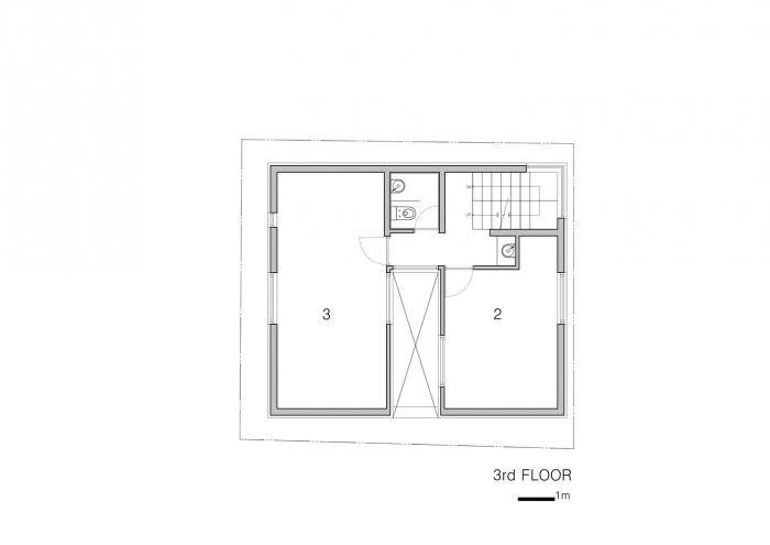
△ 三层平面图
△ 四层平面图
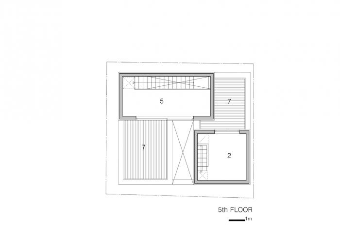
△ 五层平面图
△ 屋顶平面图
△ 剖面图1
△ 剖面图2
项目信息
项目类型:公寓
项目地点:韩国
建筑设计:Space Matter
项目年份:2020
摄影师:Jinbo Choi
主创建筑师:Jeon Sang Hyun
设计团队:Lee Jung Min
客户:Younghwa Suh
工程师:Re-one Architects
结构工程师:Hangil Engineering
机电工程师:Daemyung Engineering
电气工程师:SD Engineering

BIM建筑网




































