阿尔瓦罗·西扎(Álvaro Siza)-水乳交融
1. 华茂艺术教育博物馆伫立于东钱湖北岸。俯视之下,建筑呈三角形状,由连绵的墙体勾勒而成,使博物馆整体富有精美的曲线感,而非大开大合似的棱角分明。
入至底层,空间变换,遗世独立之感跃然纸上。馆内三侧的植被绿地和硬质铺装将各个部分划分得井然有序。公共服务入口(地面层)与VIP区域均位于博物馆与山坡一侧的西北立面上。空间不断延伸,环绕博物馆整体,与各个通道相互连接,让整个建筑四通八达。
2.总体架构上,建筑的第一层空间设于西北侧,呈条形结构,内含中庭、电梯、楼梯以及盥洗室等服务设施。第二层则为条状结构的较大体量的空间,包括大厅、图书馆、行政办公和展览室。
△ 一层平面图
△ 二层平面图
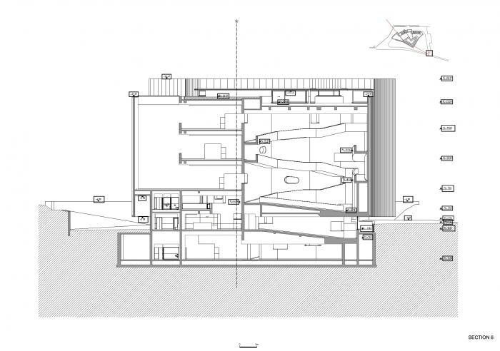
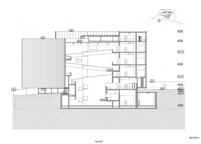
最后,宽敞的三角形通高空间贯穿于建筑的东南角,顶部的天窗引入天光;而整个空间便由一条贯穿一楼至四楼的坡道所环绕。白色的墙体上强化了自然光的明暗变化,光线又通过特别设计的窗洞和门洞进入到周围的房间内。
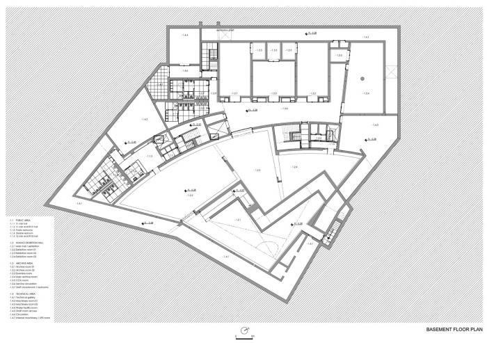
3.地下室与内凹的顶部空间在功能和尺度上相互区别。两者根据规划的空间结构和次序进行组合,且对应于和其他楼层之间的相互关系。地下室:与建筑主体对应的部分在功能与动线类似其上层空间;在入口区域位置向博物馆和山体之间的西北向延伸;在山体下方的部分则隐藏了狭长的设备空间。
△ 地下一层平面图
△ 模型图
从入口区域和地下室均可到达的靠山一侧的挡土墙结构体成为了山体和植被的边界。从内凹的VIP入口可进入到内部独立门厅,并由此可直接通向屋顶露台。
4.整座建筑被波纹铝板覆盖——在环境中整体呈现为较暗的色调。随着光线射入角度及视角的变化,颜色也会由黑色变至银色,变化不断。建筑的内部可以说是一篇关于光线艺术的“美文”,光线被捕获进内部天井,并从此处散布到周围的空间,逐渐变得柔和旖旎。
针对不同展览空间,建筑内部配备了不同形式的照明设备。这些灯管以水平或垂直方向悬挂,来满足不同的照明需求。
5.场馆外,人行坡道将博物馆入口与附近居住区和酒店的道路系统连接起来。项目的初衷便是让其与自然景观、既有建筑以及规划建筑和谐共存、水乳交融,形成一个有机的整体;同时成为一个既可满足公共日常使用需求,又能承载文化建筑职责的“多功能”主角。
卡洛斯·卡斯塔涅拉(Carlos Castanheira)-芥子藏须弥
博物之馆必是气势恢宏,望之俨然。博物之馆必是净几明窗,明光铮亮。而此方艺术教育博物馆却是玲珑小巧,内秀于中。
俯仰山峦,平地而起。
神工鬼斧,动人心弦。山水不显,亦是不落窠臼。
由外及内,方至入口。逼仄之处,亦引人入胜。流连而过,又是天地一方,一望至顶。 蜿蜒坡面与楼层相连,张弛有度,有始有终。
馆内曲径通幽,交错往复,以小见大,营造出芥子藏须弥般的空间效果。大千一苇,匠心独具。
其外,金属壳悬于地面,起伏如波浪。
光线日新月异,游动,变换,永不停歇。其内,展物静置,熙熙攘攘。寓艺术于活力。方寸之境,却显浩瀚之界。
△ 模型图
设计图纸
△ 总平面图
△ 地面层平面图
△ 五层平面图
△ 屋顶平面图
△ 东立面图
△ 北立面图
△ 剖面图
△ 剖面图
△ 分析图
△ 建筑师讨论现场
项目信息
项目类型:展陈建筑
项目地点:宁波,中国
建筑设计:Alvaro Siza + Carlos Castanheira
面积:5300m²
项目年份:2020
摄影师:侯博文
厂家:CLIMAR,Sto
主创建筑师:Álvaro Siza with Carlos Castanheira
项目负责人:第一阶段 / 1st phase (方案设计 / schematic design): Luis Reis, Elisabete Queirós, Pedro Carvalho ;第二阶段 / 2nd phase (设计深化/施工 / design development/construction) Pedro Carvalho
设计团队:Jorge Santos, Joana Soeiro, Sara Pinto, Susana Oliveira, Francesca Tiri, Rita Ferreira, Diana Vasconcelos, Inês Bastos. Luísa Felizardo
3 D模型/效果图:Germano Vieira, Sara Noronha
灯光设计:Alexandre Martins – GPIC
声学设计:Filipe Andrade Santos
结构工程师:Paulo Fidalgo – HDP
设计管理:浙江华之建筑设计有限公司_童秀光、李哲人、成天颖
协调和翻译/设计驻场与管理:刘纯一
当地设计院:中国美术学院风景建筑设计研究总院有限公司-赵远鹏
机电专业:杭州明捷普机电设计事务所有限公司
施工单位:浙江万华建设有限公司
模型制作:Escala Reduzida
委托方:宁波华茂教育文化投资有限公司

BIM建筑网










































