△ 私享空间 ©王洪跃
长征空间由卢杰于2002年在北京798艺术区建立,总占地面积约2500平方米。集展览、市场推广、艺术策划、顾问咨询、收藏、出版于一体,10 年来以它的历史、规模、专业规范、学术定位和商业力量始终保持着中国画廊界的领袖地位。
随着文化消费需求的兴盛,画廊在扩张版图的同时,在渐趋多元化的道路上,全方位的体验升级成为必要之项。因2016年 StudioHVN 罗德岛建筑设计咨询执行长征空间第一期颠覆性建筑改造而达成的友好合作,在2019年第二期长征新阶段1500平方米升级改造项目中决定继续由 StudioHVN 罗德岛建筑设计咨询工作室设计执行。
△ 建筑外立面 ©王洪跃
二期改造工程继续延续事务所在2016年长征空间第一期升级改造中的设计理念,在向历史建筑致敬的同时,与客户共同创建了全新的艺术空间展呈体验。改变了原本单一、基础的空间形态,营造了开放、私密、庭院、博物馆式不同空间体验的多样性,从而达到在有限空间内的无限延展形态,并模拟了艺术品在不同环境中的展陈呈现。
△ 主入口展厅 ©王洪跃
△ 主入口展厅 ©杨超工作室
△ 艺术家工作室 ©王洪跃
每个空间中都通过引入自然光,并搭配专业照明系统,使空间在日光及人造光中形成完美平衡。
△ 天厅 ©王洪跃
△ 主创设计师 Henny-van-Nistelrooy
同时 HVN 设计团队依托长征作为商业艺术机构的整体业务运作方式,在适应不同类型的销售、展览和活动举办的同时,为到访者的观看动线赋予了更多的延续性与多样性。
△ 私享空间 ©王洪跃
△ 私享空间中-半开放vip室 ©王洪跃
△ 私享空间中-贵宾会客室 ©王洪跃
△ 庭院 ©王洪跃
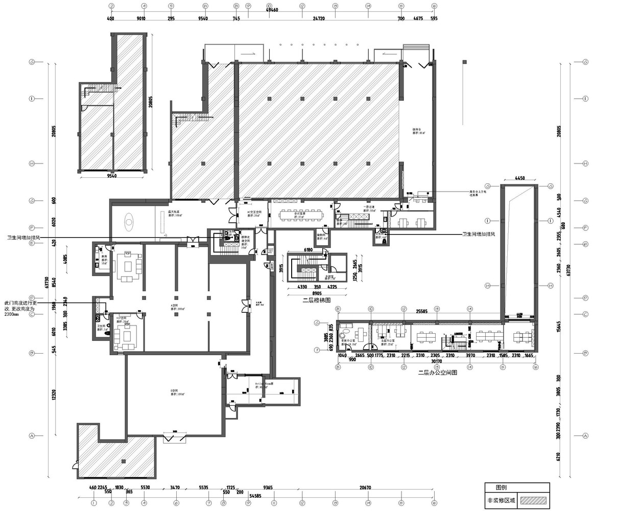
设计图纸
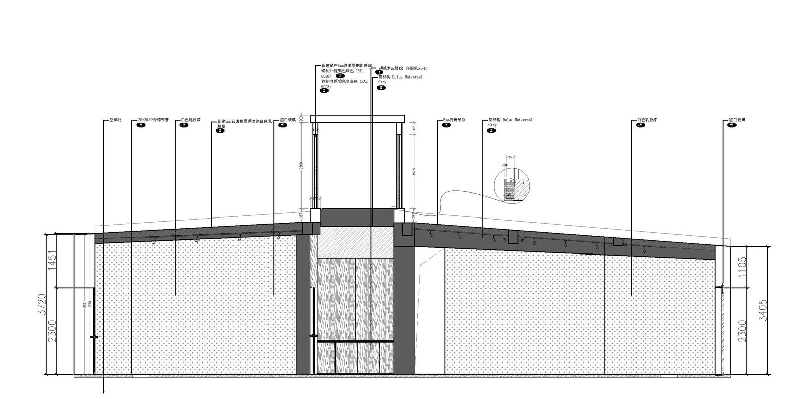
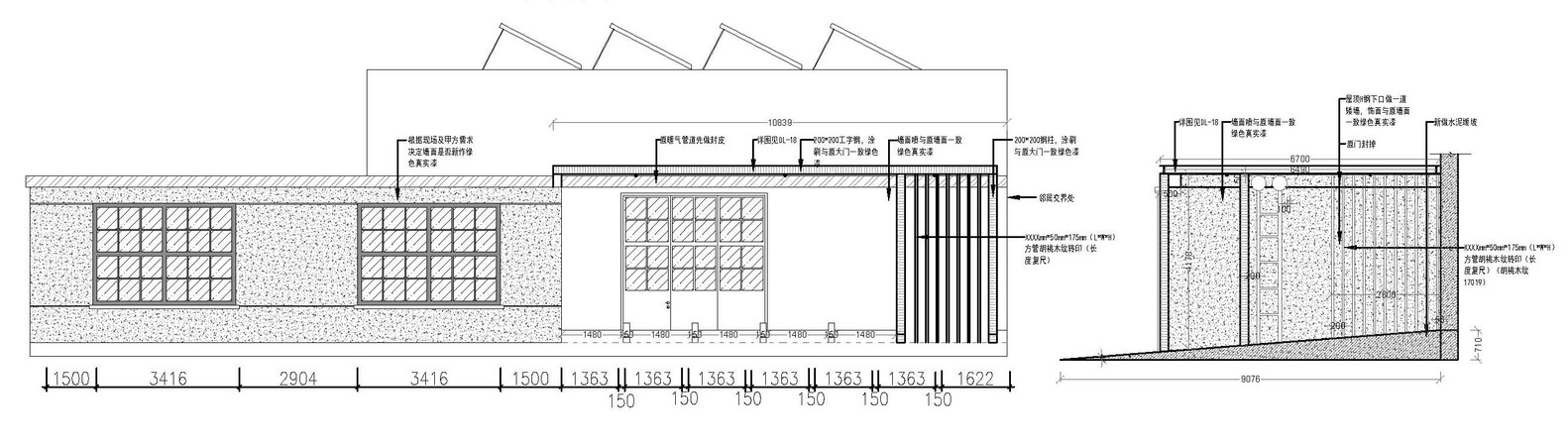
△ VIP展厅立面图
△ 天厅立面图
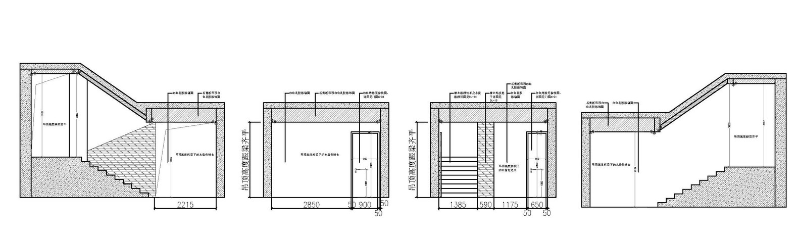
△ 楼梯局部立面图
△ 楼梯局部立面图
项目信息
项目类型:美术馆
项目地点:北京,中国
建筑设计:罗德岛建筑设计
面积:1500m²
项目年份:2020
摄影师:Hongyue Wang,Yangchao Studio
主创建筑师:Henny van Nistelrooy
设计团队:柴夕冉、刘光飞、席琦、於越、王星元
委托方:长征空间
施工方:北京京禹达建筑装饰集团有限公司
照明设计:恒光显色科技(北京)有限责任公司

BIM建筑网





















