△ 建筑夜景
Z31改造项目位于成都市锦江区总府路31号老城区核心商业区,紧邻春熙路和太古里商圈。
△ 改造后
△ 改造前
△ 项目获2020伦敦设计奖”国际商业改造”银奖
△ 分析图
△ 正立面实景
商业店招结合立面设计整体考虑,新增外挑商业露台和景观花池,塑造动感生态的简洁建筑形态。建筑立面材料用浅黄色铝单板呼应周边建筑,尊重总府路核心商业区的整体风貌。以原主体建筑立面石材的水平明暗关系为构思,通过标准尺寸的凹槽组合,形成水平方向不同宽度的装饰线条,用简洁的建筑语言表达时尚的立面形态。
△ 白天实景(左);夜间实景(右)
△ 架空层电梯厅
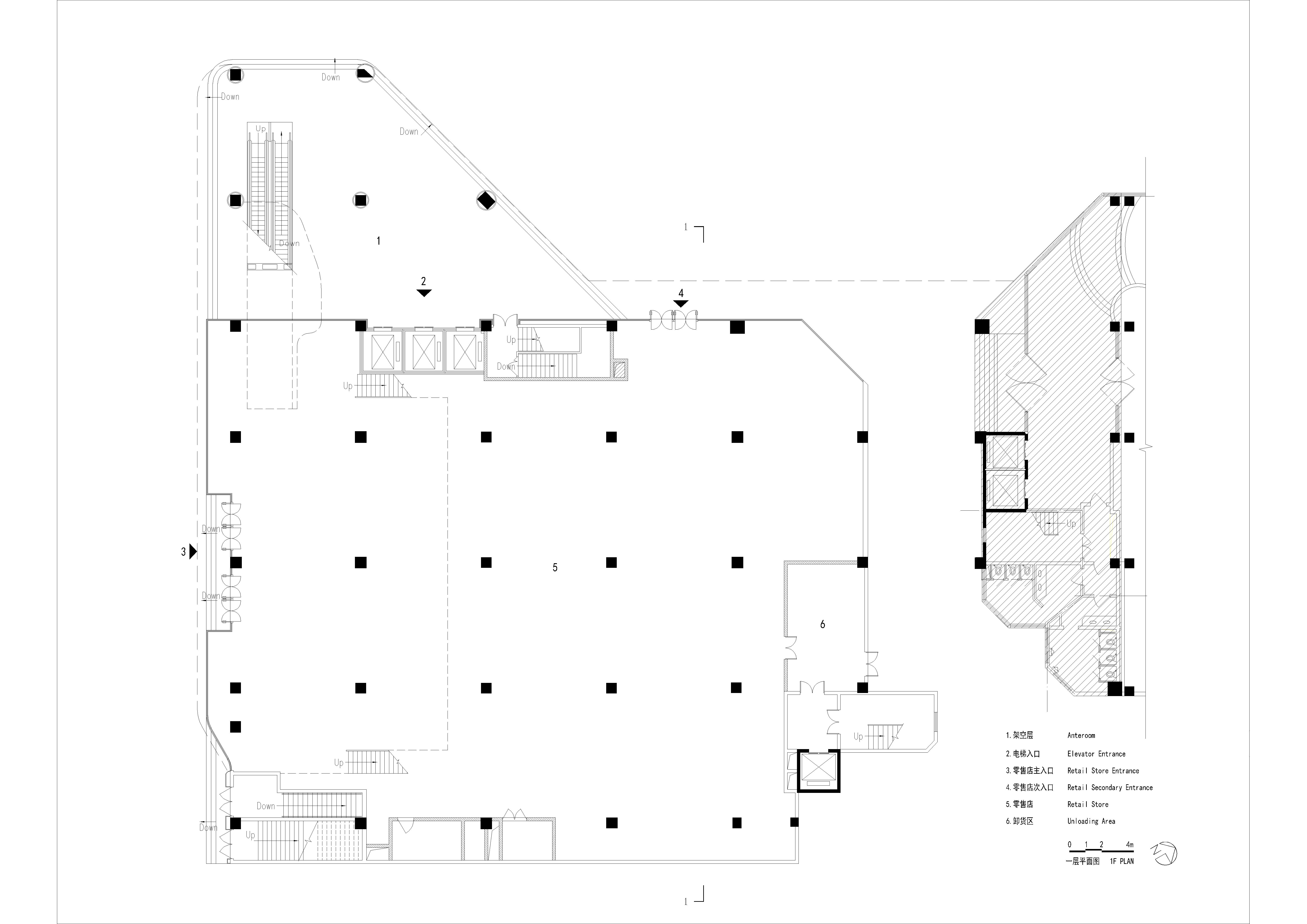
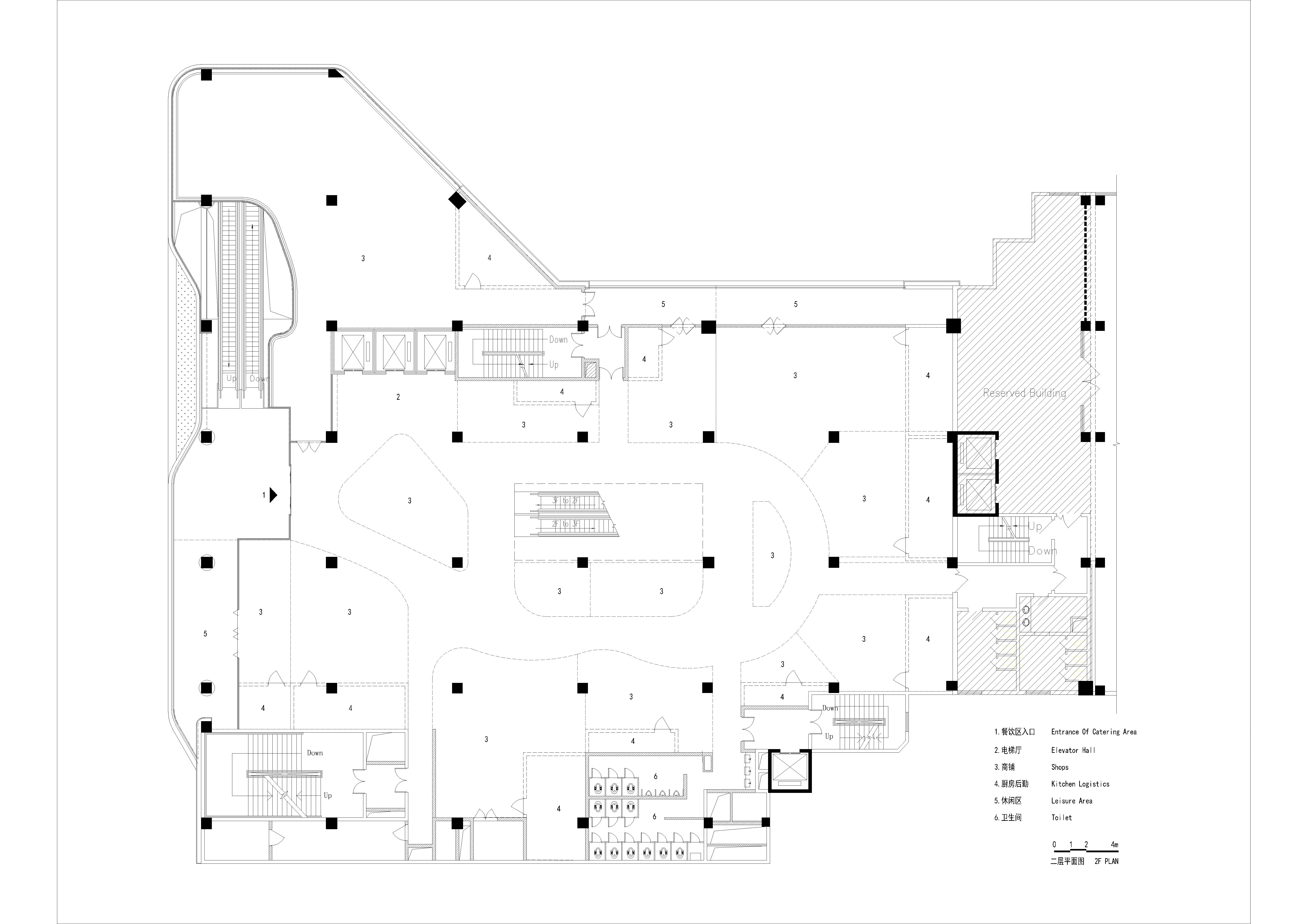
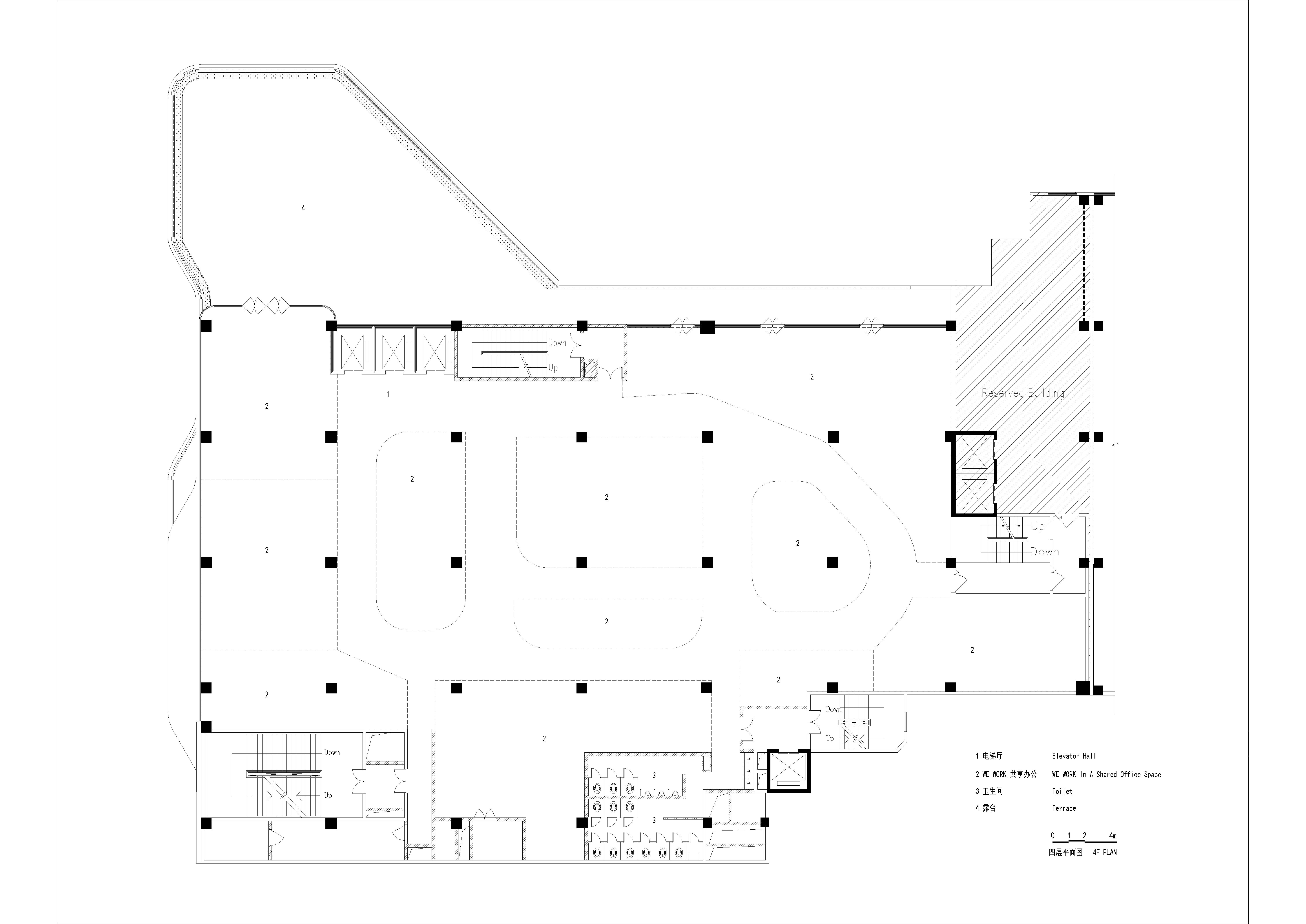
结合建筑形态设计的公共架空层,既是整个裙楼商业综合体的入口枢纽,也是城市青年大胆表演的舞台。1F零售百货临主干路人行道设置,2F餐饮区通过架空层自动扶梯快速直达,4F-6F WE WORK共享办公区和餐饮区均可通过架空层电梯到达。
△ WE WORK 共享办公景观露台
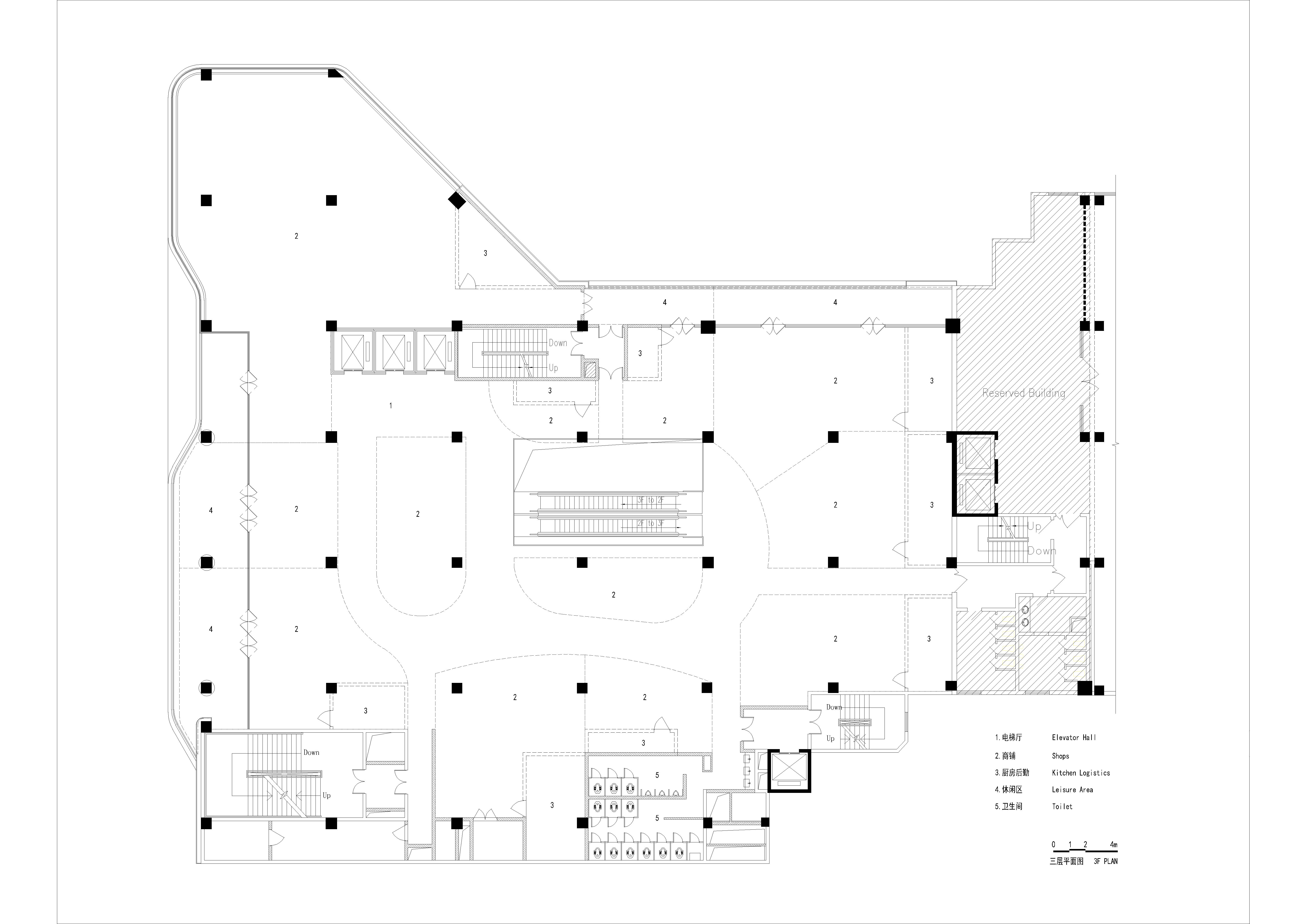
△ 餐饮区2F和3F之间利用原有中庭设置自动扶梯
设计图纸
△ 一层平面图
△ 二层平面图
△ 三层平面图
△ 四层平面图
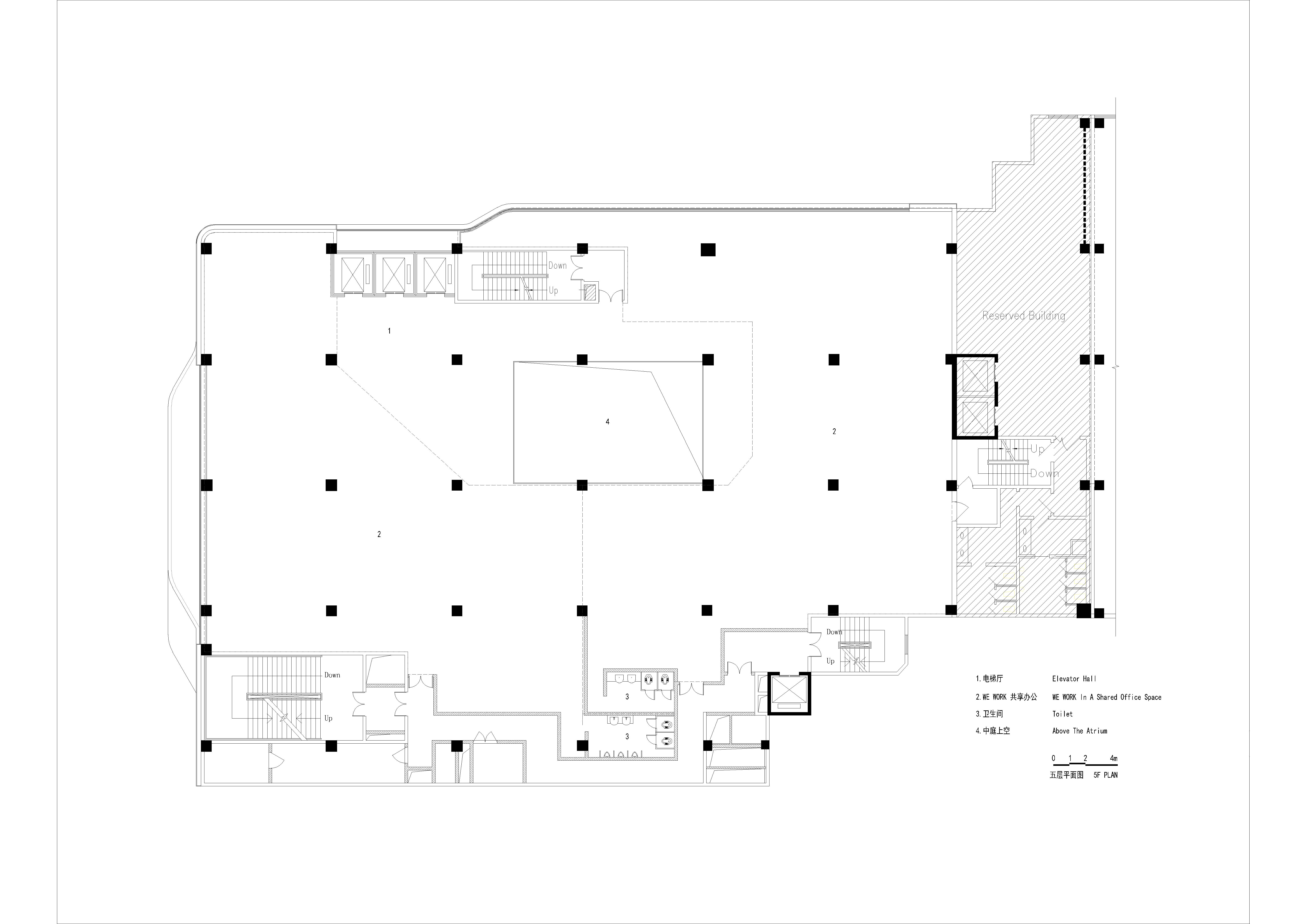
△ 五层平面图
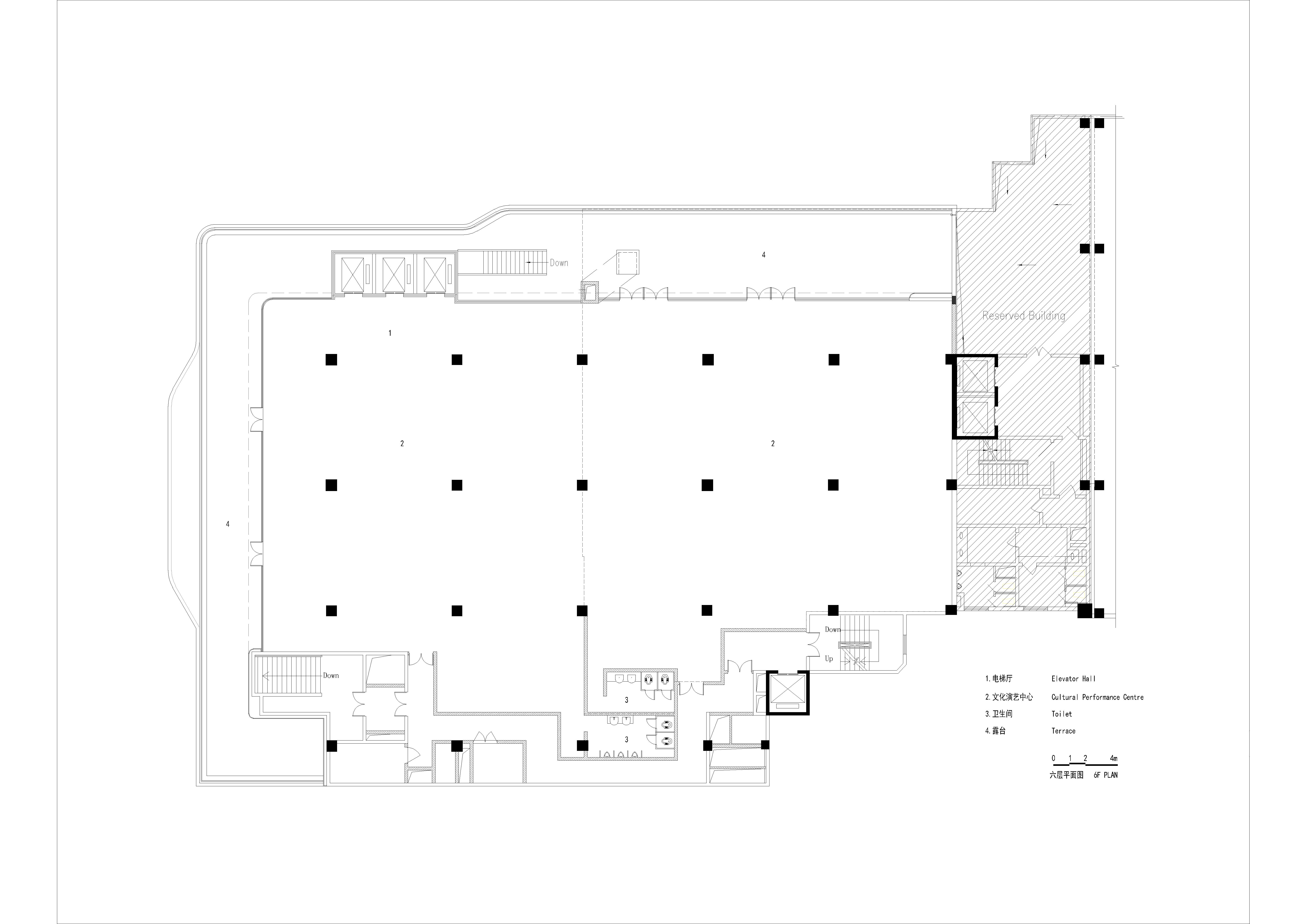
△ 六层平面图
△ 立面图
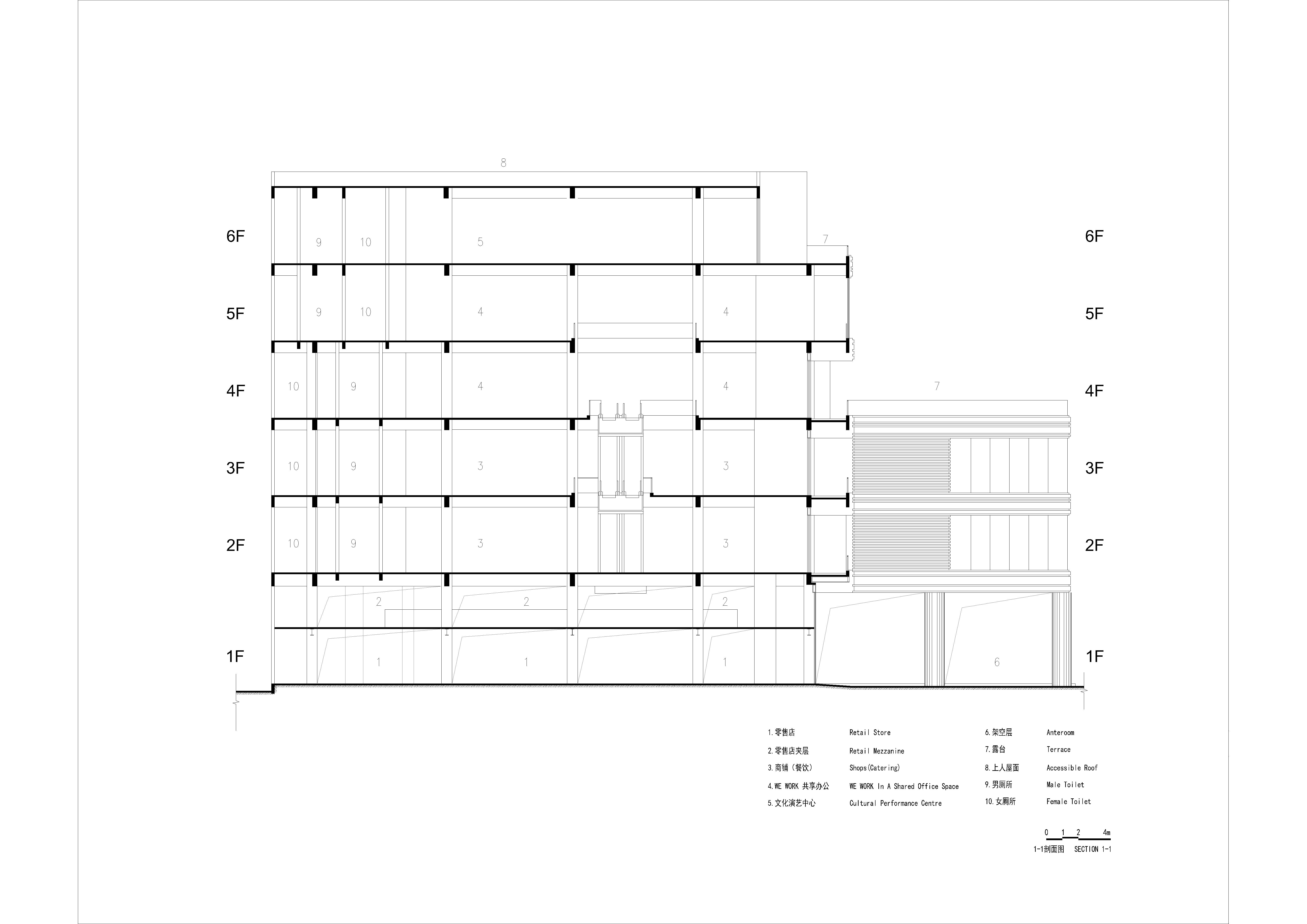
△ 剖面图
项目信息
项目类型:建筑改造
项目地点:中国,成都,锦江区总府路31号
主创设计:王川
现任公司:汉嘉设计集团股份有限公司西南分公司建筑四所
设计成员:易伟,滕树杰,虞舜超
建筑面积:12018.16㎡
项目年份:2019
建筑摄影:邓科
主要材料:铝板
联系邮箱:[email protected]
项目业主:成都和圣商业管理有限责任公司
微信公众号:xuebim
关注建筑行业BIM发展、研究建筑新技术,汇集建筑前沿信息!
← 微信扫一扫,关注我们+

BIM建筑网

























