本案是一个以意大利TULLIO涂料产品展示的展厅。位于当地一个最集中的材料商场次入口附近,周围店面设计以广告位,金属不锈钢,大理石,玻璃等为构成要素,充斥着浓烈与过去式的商业气息。
项目还没开始就遇到了一个让业主很纠结的问题:两个不同品牌,不同的业主要将这个场地一分为二,合租一个店面,各自经营,而我们的甲方也是只能选处于内部视线比较差的位置,这严格来讲不是一个店面,而是半个店面,而且是剩余下来的部分。这个无疑是给设计丢来了一个大大的难题,也是业主一直犹豫要不要去租下店面的原因。如何引流与打破原空间的缺点是我们设计需要解决的问题与挑战。
△ 区位图
△ 场地关系
与周边环境的关系
由于位置条件的缺失,我们的业主与共同承租店面的另外一个品牌的业主进行商讨,通过让其退让的方式让我们的店面给进入商场的人可以第一时间看到,给我们留出了立体的区域,在设计上我们采用了粉色的形体让人产生强烈的视觉磁场,以弥补位置的缺失。
人总是能在跳出习惯的时刻获得惊喜,而这种惊喜的差异化是我们一手策划的···
人从大门进从次入口出,经过了这些前面的店后,我们需要给人透气的空间,让人经过前方旧商业气息的轰炸后有一个新的发现,这种感觉就像一个人穿梭在都市中,眼前突然出现一片没有尽头的草原,会产生兴奋的状态。
这是在审美上给人一种异轨,如美术馆般的展厅,更好的烘托产品的艺术性与品质的同时强调材料本身与空间的高度融合。
本次改造空间的主要挑战是:基于场地的条件如何进行破冰,让原来深邃场地的压抑感地变得透气舒展。基于原场地细长的特点,我们将前半部分切分成二,目的是为了制造以小见大的空间效果,先抑后扬。创造了内向型的空间和开放的扩展。
去接待台的设计也是我们在商业领域的一次大胆的尝试,而这样的尝试也是因为当代商业的收银方式在产生变化。空间中无装饰性软装的处理手法更是一个大胆的尝试,我们试图让人更多的去感受空间/材料与灯光带来的情绪,接待区唯一的家具采用混凝土与模拟铝材的漆进行碰撞,更好的让人感受材料本身的灵活性。
天花中的形体结构结合管线,以严谨的姿态,获得了该商场最高举架的店面,扭转了原本极度恶劣的空间感,这是一种极为巧妙的思考。空间以一种高挑向上的状态展示在我们面前,而入口垂钓的弧形金属网,在天花的拉膜与立面的形体之间形成了一片介质,丰富了光与空间的关系。让人产生强烈的好奇与探索的欲望。
空间本身是一个容器,而我们试图探索手工涂料本身的表情。在平静的空间中感受时间的启发,先关注空间与产品在空间中质感的魅力再去解读产品本身。
宽敞明亮的空间感,以自然的质感,自然的光给空间最真实的反馈。空间与人的互交在我们的设计中特别的被重视。极大地改变了现有建筑的空间和组成关系,有利于空间结构、材料和色彩的选择与调和,并在建筑和场所之间建立了一种新的流动。
空间找到形状,并通过优雅朴素的几何形状变得可触摸,感受透气的质感。让空间在一个悬浮的感受中自由流动。
这是艾克建筑设计团队在用西方的设计秩序来建树东方的空间情绪与哲学再一次实践。
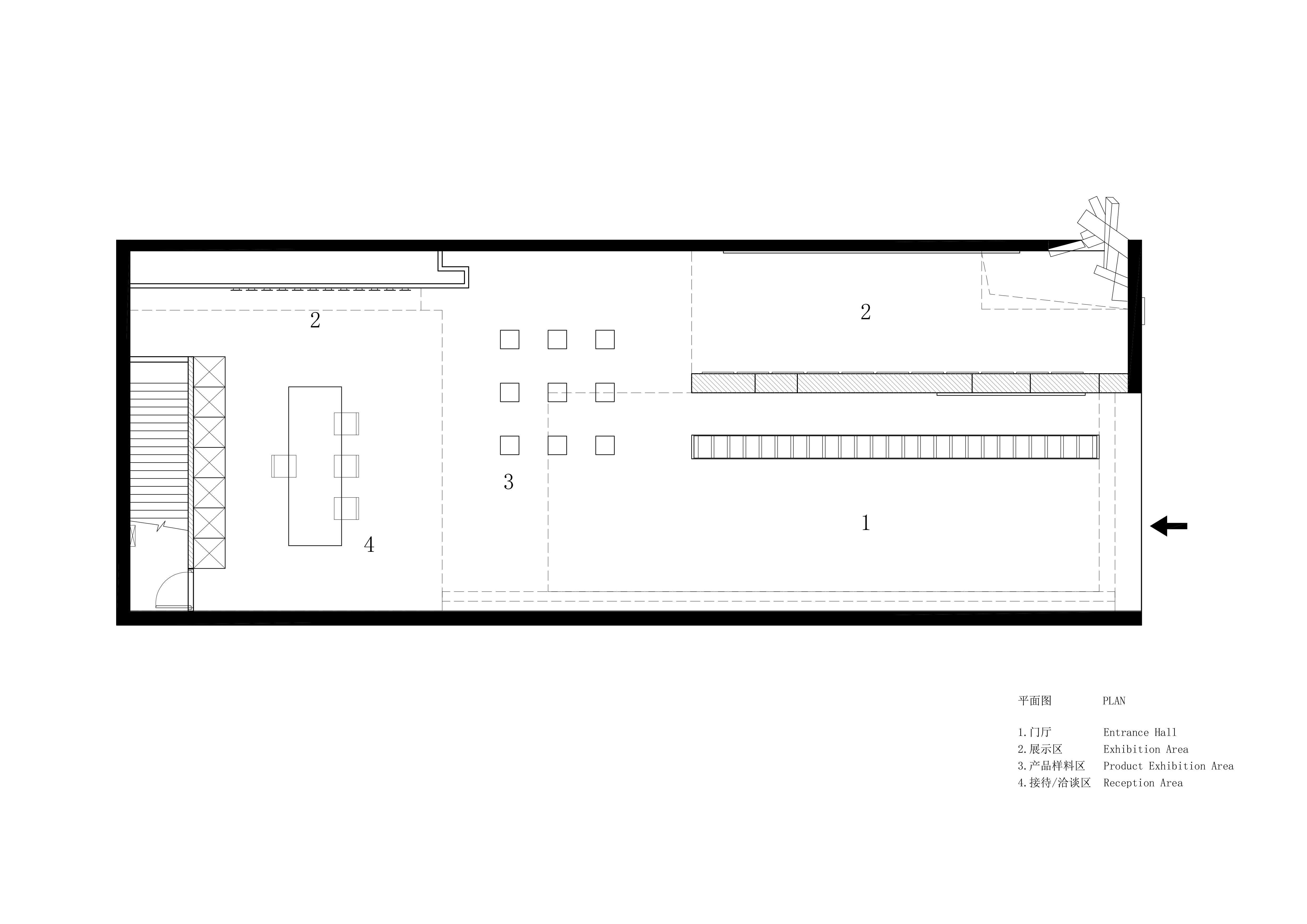
△ 平面图
△ 剖面图
项目信息
项目名称:ANBONG HOME 涂料展厅
业主:Mauro Malfatti设计机构:AD ARCHITECTURE∣艾克建筑设计
公司官网:http://www.arch-ad.com/
官方邮箱:[email protected]
总设计师:谢培河
设计团队:艾克建筑
项目地点:广东汕头
建筑面积:200m2
主要材料:手工涂料、微水泥、金属网、混凝土、透光膜
设计时间:2020年7月
竣工时间:2020年11月
摄影师:欧阳云

BIM建筑网

















































