建筑空间与其所包含的故事,就如同身体与心灵之间的关系。无论空间的视觉完整性有多高,如果故事是贫乏且差强人意的,用户也容易感到无聊和空虚。龙山区的解酲汤小巷子里藏着许许多多的小餐厅,却都在巷尾的一栋房子前显得黯然失色。建筑的空间在祖祖辈辈的传承中被赋予了治愈的情感,注入了故事的灵魂。
很多品牌都有自己的品牌故事。故事作为品牌的形象被传达给公众,产生正反两面的影响。或有一些品牌形象尚有欠缺,亟待填补。 尽管 Ottogi 多年以来一直有着健康、亲民的品牌形象,却也必不可免显得保守、俗气。因此,先进或精致的形象是相对欠缺的。对于 Ottogi 来说,针对二三十岁的年轻一代客户群体来设计新的品牌形象以摆脱这一困境成为企业未来发展的必然之举。我们的提案因此得到了积极的反馈,并得以迅速推进。
这个项目涉及了 Roly-Poly 餐厅从命名到空间规划和空间设计、造型设计和产品设计以及平面设计等各个环节。起初,设计空间的规划是为东家 Ottogi 销售咖喱和拉面的餐饮空间,面积约为265平方米,即80坪。 但通过利用闲置空间,该空间被扩大至500坪。原本计划用于销售拉面和咖喱的简单空间构成,被作为一个象征性的空间,为扩大的空间赋予复杂的功能性,让2030的消费者感受到品牌的新形象。然而,要想能够既吸引年轻一代,又避免直白的品牌表达,该项目还需要设计一个隐喻性的意义。
在这重现象轻现实的拟像时代,Ottogi 在年轻一代心目中的形象可能有些停滞不前。项目的规划中,这个空间被赋予了克服这一困境并展现公司未来的重任。通过多方面的分析,找到企业积极的、消极的亦或是欠缺的形象,从而确立克服这些问题的理念。哪怕无厘头,却也是恒久而创新,优秀而强大,友好而煽情的形象。对此,我认为一个复杂而非简单,感性而非激进,波形而非数位的设计对于这样一个非临时性可持续发展的空间将会是一种解决方案。因此,我希望空间的语言可以随着时间的流逝和空间的成熟中缓慢地吹入使用者的心中。
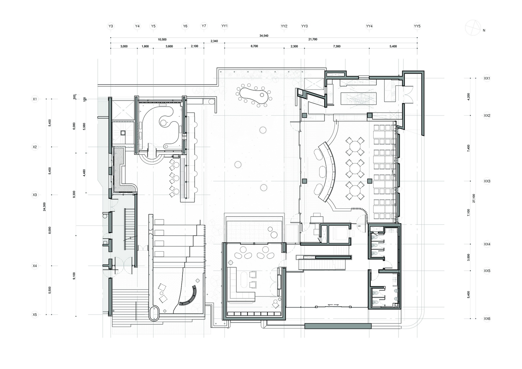
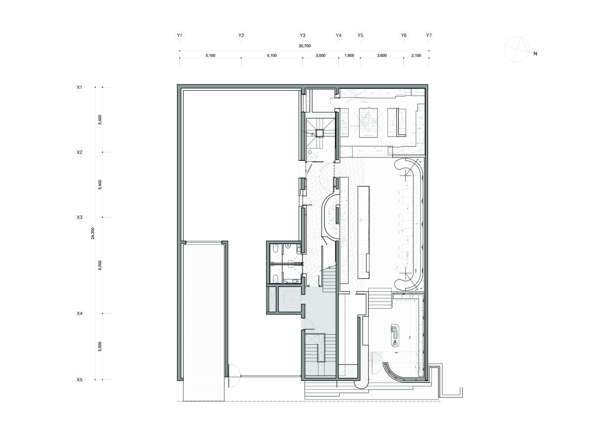
空间的构成——设计的核心可以说是将隐藏在现有两栋建筑物之间的花园合二为一,以形成项目中最大的空间作为中转区。六个散落在旁的空间被这个中心花园连接在一起,分别发挥着各自的功能。七个空间按着洞、块、坡(山)、荫、园、厅(宴会厅)、榭(起居室)的顺序排列组合,各自有着不同的作用和高度。
红砖是空间的主要建筑材料。约10万块红砖所砌成的墙面代表着一种由小单元聚集而成的稳固感,同时红砖特有的普遍性和持久性也契合了公司长远的历史和稳步发展的企业精神。砖块的诸多构造方法和图案中和了材料保守的特性。同时,黄色是 Ottogi 的品牌代表色。使用不同色号、明度或用在不同部位的黄色带给人的感觉完全不同,所以我们决定不拘泥于品牌固有的代表色,而致力于传达色彩背后所带来的意象。内部使用木材、布艺和陶瓷来搭配主材红砖,但为了物理性能的节奏感和时光感也使用了人工打磨的不锈钢。
面向马路的洞穴是一个没有窗户的地下空间,用以售卖食品和饮料。天花板上悬挂的400多个荧光物体引向花园的景观并与之呼应。空间内部使用多种图案的砖块修饰,8米长的吧台和展台沙发放置于这个狭长空间的轴心线上。离开洞口,通过一条窄窄的垂直楼梯通上地面,眼前坡与块相对而立。立方体的空间用以销售为本项目所开发的产品。内部正面的墙面用砖头装饰,并通过砖缝间细小的缝隙透入光线。内部,一个大型的弧形金属展示架悬浮在空中,天花板上挂着一个内嵌照明的大气球,即使在外面也能一眼窥见。砖块堆砌而成的阶梯状斜坡上设有可活动的座位,而顶部的小草坪为空间提供了观赏整个花园的平台。艺术家李宪贞创作的各种荧光色陶瓷品摆置在台阶上,可供客户把玩。
依附于立方体上的荫是由冲压金属屋顶材料制成,既能透射阳光,又能减轻立方体坚硬的质感。长长的遮阳板在平面上将花园一分为二,但在视平线的高度形成了一层增加深度的空间。屋顶下安装了约40个陶瓷盆景,清风徐来,便会产生轻响萦绕在花园中。
花园是所有房间通向的目标,是整个空间的核心。花园里的花开花落呼应了四季变化,也与砖墙的坚硬形成对比。多种开花植物的组合在规划上与现有的几棵杉树形成一片和谐之态。花园尽头利用现有高差形成的小山丘与对面的榭相得益彰。山坡顶上,出自李宪贞之手的陶瓷桌与杉树相结合,形成了花园里的另一个空间。
可容纳50余人的大厅采用开放式多用途布局,计划在未来会向顾客开放,但目前仅用于企业活动和品鉴会。天花板上安装的金属网板用以遮挡照明、冷暖设备和音响设备。大厅前部安装的大型推拉门可开至约6米宽,从而将大厅和花园连为一体。最后一个空间,榭,是一个不对外开放的私密空间。但是,该空间的前部面向花园,庭院前4800片黄色亮片随着风和光的运动在花园中飞舞。
榭的内部设计温馨而舒适,如同家里的起居室。我试图用公司的品牌代表色黄色,通过不同材料的装饰效果来创造出色彩多层次的深度。空间里有像藏宝箱一样的家具 — 当你打开厚重的家具门,里面摆放着用以享受音乐、咖啡和红酒等的工具和小物品,给用户带来惊喜。起居厅的整个窗户都是敞开的,通过水空间可以看到整个花园。
花园中刺激视觉、听觉和触觉的各种元素将分散的空间融为一体,而建筑物曲面的柔和平衡了砖块的坚硬感。空间内部不同的楼层使顾客得以更好地感受和理解空间。最后,我们希望所有这些空间关系可以在创造视觉享受及体验,以及打造品牌新形象上发挥作用。
设计图纸
△ 平面图
△平面图
项目信息
项目类型:餐饮建筑
项目地点:GANGNAM-GU,韩国
建筑设计:Studiovase
面积:1015m²
项目年份:2020
摄影师:Park woo-jin
主创建筑师:Jeon Bumjin
设计团队:Studiovase
施工方:Studiovase

BIM建筑网































