△ 城市共时 ©路径建筑摄影
位于西安城市中轴线西延段上的莱安社区中心近日在沣东新城落成。沣东新城地处关中渭河冲积平原,北临渭河,南靠秦岭,是西咸一体化以及定位建设东方人文特色的生态化国际新城的引领区,也成为西安城市发展的新兴板块和重要的经济增长极。莱安社区中心由EID建筑事务所首席建筑师姜平主持设计,该项目位于沣东新城的核心区域,在服务于社区的同时承载了对周边城市新区的催化激活,将为沣东新城构建一个重要的城市节点。该项目近日获得AIA(美国建筑师协会)中国区年度优秀设计奖。
△ 包容开放的市民性场所 ©路径建筑摄影
基于当代中国城市化高速发展进程中大量出现同质化的城市新区的现象,城市空间中普遍缺乏具有社区认同与邻里归属感的公共空间。近年来,对当今城市规划具有前瞻性和指导性意义的研讨如基多宣言,景观都市主义等理论,也力图唤起大家对城市之共时的复杂性、未完成性和多孔性的认识,重新构想一种新的体验和塑造城市的方式,倡导城市的日常生活痕迹中隐藏的多元和混杂、街道的活力和邻里生活经验的重要性。西安沣东莱安社区中心,通过对不同属性建筑功能的竖向组织,形成多孔可渗透的城市界面,将城市公共空间与市民性场所最大化,创造开放与包容的多维度社区空间体验。
△ 多孔可渗透的城市界面 ©路径建筑摄影
△ 多维社区空间 ©路径建筑摄影
多义的边界-织构包容开放的市民性场所
“漂浮之门”超越社区中心本体的定义,被构想成为一个包容开放的社区门户,成为城市中轴线一侧城市公共空间的自然延伸。建筑坐落于城市中轴线林荫大道北侧社区的入口广场上,通过底层有机的建筑形态的支撑,勾勒出进入社区的标志性“云门”,作为公众进入社区的序章;同时,具有雕塑感的下部体量创造出通透的界面,一条倾斜的扶梯从下部直达抬升的二层空间,共同构建出入口的形式要素,在突出社区入口的同时,带来具有雕塑感和视觉冲击力的建筑意象,呈现出独特的社区建筑形态。
△ 概念生成
△ 漂浮之门 ©路径建筑摄影
©路径建筑摄影
△ 社区中心入口 ©一刻摄影
△ 时光隧道 ©一刻摄影
建筑师以开放性和包容性为出发点,通过抬升地上空间营造建筑通透轻盈的“漂浮之门”。从全天候向市民开放的日常性场所过渡到社区性空间,延展了城市公共节点,并将更多的开放空间释放给公众。莱安社区中心化“boundary”为“border”,将传统住区与城市空间的物理隔离转化为多孔渗透的城市界面,以开放、邀请、包容性的姿态界定了城市与社区的边界,也为社区生活与城市空间的融入、交互提供了更多触发点。
△ 城市广场向社区空间的过渡 ©胡义杰
△ 城市空间与社区空间的渗透互融 ©胡义杰
社区之家-日常生活场景的体验
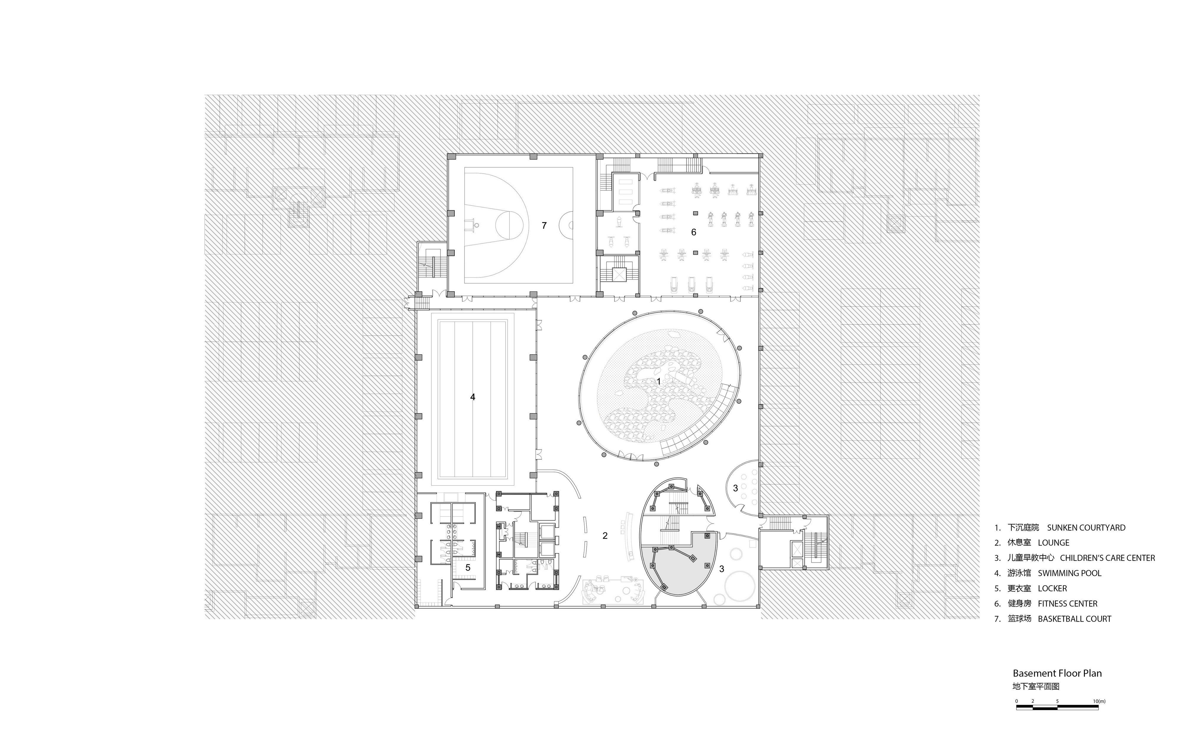
莱安社区中心的建筑功能兼具市民性和日常性,通过竖向联通贯穿在地上和地下空间。下沉庭院融合了运动健身、早教、儿童学后兴趣班等社区日常生活的场所,同时,地上二层的功能涵盖社区服务中心、文化展陈、多功能厅等市民性空间,地面层以自然起伏的地景形态的社区广场空间与富于雕塑感的建筑低区结合,形成一系列收放有致,富于层次的公共空间,与底部厚重的有机形体形成虚实对比。
△ 社区之家生活场景
△ 开放的公共空间 ©路径建筑摄影
△ 社区空间回望城市广场 ©路径建筑摄影
△ 庭院鸟瞰 ©胡义杰
建筑低区的开放空间最大限度地衔接城市与社区。通过将二层空间悬浮在地面上,莱安社区中心为公众释放出更多的开放空间和景观空间,塑造出一个可以进行休闲聚会和社区活动的市民场所,也为行人提供了友好的气候蔽护,使他们在广场上活动时可以免受恶劣天气的影响。多孔可渗透的城市界面增加了公众在景观中的参与性,入口广场丰富的微地形变化结合浅水池,吸引人们可以从周边随时进入这一场域,并在活动中心下方自由的穿行。
△ 行人友好的邻里空间 ©路径建筑摄影
©路径建筑摄影
有机的形制/流动的空间
这座具有雕塑感的建筑为沣东新城塑造了一个辨识度极高的建筑形象。建筑底部有机形体的复杂性和上层体量的简洁性的对比根植于中国建筑传统的双重性:人工介入与自然环境的相融合。
△ 人工介入与自然环境相融合
建筑功能串联了地上和地下空间,强调步移景异、回环曲折的空间转换。穿越“云门”进入社区之际,还会经过椭圆形的下沉庭院,素朴禅意的庭院创造出蕴含东方意境又富有生机的院落景象,营造出进入社区前门庭、院落相得益彰的丰富层次,从而最大限度地赋予“归家”多重体验。地下的儿童早教,休闲,健身活动空间围绕下沉庭院组织,为室内引入充足的阳光。
△ 素朴禅意的下沉庭院 ©一刻摄影
△ 社区活动中心 ©胡义杰
室内设计引入了开放平面和流动空间的概念,以鼓励居民之间的互动和交流。二层多功能展厅的内部功能可以随着活动需求进行灵活的空间调整。开放后的莱安社区中心将为市民提供各种具有特色的活动体验,使交往互动,对话成为邻里间的新常态。
△ 下沉庭院 ©胡义杰
△ 休息室 ©一刻摄影
△ 前厅 ©一刻摄影
建筑概念与结构表现的融合
悬浮的建筑主体结构采用钢结构框架和支撑体系,最大出挑达12米。主体部分除了超大悬挑,还要求二层楼面通透轻盈。在结构设计阶段,建筑师与结构工程师密切配合,结合建筑功能、屋面荷载、合理造价、以及楼面的舒适度进行综合考量,就轮廓造型、围护选材,结构选型进行反复的讨论与尝试,力求达到在建筑的概念表现与结构的系统优化之间获得理想的平衡。
△ 结构分析图
数字化加工与在地工艺相结合
建筑底部采用GFRC材料来实现其复杂的波纹双曲面造型及表皮效果的表述。200多块不同曲面的GFRC板,运用先进的CNC数控技术精准切割及定位MDF板,并用直径2cm的柔软杨木条搭建出双曲面波纹造型,再用原子灰抹灰及打磨的工序实现光滑的反模造型。然后同时喷射混凝土和玻璃纤维形成2cm左右厚的GFRC板,12小时后拆模成型。GFRC素混凝土厚重的质感和肌理彰显出城市的历史积淀,映射出一种与城市文化脉络的关联。
△ 柔化的混凝土表皮肌理 ©路径建筑摄影
△ 建筑细节 ©一刻摄影
△ GFRC木模工坊加工现场 ©EID Architecture
装配式的主体钢结构、GFRC板和玻璃采用工厂车间预先加工建造的方式,在减少碳排放、污水、扬尘的同时大大缩短了工期。 同时,项目良好地整合了当地的自然资源(包括气候和物质资源)来达到室内的舒适度。通透的首层促进了区域的自然通风,加快了热量散失,创造出凉爽的阴影空间——由于西安整个夏天常常出现极端的高温天气,这一设计在建造和使用的过程中备受赞赏。而精心规划的功能布局与建筑界面,使得无论是地上还是地下部分都能享受丰富的自然光线。
©路径建筑摄影
△ 幕墙细节 ©胡义杰
△ 施工现场 ©EID Architecture
当代建构与历史元素的融合
莱安社区中心的设计融汇了历史脉络与当代建构技术,在传承城市记忆的同时,创造一种面向未来的城市姿态。方案充分回应与融合西安城市丰厚的人文底蕴和新城板块的活力,平衡建筑的历史脉络与充满未来感的建筑形态。如果说建筑高区简约的体量是对西安古城格网状的城市关系的理性回应,建筑基座部分有机的形态则融合自然起伏的景观地形;莱安社区中心试图模糊建筑与景观之间的界面,建筑仿佛是从自然起伏的地景中生长而出。抬升的文化展陈与社区服务空间,渗透延伸的市民性广场,与下沉的庭院以及社区活动空间,形成多维的日常生活场景,建筑和景观作为一种促进社区交往互动的介体,共同织构西安城市中轴延展线上一处赋有活力的城市风景。
△ 夜景 ©路径建筑摄影
©杨辉
模型与图纸
△ 模型1
△ 模型2
△ 总平面图
△ 地下一层平面图
△ 首层平面图
△ 二层平面图
△ 屋顶平面图
△ 剖面图A-A
△ 剖面图B-B
△ 外墙细节1
△ 外墙细节2
项目信息:
项目地点:中国西安
业主:陕西万莱置业有限公司
设计时间:2019年7月
建成时间:2020年8月
建筑面积:4,500平方米
项目类型:社区中心
设计公司:姜平|EID Architecture
主持建筑师:姜平, AIA
设计团队:鲍嘉禄、陆生云、俞金晶、黎泓、徐威、王成阳、成怡萱
建筑合作方/机电顾问:四川洲宇建筑设计有限公司
结构顾问:上海源规建筑结构设计事务所/陕西泰鑫钢构工程有限公司
室内设计顾问:水相设计有限公司/深圳市飞檐室内设计事务所
景观设计:广州山水比德设计股份有限公司
GFRC施工单位:陕西美创新材料科技有限公司
幕墙咨询:上海传承博华建筑规划设计有限公司
摄影:路径建筑摄影/一刻摄影/胡义杰/杨辉

BIM建筑网













































