打开小红书,水裹·汤泉已经成为超一线城市的网红打卡地。区别于一般水疗空间的正式商务或闪金土豪风格,“自来水”最常夸的是这里“处处出片”、“时尚简约”、“轻松惬意”、“能呆一整天”。
水裹·汤泉不是只有网红元素堆砌的“摄影棚”,而是专注于身心舒缓的“氛围大师”,是不断产出美好记忆瞬间的“迪士尼”。而这背后的“操盘”设计师,就是对角线设计的创始人王兵。
水裹:汤泉“有意思”
作为年轻人的品质水疗空间,王兵将水裹空间设计的关键词定义为“有意思”。“有意思”是从水裹的三大主服务“汗蒸疗养、聚会餐饮、休闲娱乐”中提炼而来的,如何组织这些复杂的空间并将概念具体化在其中?王兵想到了综合丰富种类空间的设计典范——旅游城镇的规划。把水裹这个室内空间当作一个以“水”为核心的露天小镇来做,不失为“有意思”的尝试。
毕竟,水裹原本就是繁忙大都市中的“桃源小镇”,人们可以在这里消磨一整天的时间:首先,王兵为整个“度假小镇”开辟了一个带有温馨壁炉的“城市客厅”;然后,他为泡浴池、做SPA和汗蒸等重要活动设计出流线顺畅、视觉层次丰富的室内外“水”主题空间;之后,王兵将时尚、优雅的“酒吧”、“茶室”、“餐厅”、“果饮店”布局好,并为人们提供可以引起话题的特色“街道”和“广场”……
此外,他还需要为有社交娱乐需求的朋友设计安静的“图书馆”、天真的“儿童乐园”、轰趴的“桌游室”、喧闹的“游戏厅”和“迷你KTV”,以及粉嫩的“美甲店”等;最后,王兵把用来休憩的空间分为了私密程度不同的下沉冥想区、榻榻米、睡眠舱、休息大厅和“宾馆”客房。
在设计这些空间时,王兵在保持现代简约风格、金属和木质主材料的基础上,尽量突出每个场所的气氛特征。如高亮鲜明、盛取便捷的果饮区,照明充足、拥有旋转楼梯“天堂”寓意的阅读区,塞满马卡龙色海洋球或者动物家具的儿童区,以及压低天花造型、散落着懒人沙发的游戏和低语区。
家具和艺术品来自国际大牌,品质舒适、设计感足。巨型潮流文化公仔更是“打卡必备”。此外,王兵尽量让每个空间都赏心悦目。以功能性最强的汗蒸区为例:蜜桃和雪山色彩的“天然氧吧”里的喜马拉雅盐可以减轻压力;艳丽的火山岩房的矿物质和微量元素有益于健康;溶洞房里的石头则真的把天然岩石从大自然搬过来。
北京水裹:峡谷“游乐场”
王兵赞同维克多·帕帕奈克在《为真实的世界设计》中的一句话,设计就根本意义而言是一种“人与理想世界的现实关系”的构建。
北京水裹位于通惠河畔,王兵为了打破原有过于工整的空间格局,而弱化了入口的概念,通过设置中央景观楼梯形成一道崩裂的“峡谷”。他用镜面金属材质模糊了动态视觉对边界的定义,意图让人们在此起彼伏的影像中发现另一个世界。
汤泉区则基本就是“峡谷”的真实写意——室内汤泉仿佛“蓝洞”秘境,天花造型则类似溶洞中的钟乳石,但是做了几何化的抽象概括,内藏温暖照明;室外汤泉则可以顺着建筑外立面的“峭壁”望见湛蓝的天空,整个空间气氛陡然开阔起来。配合花岗石水渠与汩汩溢出热水的单人浴缸,再美好不过。
被景观楼梯自然分割的两侧空间,是主要活动区。它们像城镇街区围绕着主城区“广场”向外生长,功能之间的动线如川流不息的“街道”。这其中最惹人逗留的是“树洞”长廊,它位于餐厅和水吧之间,以“儿童乐园”的名义存在。几何简化后、树洞般的的长廊形式感强、层次丰富,提供多种独特角度,许多人在这里拍出了不输杂志封面的大片!
从这里继续前进,就能看到王兵设计的其他最常出镜的设计空间:
1、潮流文化标志KAWS背后的榻榻米娱乐区天花造型十分丰富,似树洞又像山穴,懒人沙发高低错落、似隔还透,不同程度私密性的小空间很适合独自休息或者打游戏。不同的材质和半开放半私密的隔断与弯弯曲曲的有机形态,打破了格子间的单一划分。
2、榻榻米娱乐区身后“别有洞天”,二层360度环绕圆形书吧类似的“迷你钟书阁”,双层圆环书架和竖条格栅围合出一个相对独立的静谧空间,点状光源使得这个同心圆环形空间在拍照之余,真正的阅读成为可能。穿过拱门拾级而上,三层还有个隐藏的“自然角”。
3、屋顶茶室不同于普通的夸张视觉形式感,宁静而别具地方特色——连绵的青砖黛瓦如今在北京已经是稀缺资源,所以视角很好的屋顶露台成为了最佳的“景观位”。何况青瓦间还点缀着质感细腻的三角形阁楼茶室,连屋脊兽都能看得清清楚楚。温暖实木配合米色内饰,营造出日式亲密氛围。
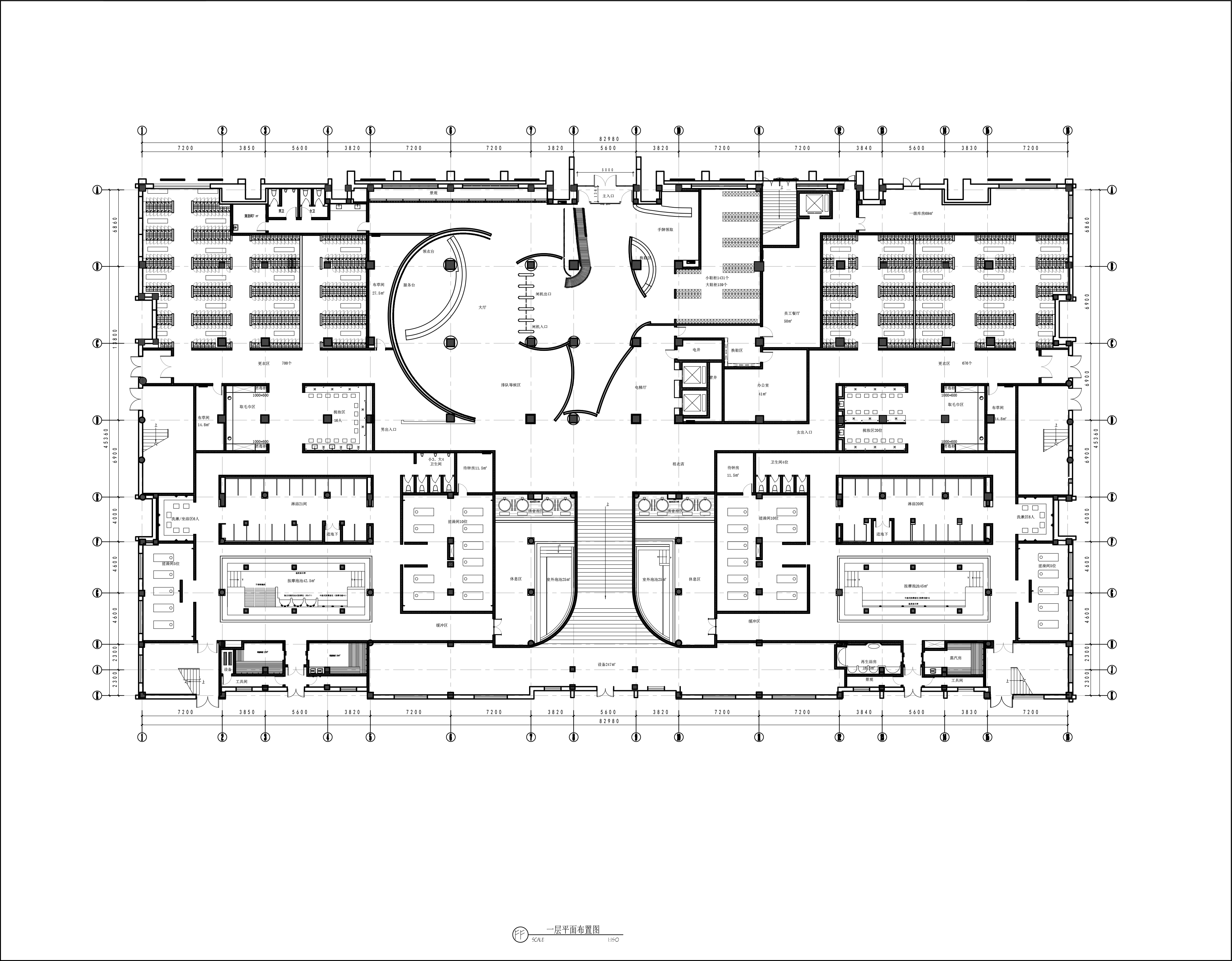
△ 北京水裹1F平面
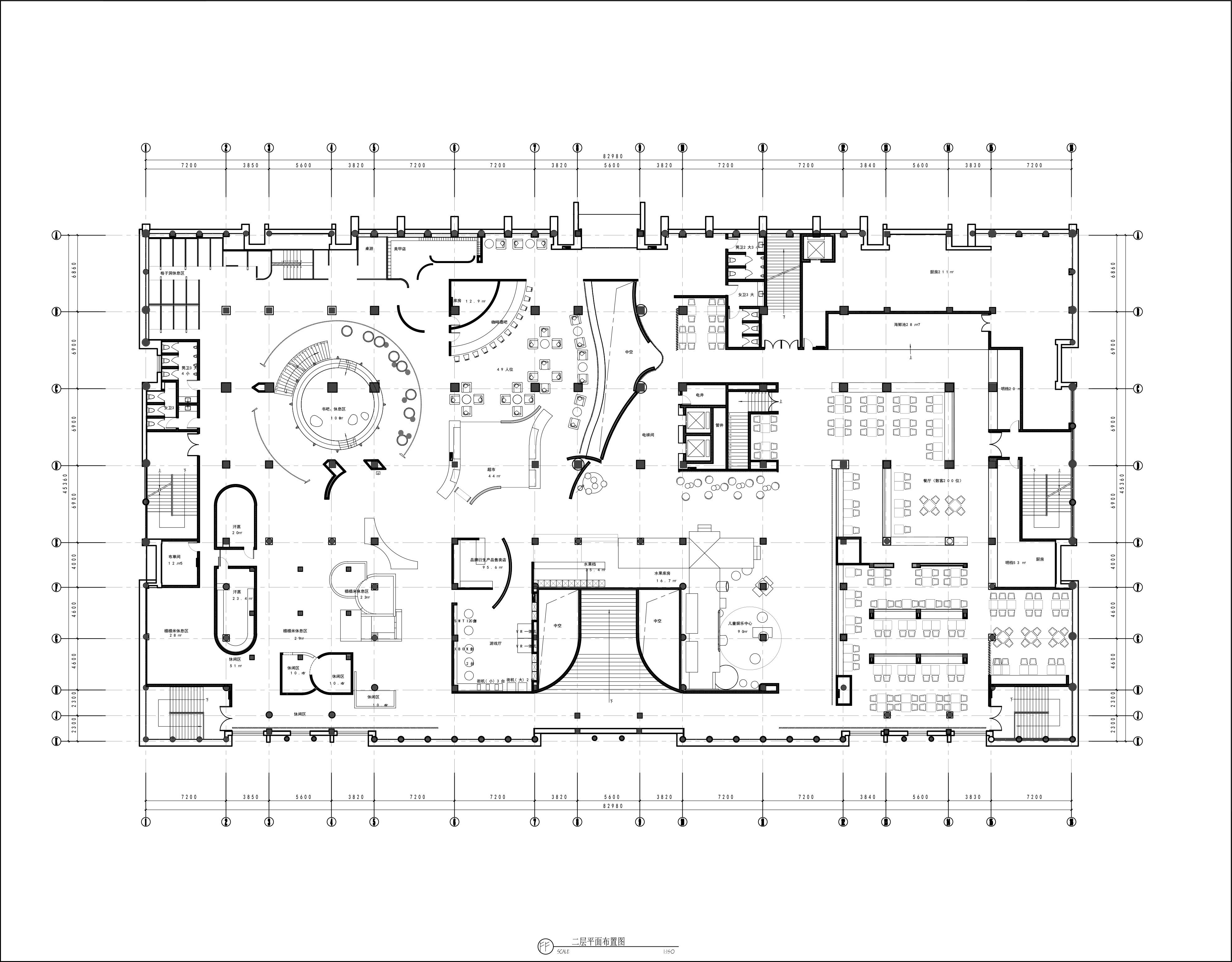
△ 北京水裹2F平面
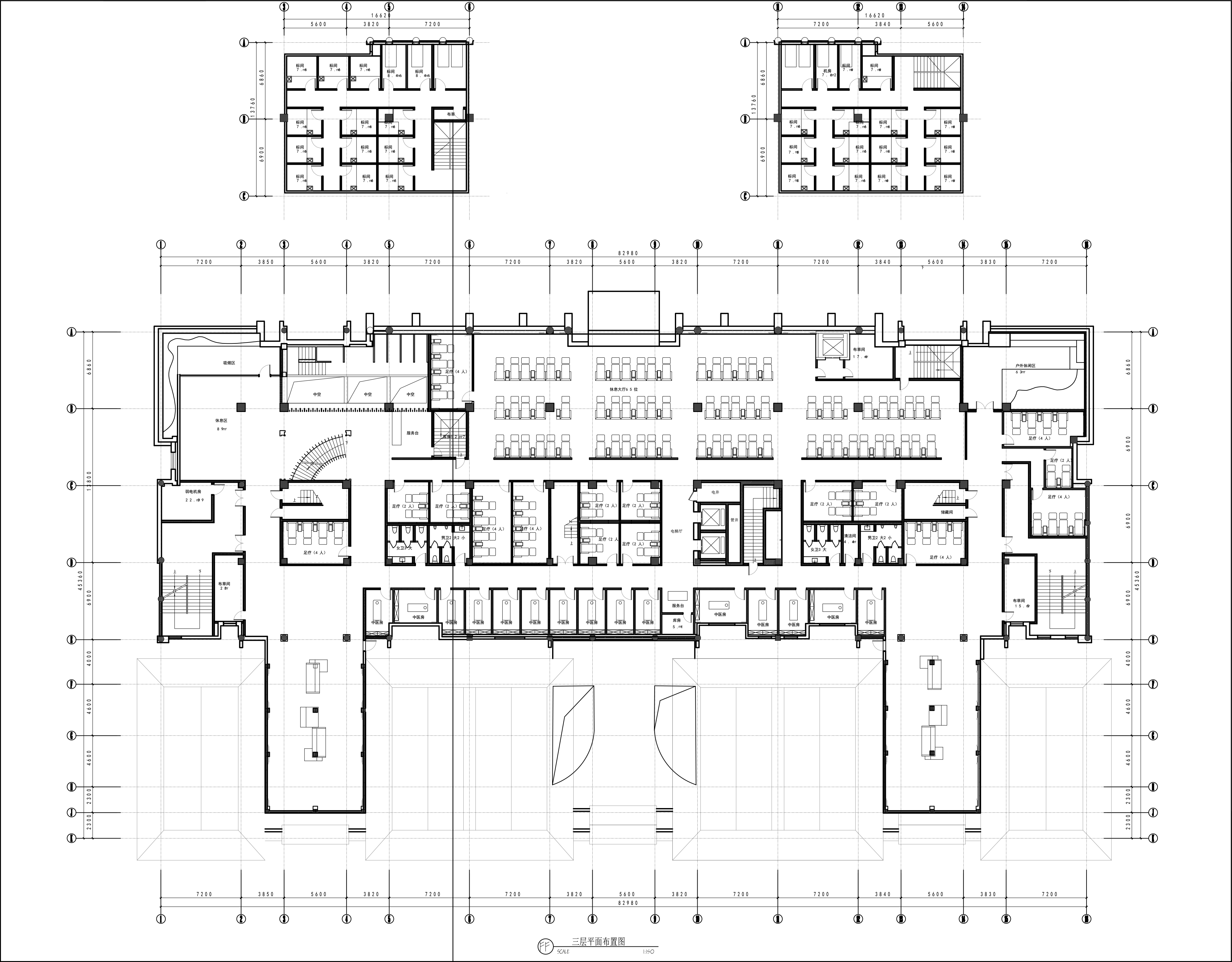
△ 北京水裹3F平面
上海水裹:城市“微度假”
与1.1万平米的北京水裹相比,更早开放的上海水裹还要再大0.7万平米。但是上海的建筑改造余地有限,而且离机场也比较近,因此王兵将这里定位为“城市微度假”主题,整体思路也还是按照城市规划方式进行。
这次,他把上海水裹的空间设计成了网友口中的“INS风生活馆”,甚至被称赞为“汤泉中的爱马仕”。不过“INS风”这种说法具体化到设计中是含混不清的,毕竟软件INSTAGRAM里流行什么也不是亘古不变的。但目前的“INS风”总结起来无非有三个特点,王兵在设计中都占了:
1、低饱和度的莫兰迪色或马卡龙色,杜绝明艳轻浮,视觉色调散发着“高级感”;
2、空间造型独特、善用平面设计语言,符合“黄金比例”,随拍随用不需要特殊构图;
3、擅长组织自然且有质感的设计单品,略带俏皮,但整体效果还是以清新、简约为主。
在王兵设计的上海水裹,最受欢迎的设计分别是:慢时光木屋,温馨小木屋需要爬梯子进入,好像回到童年的“树屋”秘密基地,里面还可以看电影;蜂巢胶囊仓,参考了日式胶囊旅馆,并排看起来温馨中透露出一些科幻感;蒙古包汗蒸旁边的五彩汗蒸房,里面的“星空”穹顶诗意盎然。
从杭州曲水兰亭、南阳悦界酒店,再到北京和上海的水裹·汤泉,王兵凭借专业设计背景与对“网红”审美的开放性理解。他重新定义了长久以来存在的生活方式,并通过概念层面的空间再造赋予其全新的活力与精神,创造出一个又一个广受都市年轻人喜爱和分享的品质公共生活空间。
项目信息1
项目名称:北京水裹·汤泉
项目地点:中国北京市朝阳区半壁店村惠河南街1062号
项目类型:水疗、汤泉、城市微度假
面积:11000㎡
项目状态:建成
设计师:王兵(对角线设计创始人),房栋梁,陆涛
设计公司:北京对角线设计
公司官网:www.duijiaoxian.net
业主:象上汇集团
主要材料:镜面白钢,木饰面,清水涂料
项目信息2
项目名称:上海水裹·汤泉
项目地点:中国上海申长路虹桥商务区龙湖虹桥天街B馆H栋B1层
项目类型:水疗、汤泉、城市微度假
面积:18000㎡
项目状态:建成
主案设计师:王兵(对角线设计创始人),房栋梁,陆涛,李仕勤
设计公司:北京对角线设计
公司官网:www.duijiaoxian.net
业主:象上汇集团
主要材料:木饰面,石材,不锈钢

BIM建筑网
























