纯粹轮廓的安静世界
在色彩到不了的世界,少了以颜色理解真实的共鸣与意义,日常熟悉的物体陌生了,始以全新路径欣赏光影的轮廓布局。
灰,是黑与白共用的影子
消减色彩的错综交织,保留黑与白单纯二元逻辑是本案设计特点。根据业主提出的色调偏好,水相设计认为空间调性应如艺术界看待单色画的观点:少了五颜六色的扰乱,更专注于物的轮廓、质地,以及光影能形塑的立体感。
但净化色彩并非仅有绝对而两极的黑与白互衬,我们必须创造两者间的灰阶地带,恰如毕卡索的黑白画《玛丽-特蕾莎,正面和侧面》,多种层度的灰色和谐地交杂于黑白间,表现各种进退面的阴影。单纯色相能使复杂的轮廓安静下来,令人开始欣赏细节的微妙之处,灰阶成了对现实的一种简单想像。
黑,最能表现光线纯粹的色彩
空间中,我们以黑色作为表现质地张力的主轴,贯穿公共空间的是一张长达4米、桌面为天然火山岩的长型餐桌,矿岩表面自然的质地疏密,在干净均质的色块环境里凸显出物的本质力道。这笔浓黑的线条,打破长型开放格局会安排的阵列习性,架构出与窗对景的视觉中心,串连玄关旁黑色调阅读角落与另端卧室区轴线,任室内行为自由流动于两侧平面。而藏在桌面下一抹勃艮第红,在默片般的场域画出冷艳的戏剧张力,稍纵即逝但后劲十足。
带领视觉的黑色,在90度轴线上迎来另一重点——立面纯净的哑黑色VIPP厨房,利用类家具的轮廓设计特点,延续开放空间由各种黑色元件拼组层次的语汇。我们拼接、叠放质地各异的黑:黝黑雾黑焦黑、原始粗犷的黑、细如发丝的黑、冷硬宁静的黑和奶油般浓醇的黑…从前在画里一致隶属影子,净化色彩同时也解放黑色的局限,经由日光在其表面折射的光线强弱,影子有了轻重的韵律变化。
白,广袤寂静的温柔映衬
餐桌末端、与向光面垂直的灰白色长型墙面,以间距约略的切割线创造极浅阴影,配合色调一致的天花板系统、灰色手工漆梁柱结构,以及同样面积占比广的米灰色地坪,皆属站在黑色对立面的淡色语汇。并非纯然净白的表情,它们以互衬的形式诠释画布上代表光的部分,在黑与白、明与暗的二极概念间柔和衍生出更丰富的层次,和谐地整合形体轮廓。
生活是反覆播放日常串连起的记忆长卷,在家的场域即便选择对比强的黑与白,还是可以应用材质扩充单色变化的细腻度,带来回味无穷的隽永。而层层叠叠不同调性的灰,消弭了黑与白的锐利,像不同时序里各种浓度、长短的影子纪录在同一画面中,掺入真实生活需要的温柔。
△ 概念设计
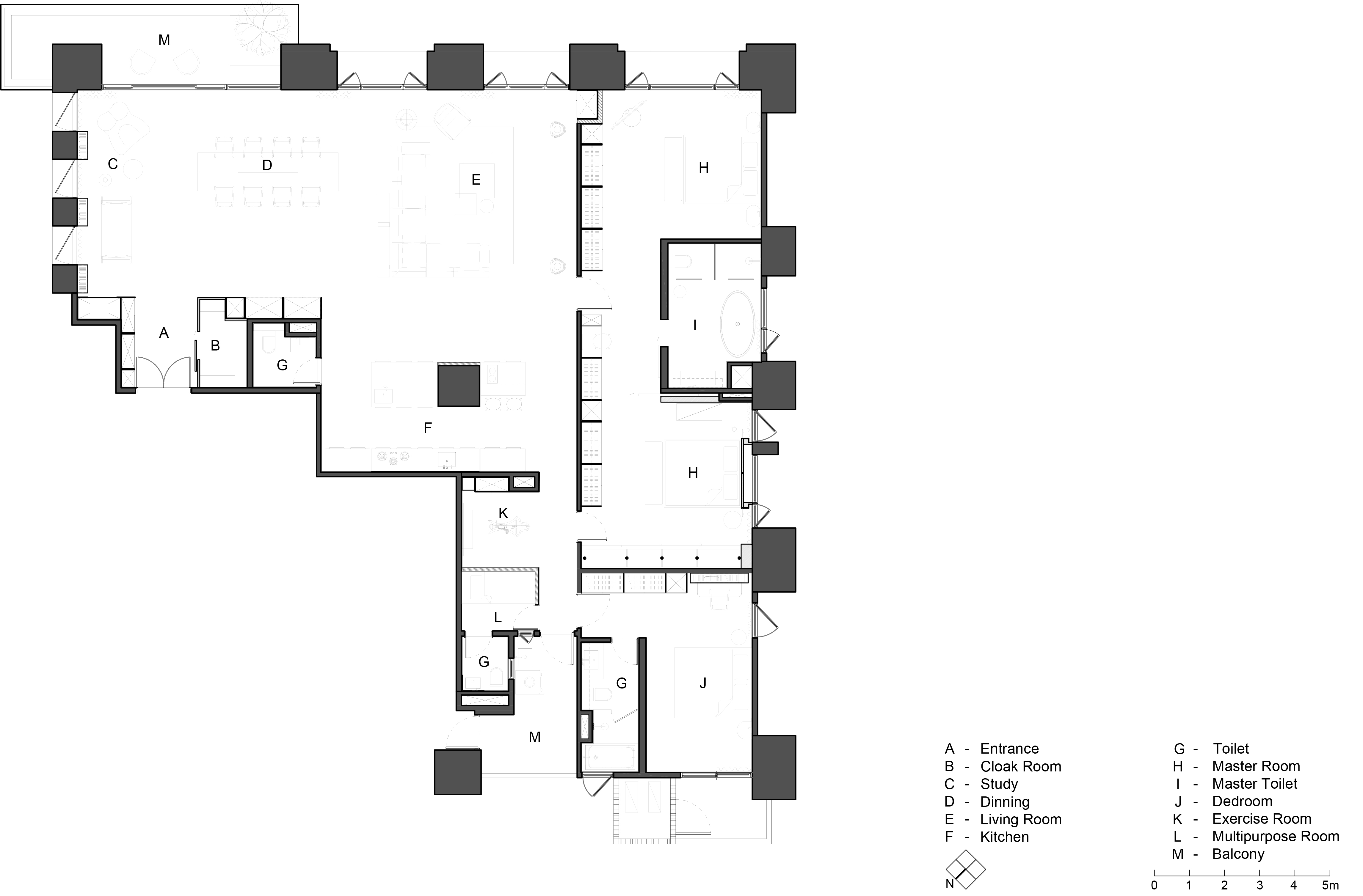
△ 平面图
项目信息
空间设计:李智翔/水相设计
业主:黄先生
空间性质:住宅
座落位置:台湾
室内面积:264平方米
空间格局:客厅、餐厅、厨房、主卧室、次卧室、阳台、卫浴
设计时间:2019.03~2019.07
施工时间:2019.10~2020.06
主要材料:黑铁烤漆、灰色手工漆、白色手工漆、橡木实木皮染黑、横纹木皮染白、橡木实木地板、深色石材
摄影:李国民空间摄影事务所

BIM建筑网




























