项目背景
本项目位于厦门市湖里区一家铝厂旧址内,建筑原本为厂区浴室。2019年,在铝厂被改造成为集酒吧、篮球馆、直播空间等多种业态并存的现代园区后,该建筑也得到部分修缮。本次我们受佛像艺术家蒋晟之托,将该建筑改造为全新的工作室和展览空间,闹中辟静,名为“极乐场”。
“极乐”一词源自佛教,意指向西经十万亿佛土之彼方,但“极乐场”却不意在成为一处与世隔绝的净土。业主希望能够摒弃“隔绝、遥不可及”等概念,打造一处引人入胜的精神场所。
佛的居所
不同于以往的建筑设计,这是一个目的特定的场域空间,改造后用于展示蒋家班佛像,因此不仅需要人性的体现,还需描绘神性与宗教性的色彩。
佛教创立之初并没有具象化的依托对象,随着大乘佛教兴起和工艺技术进步,佛教开始进入“像法时代”,如何将有形的佛像和建筑相互作用,以传达无形的感知便成了极大的挑战。经过与业主前期交流,我们对一个消隐的、甚至无形的建筑概念逐渐达成共识——建筑于此,仅仅是承载佛像与容纳佛学精义的媒介,是佛在俗世中的一处“居所”。
然而旧建筑的形体并不消隐,它由三个体块构成,由南向北呈阶梯状堆叠,我们依照层数,将其定义为1、2、3号楼。1号楼临街面有较多窗口,内部被墙体分隔为五个独立空间;2号楼东面有一颗高大的玉兰树,建筑内部为二层通高的空间;北侧的3号楼早前被改建为办公区,外立面为方窗阵列。
△ 原始建筑外观
△ 原始空间
根据“佛的居所”的建筑概念,我们的改造也由内而外展开。首先我们封堵了1、2号楼外立面的窗口,并打通了1号楼的内部墙体,由此得到一个相对整体化的“暗室”,营造出一种向内、封闭的空间氛围。在展厅内部,我们运用大量留白和一体化背景,将部件细节自然隐去,让佛像的自有形态愈加凸显。
随后,我们对建筑外部进行整理与简化,将部分体量做实。建筑外部使用了与内部相同的檀黄色涂料,特殊的墙面肌理由工人师傅手工反复涂抹形成,原本立面语言相异的三栋建筑由此和谐交融。远眺而望,一棵高大繁密的玉兰树占据了视觉中心,建筑形体在树冠的掩映下消隐了边缘,变得隐忍克制,似有还无。
光的容器
“极乐场”建筑形体的消隐,使光成为空间中重要的构成因素。
厦门地处东南沿海,阳光充足,雨水充沛,当地的传统建筑因地制宜,会使用较大的坡屋面檐口和较小的窗洞开口。受此启发,我们在建筑顶部增设了或圆或方、或阵列或孤立的31个天窗,让无处不在的光相应填充,从而营造出两种空间:“明亮”的主厅和“封闭”的暗室,其中的佛像也依照光暗环境分别放置。
△ 手稿
主厅顶部开设的28个圆形天窗向上凹去,当阳光偏斜时显现为平面的光点,当阳光投射时则可形成密集的“光雨”。主厅的佛像主要由木材、石材等密实不透的材质雕刻,当光线映射于此,佛像光影清晰,并随日照偏移不断变化。
主厅南侧相连的一层空间则是暗室。我们在暗室顶部开设了两个大小不一的方形天窗,并在一侧墙面低处开设了一个长条窗。相较主厅,暗室中的光线更为散漫朦胧,展陈其中的佛像使用了琉璃、玉石等较通透材质,当光影从罅隙中淡淡散落,佛像的边缘随之虚化,有时会产生“虹化”的禅境。
荏苒冬春,四季轮转,通过对光的“捕捉”,无形的时间也被描述出来,静默流动,与安定于此的佛像共同阐述出“永”与“恒”的意境。
玉兰树下的净土之旅
最初勘测场地时,我们就被建筑东侧硕大的玉兰树所震撼。彼时,我们并未辨认出其树种,只是尽可能地在设计过程中加以保护和利用,使之成为整个项目的标志物。直到设计完成、施工过半时,我们才惊喜地发现,这株与基地同龄的玉兰不经意间开花了,即便在室内也能感受到它扑鼻的清香。
改造完成后,这棵玉兰树就像“极乐场”的法器一般巍然庄重。在高大繁密的枝干掩映下,简洁的建筑形体更显隐忍。沿街立面门窗“避虚就实”的改造,为整栋建筑添了几分引人探究的趣味。
在玉兰树的引导下,参观者绕过墙体,通过树下的旋转门进入展厅,到达一个较低矮的玄关接待空间,再跟随阵列圆形天窗形成的“光雨”,进入两层通高展厅。
一侧的落地窗与室外庭院相连,尽可能的去模糊室内外的边界。主厅南侧有四个门洞通往一层“暗室”,以颇具秩序感的方式来区隔明暗。
主展厅一隅有一段垂直向上的旋转楼梯。
拾级而上便可到达屋顶露台。
露台与玉兰树咫尺相望,树叶和花的香气迎面而来,令人神怡心旷。
露台的一角新设了一段室外直梯,用以连接2号楼和3号楼办公区。为了提升办公区的空间感和通透感,我们拆除了原本厚重的电梯井墙体,并在楼梯间顶部增设了天窗。从垂直的、光影变幻的楼梯间拾级而下,便可到达办公楼一、二层的时装展厅和工作坊。
整个建筑在“玉兰树-佛像与光-屋顶露台-办公空间-时装展陈-玉兰树”的紧密相连中,构成了一个循环往复的串联流线,玉兰树贯穿其中,既是起点也是终点。
难点与不足
“极乐场”项目自最开始就有着施工成本与技艺的限制,我们与业主皆认为应该顺客观条件而为,也因此在建筑及空间上塑出了一股“拙”的生命力,并与佛像的精美形成对比。
例如建筑外立面及佛像展厅室内(天花、墙面等大部分空间)均采用了一款肌理涂料,这款涂料在当地没有合适的供应商。为了保证最终效果,业主方、施工方与我们一起在场地上进行了反复试验和打样 ,最终所有室外及室内墙面的特殊肌理皆由工人师傅手工反复涂抹出来。完成后的肌理效果,使原本相对各自独立、立面语言不统一的三栋建筑重新获得了整体性和识别度。稍显遗憾的是,原本可以让具象光线及佛像更加凸显出来的天地墙一体的展厅,由于工期的原因,地面部分改成了与办公室统一的深灰色金刚砂地坪。
此外,由于项目周遭环境繁杂,建筑完工后,我们发现了许多有趣的“意外”:原本朴素的会议室在窗外红色建筑的映射下变为了粉色;低调的灰色窗框在外部环境的影响下也变成了紫色,业主决定将这些“意外”悉数保留,他相信这也是对“极乐场”寓意的一种诠释。
说起打造“极乐场”的目的,蒋晟希望从根本上创造些什么,比如佛像对视觉进行革新,“极乐场”则为对空间进行革新,借此,在信仰相关领域,或许能呈现出一些全新的体验和感悟。
改造前后对比
技术图纸
△ 区位图
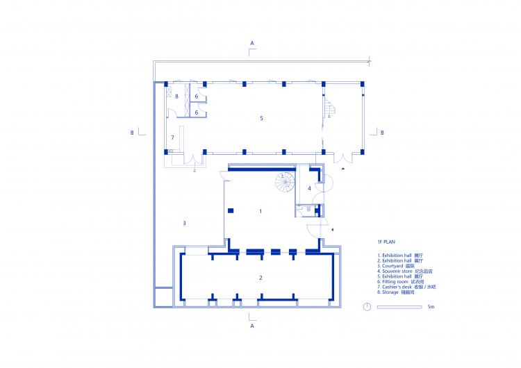
△ 一层平面图
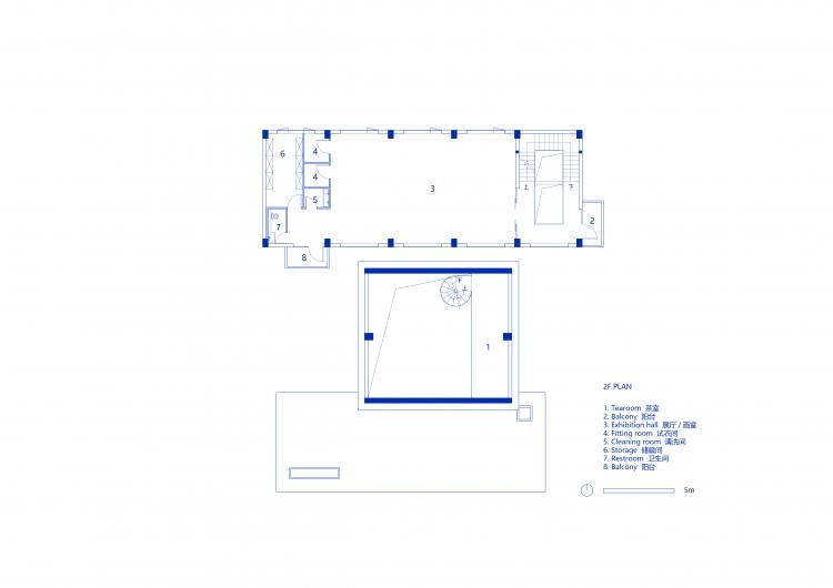
△ 二层平面图
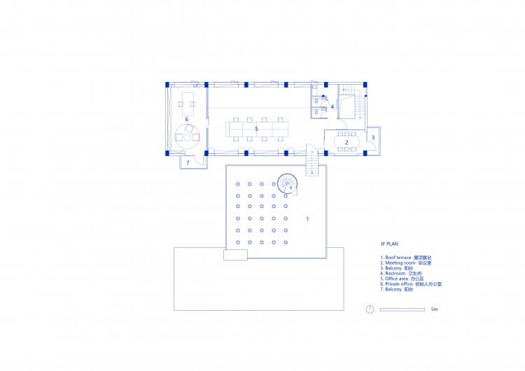
△ 三层平面图
△东立面图
△南立面图
△A-A剖面图
△B-B剖面图
项目信息
功能:展厅、办公、零售
设计时间:2019.11-2020.02
施工时间:2020.02-2020.06
地点:福建厦门
建筑面积:842平方米
团队:肖磊、杨毓琼,林文珺,王晗
类型:建筑及室内
状态:建成
摄影师:雷坛坛

BIM建筑网






























































