在高速发展的城市化进程中,城市空间革新多数由于更新范式的相似性,呈现出同质化的城市空间与景观。城市因而失去其应有的在地特征甚至精神活力,老建筑在其中起着关键作用。
而如何实现老建筑的循环使用,同时满足不断变化的城市发展的需求,是当前一个亟待解决的问题。进而当建筑达到令使用者愉悦的基本诉求后,一定还存在着功能、技术、美学及可以被感知和被传承的精神力量。
2020年贵阳轴承厂改造项目则为我们提供了一个很好的实践契机。
△ 贵阳轴承厂 ©战长恒
贵阳轴承厂建于1958年,2019年轴承厂正式停产。在城市更新带来的土地升值的巨大诱惑与历史建筑的延续之间,我们在不断进行平衡。在新建的地铁口边共5500平方米的五座砖砌厂房,总共超过10000平方米的用地面积,最终连同外围环境用地被完整保留下来。
△ 基地区位 ©自绘
作为曾经的生产建筑,贵阳轴承厂的生产功能在城市进程中已然褪去,在满足功能的转换与其适配的空间提升之外,我们也思考着如何进行精神性的介入。
我们试图运用雪松—场所记忆、生活剧场—城市景观、时间之线—精神世界等不同性质却又相互依存与关联的元素,重新建构出精神世界与城市生活的同生共存关系。
△ 场地中的雪松 ©林烁
建筑总是与自然环境进行着对话。当建筑空间能与所处的场地环境交融时,作为空间本身将会获得城市中独特的氛围。伴随着厂区发展的一棵雪松,已经有几十年的树龄,虽掩藏在杂乱的树丛中,但依然统领着整个场域。
当整理出场地之后,雪松便成为了主角。既存的物会叙说自己的形成、形成时的历史状况,促使人们对空间进行阅读。
△ 设计手稿 ©詹涛
△ 圆环坡道入口 ©邱日培
于是,一个诺大轻柔的白色圆环坡道被设置于厂房前区的场地中心,它围绕着雪松,发挥了重要的导向作用。
雪松作为场域的中心,是静止的,成为整个空间场地的记忆点。人可沿动线转向,流动,被牵引而进入新与旧对话的场域。
△ 圆环坡道与水面、建筑的关系 ©邱日培
△ 圆环坡道与水面、建筑的关系 ©战长恒
△ 改造后的轴承厂入口 ©战长恒
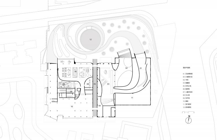
由圆环延展出来的廊道延伸入厂房内部串联多个空间功能节点,包含了沉浸式博物馆、展厅、书吧、咖啡厅、报告厅、儿童乐园、运动中心,构成了城市生活综合体,成为城市的活力激发点,厂房因此而转换成为城市生活的容器。
△ 室内空间分析图 ©共生形态
△ 记忆博物馆、时光隧道 ©共生形态
△ 乐转书房、乐予咖啡厅 ©共生形态
在原厂房封闭的山墙面,我们由室内延伸而出,嵌入了不同高度的金属质感空间体块,形成了面向城市开放的“生活剧场”,人在建筑内部的活动得以面向城市展现,成为城市景观的组成部分。
△ 设计手稿 ©詹涛
△ 改造后的1-3号厂房 ©战长恒
具有反射特点的不锈钢金属材料反衬出周边的环境与厂房粗犷的红砖墙,将新城与旧景融合一体,光滑的金属面令人产生了视觉与触觉的强烈差异,由此所形成的张力重新塑造了城市空间的气质。
△ 改造后的3号厂房 ©战长恒
△ 改造后的4、5号厂房—“生活剧场” ©战长恒
而穿插其中的一条“时间之线”,成为建筑内部感知时间和内省的场所。
△ 设计手稿 ©詹涛
△ 时间之线与建筑的关系 ©战长恒
这是个小而狭长的空间,约4×55m,位置在三四号厂房之间,原是轴承厂的设备间。
通过改造拆除原砖砌横向结构墙体,窄小而高耸的空间体量便有了向前的深邃感;通过两片竖向逐渐相向接近的弧墙,细长而深邃的空间体量拥有了向上的引力。
△ 空间光影效果 ©共生形态
弧墙到顶部并没有相接,而是留出了一道约400mm的缝隙,让天光得以渗透而下,洒落在弧墙上,人们可通过光线的明暗、强弱感知着时间的变化。
△ 弧墙顶部缝隙 ©共生形态
当人沉浸于内,身体感知建构着世界,同时也被世界建构。白色墙面褪去世俗纷扰与庞杂,让人们将注意力从日常的生活转向与内心的对话,在有限的空间里创造无限的幻想,并由此获得一种内省的空间体验。
△ 时间之线与坡道、建筑的关系 ©邱日培
△ 模型 ©林烁
△ 首层平面图
△ 立面图
△ 剖面图
△ 时间之线示意图
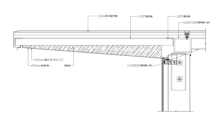
△ 大样图
项目概况
项目名称:贵阳轴承厂改造
项目地点:贵州省贵阳市花溪区
设计团队:XAA建筑事务所詹涛工作室
主创建筑师:詹涛
方案负责人:林烁
建筑团队:林烁、吴结东、邬超
开发商:美的置业西南区域公司
设计周期:2019年5月-2019年11月
建设周期:2020年4月-2020年9月
用地面积:14827㎡
建筑面积:7960㎡
室内设计:广州共生形态工程设计有限公司
景观设计:广州域道园林景观设计有限公司
摄影师:战长恒、丘文建筑摄影工作室

BIM建筑网































