信息社会背景下为儿童早教提供一席之地
在信息社会中,我们的工作方式不断变化。与以往情况不同,现在需要转换工作职能,与不同领域的人合作来完成目标。在这样一个时代,我们相信幼儿需要一个肯定多样性的地方,并在那里与不同的朋友一起交流。
信息社会需要的能力之一是空间意识。研究发现在复杂环境里(如森林和山脉),仅凭视觉很难完全理解整个空间,在这种环境下可以同时训练身体和大脑。空间可以引起人的变化。如果创造一个肯定多样性的空间,在这个空间里的人也会肯定多样性。如果创造一个不稳定的环境,倡导人群的运动状态,人们自然会有更大的开发空间。在这所幼儿园里,我们希望为孩子们创造机会,去积累信息社会所需要的经验和心态。
KidsLabo南流山市幼儿园的设计概念
1.求同存异的共享空间
这是一个独立的多边形空间,孩子们可以在这里进行各种各样的活动。在信息社会中,不同特长的人共处一室集思广益。并不是每个人都做相同的事,而是需要求同存异。多边形空间没有明显的中心,可以划分出许多不同的功能区域。因此孩子们在同一个空间内可以从事不同的活动。
项目设置了两个花园,外花园完全脱离建筑,内花园半室内半室外设置。当在外花园玩耍时,内、外花园的边界实际上变得很模糊。当在内花园玩耍时,室内外空间仿佛融合在一起。内花园与室内房间相连,内部空间的视野因此变得开阔。在两个花园里孩子们一起玩耍共度时光,从事不同的活动,如果他们乐意的话随时可以在室内外穿梭,有时不同年龄段的孩子也可以结交成朋友。内花园成为一个模糊内外边界的空间。
3. 边动手边思考
操场上布满了凹凸不平的面层和柔软的网眼,平坦的区域很少,是一个需要全身协同运动的三维空间。信息社会需要的一种空间意识,这需要通过动手动脑来训练。基于发展交通的考虑,城市里到处都是平坦的路面。通过增加幼儿园中三维空间的数量,我们希望培养孩子们必要的空间意识,这在城市中是不易获得的。
4.一个自由制定规则的环境
园区的外部环境要素只有山、沙和水。在任何情况下都没有固定的搭配方案。在这个简单的环境中,孩子们可以自行制定游戏规则。
5.与众不同没什么不好
建筑内的色彩搭配并不协调。我们试图创造一个包容不同个性的空间,让孩子们认识到具有个性不是什么坏事。
6.留下孩子的印记
我们设计了一片区域来留下孩子们玩耍的印记。幼儿园入口处有一个沙坑。当一个孩子进入,沙坑会留下他玩耍改造的痕迹,随着越来越多孩子的加入,便会产生更多的变化。到了晚上放学的时候,沙坑里已经满是孩子们的“创意作品”。
7.幼儿园的整体面貌
这所幼儿园位于一个典型的新型住宅区,周围的大部分建筑都是同时期建造设计的。为了与周围的建筑形式相协调,我们采用了新型坡屋顶,窗户的比例与周围建筑的比例一致。屋顶总平面呈现为多个小屋顶的集合,目的是强调多人协商、共同思考。结构的设计回应了集思广益的初衷。外墙开窗独特,向外凸出,为外部空间平添了一丝神秘感。屋顶开有天窗,将大量的自然光线引入室内。
△ 模型
技术图纸
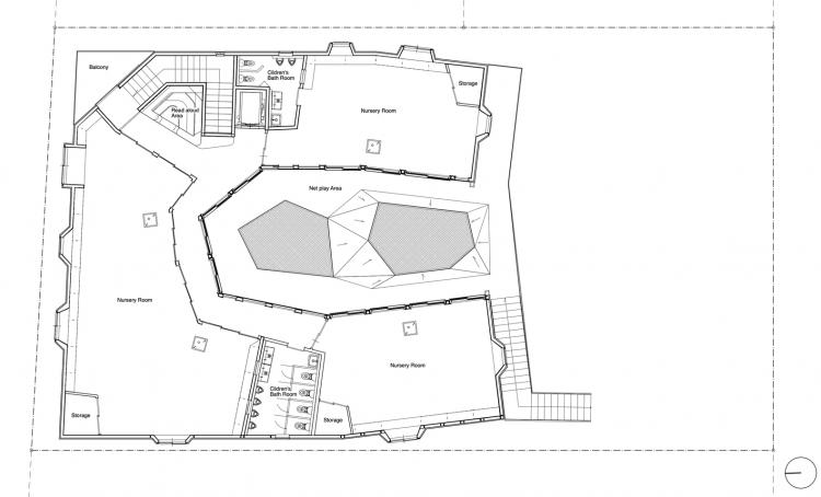
△ 一层平面图
△ 二层平面图
△ 屋顶平面图
△ 立面图
△ 立面图
△ 剖面图
项目信息
项目类型:教育建筑,日托中心
项目地点:NAGAREYAMA,日本
建筑设计:teamLab Architects
面积:497m²
项目年份:2021
摄影师:Vincent Hecht
客户:KidsLabo Incorporated

BIM建筑网





























