故事始于东湖绿道,让人难以想象的是,在超过千万人口的武汉城中,竟有一条连绵上百多公里的步道,它跨越大山大湖,穿过竹林樱花,纵横于圩田与阡陌之间,从车站到场地的高架路上,超大都市的繁华和逼仄感同时迎面而来。还好,这种“千城一面”的尴尬终于在场地中消失殆尽,关于武汉“湖泽交汇,山水城市”的想象又重新疯狂生长。
结庐
我们已经想不出最初面对场地中两间旧屋时的感受,因为在18年的冬日里,东湖的晨雾、凋零的残藕和村边葱郁的云杉填充了记忆的全部。在其后十数次的奔走中,鸟鸣和蛙声,翠竹和嫩藕,夕阳中湖边的渔网,如同一片片拼图,为“峦舍”炮煨出完整的情境。
△ 总平面图
毫无疑问,对于陷在“文明”之中的都市人来说,此情此景已经足具吸引力,基因中的烙印让我们心心念念“复得返自然”。然而对我们来说,设计绝非框景那么简单,“最美的风景是人”,我们不仅要引入景观,还要吸引人,让这里发生更丰富的活动。
将一半多的室内面积用作公共活动,而非明码标价的客房,这是个需要勇气的选择,然而建成后络绎的人群,证明这是一个正确的决定。受到乡村法规的限制,改建仍需保持建筑的原有轮廓,但其内部空间则变得十分丰富。
△ 分析图
△分析图
登高
那么在高敞的屋形天棚之下,人们如何观看“山林湖泽”?设计灵感来自于攀登武汉丘陵的经验,又得到了北宋山水画《晴峦萧寺图》的印证,在登高的路途中,中国意境的山丘上出现了亭塔、楼阁、水榭、茅舍、板桥……构成了人们驻足回望的“岑峦”与”重台”,古人把纡回绵连的小山称为“峦”,“登石峦以远望兮”,峦舍(Step House)即得名于此。
△ 模型
纳物
被恭迎进门的还有阳光,它们在墙壁上运动,留下时间的光斑,引人驻足,凝思。清晨,面向竹林的东窗上洒下安静的阳光,树影婆娑清雅;而在下午,沉浸在西侧温暖的阳光里,使观湖也变得浪漫。
在过去的一年中,武汉遭遇了新型冠状病毒的攻击,但随后不久,城市又恢复了高速的运转。久困家中的人们纷纷到来,峦舍最希望纳入的是璀璨都市背后的丰富情感,疫情让人们不断反思:幸福是什么?是简单的生活,是欢乐的团聚,更是那份割舍不断,却轻松转身的“现代乡愁”。
技术图纸
△ 总平面图
△ 一层平面图
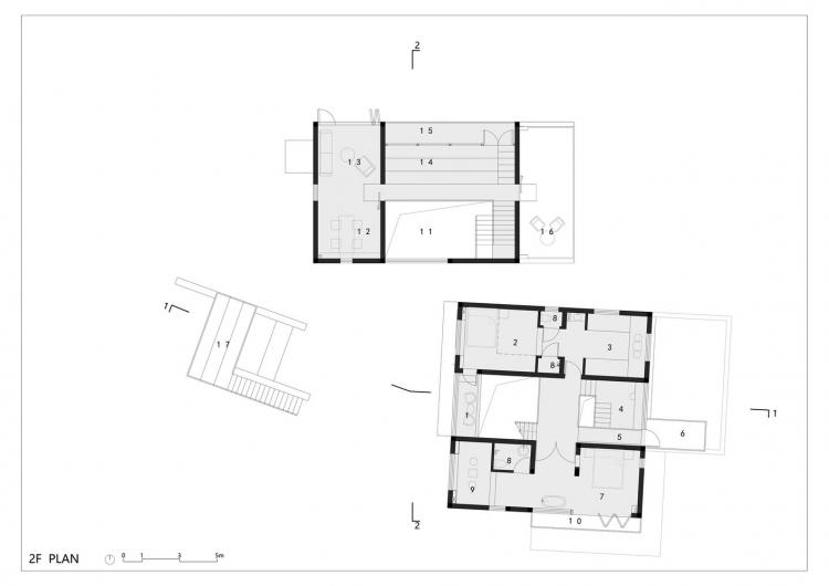
△ 二层平面图
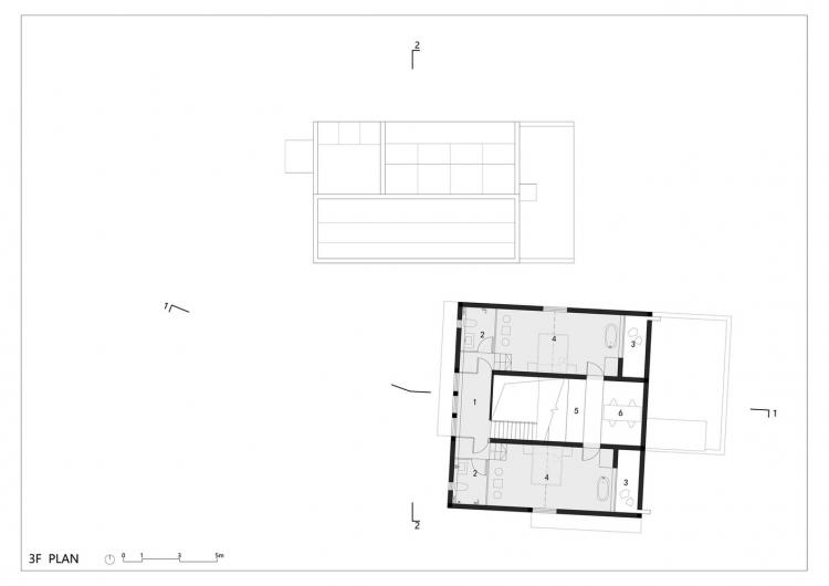
△ 三层平面图
△ 剖面图
△ 剖面图
项目信息
项目地点:武汉,中国
建筑设计:王冲工作室
面积:500m²
项目年份:2021
厂家:创象塑木板,科定板,立邦漆
建筑设计/室内设计:王冲
施工图:王冲,黄再新,黄立宇 ,陈艳培
设计顾问:叶先锋,林宇
摄影师:朱雨蒙

BIM建筑网











































