Subaru 幼儿园是一所从其他地点迁移来建在福冈郊区的托儿所。在该项目开始前,日本刚发生了2016熊本地震,因此客户要求建筑师为儿童设计一座耐久的建筑。
这所幼儿园非常强调体育教育,并要求建筑师将建筑分为两个部分以容纳两个年龄组的儿童,即一组年龄较小的儿童(0、1和2岁)和一组相对较大的儿童(3、4和5岁)。这样可以根据儿童的身体发育状况促进适应年龄的体育活动。
建筑师在参观场地时,发现在场地西侧有一个与当地神社相连的小树林,可以欣赏到浩瀚的稻田和花立山,以及东北方向远处的连续山脉的全景。建筑师认为他们需要仔细考虑如何将这些环境与幼儿园联系起来。
我们在每个育儿室旁边提供了两个花园,一个面向神圣的小树林,另一个面向南边的稻田。这座蜿蜒的建筑环绕着每一个花园,行政房间(包括教师办公室)位于“节点”处,人们可以在那里观察儿童的活动。
此外,转角处还设有一个带凸起舞台的会议厅,构成一个不规则的S形平面布置图。
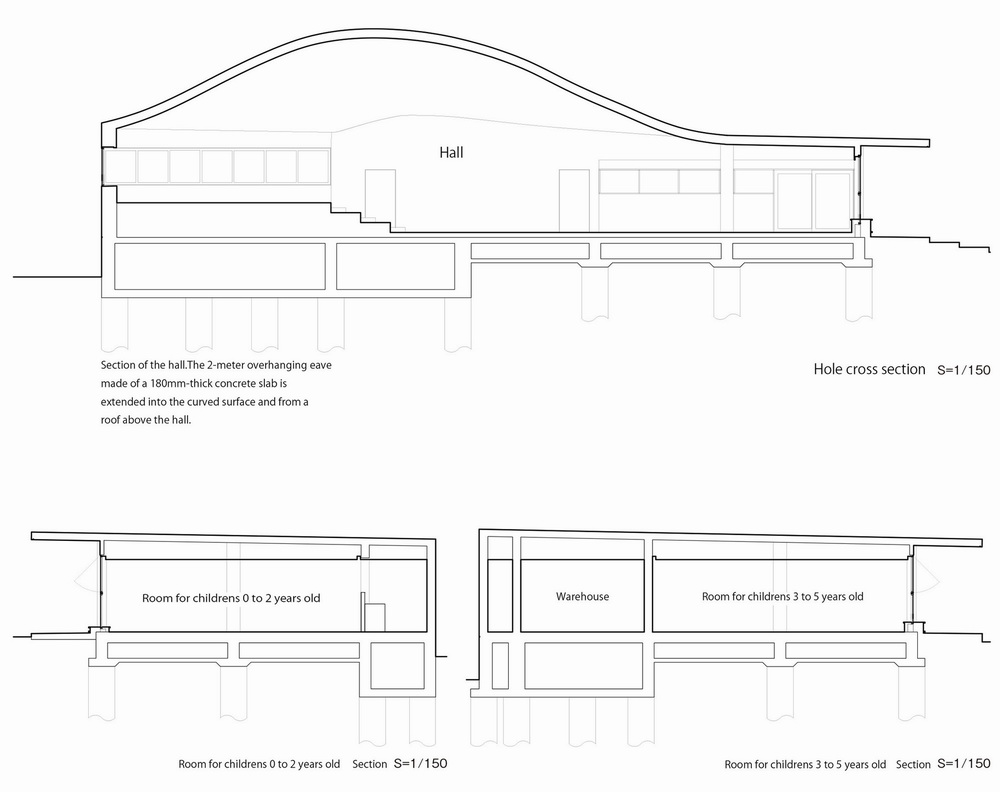
建筑师研究了一些可能的屋顶结构,需要考虑到每一个地方的不同使用要求条件:屋檐必须有2米深,以防台风时建筑物遭受大雨和强风的侵袭,而会议厅舞台上方所需的净空高度必须超过4米。
最后,建筑师设想了一个由180mm 厚混凝土板组成的连续包络线,使墙壁与屋檐无缝连接,并渐渐升起成为三维弯曲屋顶。
通过设计优化,确定了屋盖的三维曲面,最大限度地减小结构应变。屋盖跨越15米宽、4米高的无柱空间,并与墙体合并构成整体结构。
从大厅里,远处的山景,由水平带窗框景,显得非常近。
从外面看,用算法设计生成的起伏的屋顶形状和自然形成的花立山的形状相互交叠,形成了建筑与周围景观融合的连续景观。在这里,建筑师成功地实现了“建筑是一个连续的体量”的概念,成为一个丰富自然中的一部分。
技术图纸
△平面图
△立面图
△剖面图
项目信息
建筑师:RFA+CFA
项目年份:2018
摄影师:Takumi Ota
工程师:Eisuke Mitsuda
场地面积:5,718.42 ㎡
建筑面积:1,281.88 ㎡
总面积:1,203.43 ㎡
主创建筑师:Ryuji Fujimura+Shunji Hayashida
City:Ogōri
Country:日本

BIM建筑网

























