编者按:本次向大家推荐的方案来自墨西哥PRODUCTORA事务所。如何使一座历史悠久、却又未经注册的古建筑保留于城市生活中?该项目提供了一个低成本、实用又能保留地域文化的加建思路。其设计通过一个简单的屋顶,使这座 20 世纪初建成的宫殿能免受下雨的干扰,为市民举办文化和节日活动,因而成了该建筑在当代继续生存的契机。
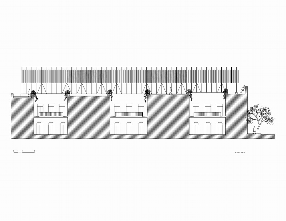
客户希望能够在建筑原有的三个天井上加盖屋顶。我们没有对这三个天井分别进行设计,而是生成了一个单一的建议:一个连续的屋顶结构,长度超过 50 米,将露台连成一条直线,并在露台之间生成新的被屋顶遮盖的空间。
该结构由 45 个轻质金属桁架组成,每个桁架相距 1.2 m,将重量平均分配到现有结构上,并突出屋顶的韵律和透视感。
三角形屋顶部分的设计不对称,所以一侧可以形成一个空气循环。
轻质和工业化的合成材料,如 PVC 甲板、聚碳酸酯板或由尼龙网制成的栏杆,力求减轻建筑的重量,并与这座历史建筑的材料形成强烈对比。
此处使用了两种不同类型的聚碳酸酯(半透明的和全透明的)来过滤阳光,同时能让人从庭院看到天空。
此外,编织成的屏风(从农业生产中借鉴而来)被集中使用在特定的地方,以缓和太阳的入射。
结构的几何韵律被另一系列元素促进,例如高于露台的花盆能够重新划分露台与天空的界限;又或者是那些灯具能够突出建筑与城市天际线的互动。
该项目是避免拆除墨西哥城历史悠久但未经注册的建筑物的替代方案,它展示了如何在没有(或尚未获得)全面修复资金的情况下,将有价值的建筑结构以一个智慧的方式重新使用。
它探索了建筑“基于原本(as found)”的美学价值,并通过突出其与当代加建的对比性来增强这种体验。
技术图纸
△场地平面图
△一层平面图
△屋顶平面图
△剖面图
△剖面图
项目信息
建筑设计:PRODUCTORA
面积:870m²
年份:2020
摄影:Onnis Luque
主创设计师:Carlos Bedoya, Wonne Ickx, Abel Perles, Víctor Jaime
合作成员:Ruy Berumen, Diego Velázquez, Emiliano Rode
客户:Proyecto Público Prim
城市:墨西哥城
国家:墨西哥

BIM建筑网






















