△图源网络
维他奶,作为香港电影里的标志性代表,现如今越来越多出现在我们的生活场景中。仲夏夜,约上三五好友撸串、聊天,大汗淋漓之际喝上一口冰爽、顺滑的维他奶,可谓是非(fei) 常(soeng)过(gwo) 瘾(jan)。口感醇厚的豆香造就了它的非凡味道,大量的蛋白质和碳水化合物充分补充了我们每位食客们的营养需求。在与好友欢聚之余,有了这一份承载着丰富情感的饮品加入,不禁让人沉浸其中。
©schranimage
而远在广东东莞的维他奶工厂,工人们以最有序最高效的方式,与北纬45°中国黄金种植区的天然大豆/优质的原材料产生交流。尖端的生产设备、合理的空间规划、良好的作业体验… …在这座专业且现代化的工厂内,设计不在于它长什么样子,而在于它以何种方式运作。
©schranimage
©schranimage
©schranimage
工业建筑的第一要务是产能
©schranimage
自设计之初到现在,维他奶东莞食品饮料生产中心的诞生过程历时4年。我们在遵循工业建筑尺度感的同时,还将实用性、经济性和流线组织作为设计的关键驱动因素。
△生产区规划
生产区规划应满足生产工艺的要求,依照工艺流程的物料顺序,物料流向保持同一方向的连续性,缩短原料到成品的中转路径,提高中转速度。
维他奶从原材料入库到最终变成大家口中的美味饮品,材料(包括原辅材料、包装材料和成品材料三大类)是生产的重要元素。因此,物流及仓储区的空间规划是一个摆在我们面前的大难题。如果物流、仓储与生产车间的关系处理不好,很可能造成总体布局紊乱,流程交叉或颠倒,材料进出库不流畅等问题,长此以往将直接影响工厂运营效率。
©schranimage
©schranimage
除了考虑工艺需求外,我们还注重工厂的使用体验。维他奶东莞工厂占地约150亩,能够同时满足生产、办公及员工宿舍等基本功能。这样“三件套”的功能配置,在东莞的工厂中不算特别,但区别于其他工厂只为生产的糟糕环境,我们在设计时将厂前区、生活区、生产区通过周界系统实现分区管理、增强体验度,让真正的打工人有质量的工作与生活。
△功能分析图
©schranimage
©schranimage
24h不间断的“大物流”秩序
©schranimage
维他奶工厂物流进、出库比例约为1:10。看似简单的数字背后,需要环环相扣的设计才能支撑起内部复杂的物流系统有序运行。通常,原材料入库车辆约为20辆/日,成品出库车辆约为100-200辆/日,高峰期出货车流约为300- 400辆/日。针对昼夜不停的物流需求,我们既要考虑人员与车辆的安全问题,也要照顾到他们的心里需求。
△物流流线
预留货车等候区、确保运送原材料的车辆不经厂区内其他区域,不需要倒车调头,高效离场。
©schranimage
©schranimage
物流区在空间、照明、指示系统等多方面综合考虑。15米无柱式悬挑结构,空间干净、视线通透,确保AGV叉车、大型货车倒车安全;雨棚下方的照明设计,让夜间作业有了安全保障;专门预留的等候室,为长途司机提供了休憩空间。
©schranimage
©schranimage
Z世代的上班体验
©schranimage
员工及相关劳动者是生产活动的主体,也是工业建筑中使用频率最高的使用者。Z世代的打工人不仅要实现自我价值,还要更有尊严的工作。
△周界系统
©schranimage
我们通过系统的周界设计,将生活区与工作区有效隔离、刷卡管理。这不只是为了员工的安全考虑,还从心理层面尊重他们对仪式感的需求,平衡工作与生活的关系。
△非机动车流线
△机动车流线
©schranimage
宿舍底层半开放空间将园区中的各种共享功能置入其中。我们通过架空、遮阳的设计,使户外公共活动空间更好适应东莞当地气候。闲暇的时候约上好友,看看书,健健身,一起放松、一起娱乐,打工的生活也变得不那么枯燥了。
△员工宿舍©schranimage
△员工阅览室 ©schranimage
△员工餐厅 ©schranimage
参观者的绝佳视角
©schranimage
△参观流线
参观流线是现代工厂展现企业文化的极佳通道。有别于其他企业展厅与车间地面参观的传统模式,我们从纵向空间切入设计,双层、架空的参观通道贯穿生产区及高架库两个核心区域。参观者透过15°斜面的玻璃廊道,可以更清晰、直观的观赏车间生产情况。垂直空间的利用,避免参观者与员工流线重合进而影响生产秩序。
©schranimage
©schranimage
©schranimage
园区内部运营管理秩序展现着企业的状态和价值。我们借助空间规划,塑造了清晰的物流系统、人行系统、车行系统和运维系统,这些繁杂且清晰的流线,映衬出内部管理的逻辑,也构成了维他奶“大物流”工厂的基础。可以说,工业建筑蕴含的所有隐性秩序,在维他奶项目中都得到淋漓尽致的体现。
©schranimage
©schranimage
技术图纸
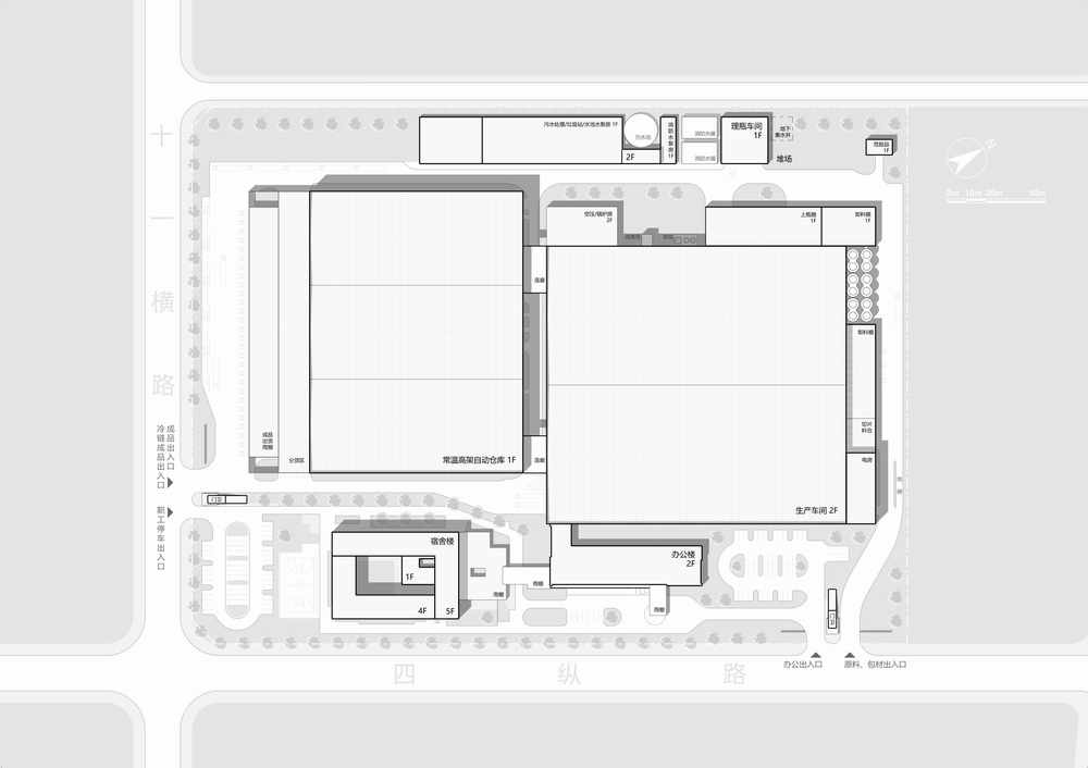
△总平面图
△车间立面图
项目信息
项目名称:维他奶东莞食品饮料生产中心
建筑事务所/公司/机构/单位: ZZT工业建筑
事务所/公司/机构/单位网站: www.zztang.com
联络邮箱: vivien.wei@zztang.com
公司所在地: 上海
项目完成年份: 2020.11
建筑面积: 96,368㎡
项目地址: 广东省 东莞市 常平镇四纵路3号
委托方: 维他奶国际集团
主体钢结构及围护系统:巴特勒上海有限公司
工艺设计:广州轻工院

BIM建筑网







































