项目所处的这座污水处理厂 是一座成衣厂综合体的一部分,位于施塔拉卡亚河 岸边的棕地。马斯林棉纺厂 (MuslinCotton Mills) 是上世纪50年代成立的国有企业,2013年被拍卖给了一位私营工业家,准备重新开发。
旧工业导致了该地区地下水极度枯竭,不受管控的污水排放也造成的河流的污染。在人们的传统观念中,污水处理过程带来的是视觉和嗅觉上的不适,所以污水处理厂是不美观的建筑。因此,业主最初的意图是把污水厂置于河边,并尽可能把它隐藏起来。
这一项目最大的挑战在于,这座污水处理厂的原始定位完全以功能性作为主要目的,因此最后呈现的项目仅实现了必要性,却毫无吸引力可言。经过与业主的多次协商,建筑师最后决定将污水处理厂作为综合体的一个重要部分加以开发。
建筑师坚持要逆转原有的水循环路径,以减少对地下水的依赖。因此,通过与管道专家和水文专家的合作,设计团队提出了一个综合的水文系统,取自河流的水和收集的雨水将在水体中自然储存和过滤,用于生产过程。设计团队还决定恢复场地内一条已经枯竭的水渠,并引入一条不允许外人进入的森林带,这两者都能够促进自然的过滤过程,同时帮助恢复场地失去的生态平衡。
△水资源优先处理排列图
△水循环分析图
△结构优化分析图
生产过程中产生的废水随后在污水处理厂中进行处理。为了保证处理后的水质达标,处理后的污水还将被进一步储存并在一个保留池中自然过滤,然后通过一个计量监测的连接点,排放回河水之中。
这座400m³容量的污水处理厂从场地的入口处就能够被清楚地观察到并进入,这也标明了它在工业和生态过程中的重要性。建筑师与技术顾问紧密合作,优化了四层结构的几何配置,形成了一个紧凑而有效的场地布局。
△动线图
△轴测图
形式上的表达进一步体现了污水处理厂的重要性,建筑师借鉴了其原有的工业机械形态,并将其转化为雕塑般的形式。污水处理厂前方的蓄水池不仅可以过滤和储存水,而且还强化了形体设计的视觉效果。
在施工过程中,设计团队优先考虑使用重复利用或者现成的材料。从拆除的废旧建筑中保留下来的碎石被用作污水处理厂混凝土部分的骨料。
而金属制的建筑原件,诸如栏杆和窗框的设计,是为了确保最大限度地利用从旧结构中回收的MS钢材。除此之外的金属材料需求是通过利用当地轧钢厂的回收钢材来满足的。
从场地定位到形式表达,污水处理厂得到了纪念和优化,以确保在每一层设计之中的水质都能达标,与此同时,作为整个建筑群雕塑式入口标志。
△总平面图
污水处理厂连同其周围的与景观干预措施一起,成为了生态平衡恢复的一个关键组成部分,而不再是一个孤立的建筑厂房。
技术图纸
△体块平面图
△地下室平面图
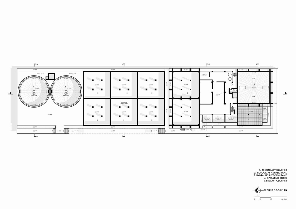
△底层平面图
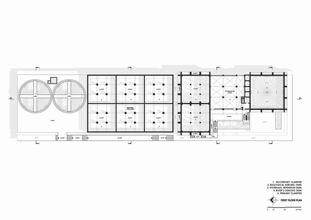
△一层平面图
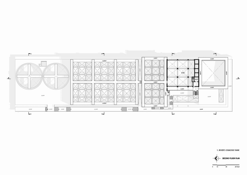
△二层平面图
△三层平面图
△鸟瞰图
△北立面
△西立面
△南立面
△东立面
△剖面图
△剖面图
△剖面图
△剖面图
△剖面图
项目信息
建筑设计:SILT
面积:7153m²
项目年份:2019
摄影师:Noufel Sharif Sojol
厂家:Shah Cement
主创建筑师:Razib Hassan Chowdhury
项目建筑师:Sumayia Binte Samad
景观建筑师:Naheen Nuruddin
污水处理顾问:Akmol Hossein
结构工程师:Syied Mahbub Morshed
建筑设计:SILT
施工方:Acme Constructions
City:Kaliganj
Country:孟加拉

BIM建筑网



































