设计背景故事
中环艺术馆的设计图纸于2008年完成,十年之后得以建造,已于2019年七月底竣工。中环集团CEO余竹云先生是一位有着艺术情怀和责任担当地产人。十多年前,他在走访了安徽一带民间艺术家的工作室后,看到那些造诣精深的艺术作品在狭窄的空间中无处安放,更无缘为世人所知后,痛惜之余萌生了要为它们搭建平台的想法。他在找到我们时说,希望这个低密度、小规模的艺术馆园区成为艺术及艺术家与大众相遇的场所,并以其独特的能量辐射周边,成为造访这座城市的游客们必打卡之地。而与这个地块比邻的将是高楼大厦的丛林(当时还是一片平地),如何实现他这个既单纯又颇有难度的理想呢?
△设计草图
设计思考起点
对场地形态深入思考后,我们很快决定,在这个以高密度的建筑、超宽度的机动车道为显著特征的现代都市新区中引入一片人工“自然”,以成片的开花树木为主要元素,将这个地块打造为一个艺术与自然共同造就的小气候。我们希望艺术馆成为一个具有强烈开放性、社会性,容纳并积极影响人们日常生活的场所。
原则很快被制定下来:一切以景观至上,建筑作为大景观的一部分融入整体环境。
景观至上原则
艺术,是与自然平行的和谐世界。——保罗·塞尚
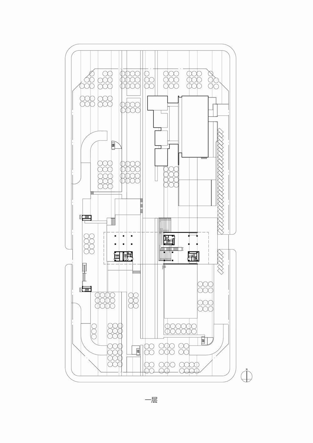
这个项目的景观设计先行于建筑设计。我们首先用一系列简约的平行线沿场地的长轴展开,对场地进行“初始格式化”,意在建立一套MATRIX,对万变的自然进行梳理。平行线的格局强调此处自然的人工性,并方便为将来的种植进行色彩上的布局。
在后续的景观设计深化中,这些平行线内的区域演化成为下沉广场的阶梯型大看台、静水面浅水池、大型坡道、室外和半室外平台、樱花树阵、以及颜色各异的灌木丛。灌木丛树种既有红花继木、红叶石楠,也有金叶女贞、茶梅、毛鹃等,甚至还预留了区域可以季节性耕种油菜以供春季赏花。
在这个大格局中,中环艺术沙龙作为本项目一期于2009年(十年前)落成并投入使用。其后院绿坡上伫立着以参与此项目的建筑工人为原型的真人尺度雕塑,在新落成的艺术馆背景的映衬下,以艺术的形式和语言致敬着普通劳动者。
建筑与室内空间
为了场地上统一而延续的风景,建筑以漂浮的姿态存在,给地面上的景观让路。艺术馆沿场地短轴展开、垂直于景观平行线的走向,正对东侧地块步行商业街的街口,邀请来访者进入并开始一段与艺术有关的漫步。
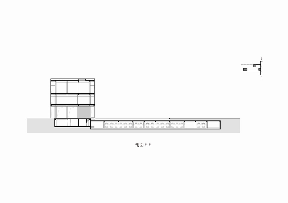
进而,我们希望建筑本身也成为一个漂浮的风景。从枝杈繁茂的森林截取一个片段,成为建筑的外观形象。因为“漂浮”,建筑与大地之间形成一系列供各种活动展开的室外及半室外空间,如入口广场、与其相通并通向下沉庭院的大台阶看台、与入口广场隔下沉庭院相望并与大型坡道相连的西侧平台,等等。同样因为“漂浮”,入口大厅被抬至二层,人们在建筑内部的艺术漫步需开始于一个充满舞台戏剧效果的大型楼梯。
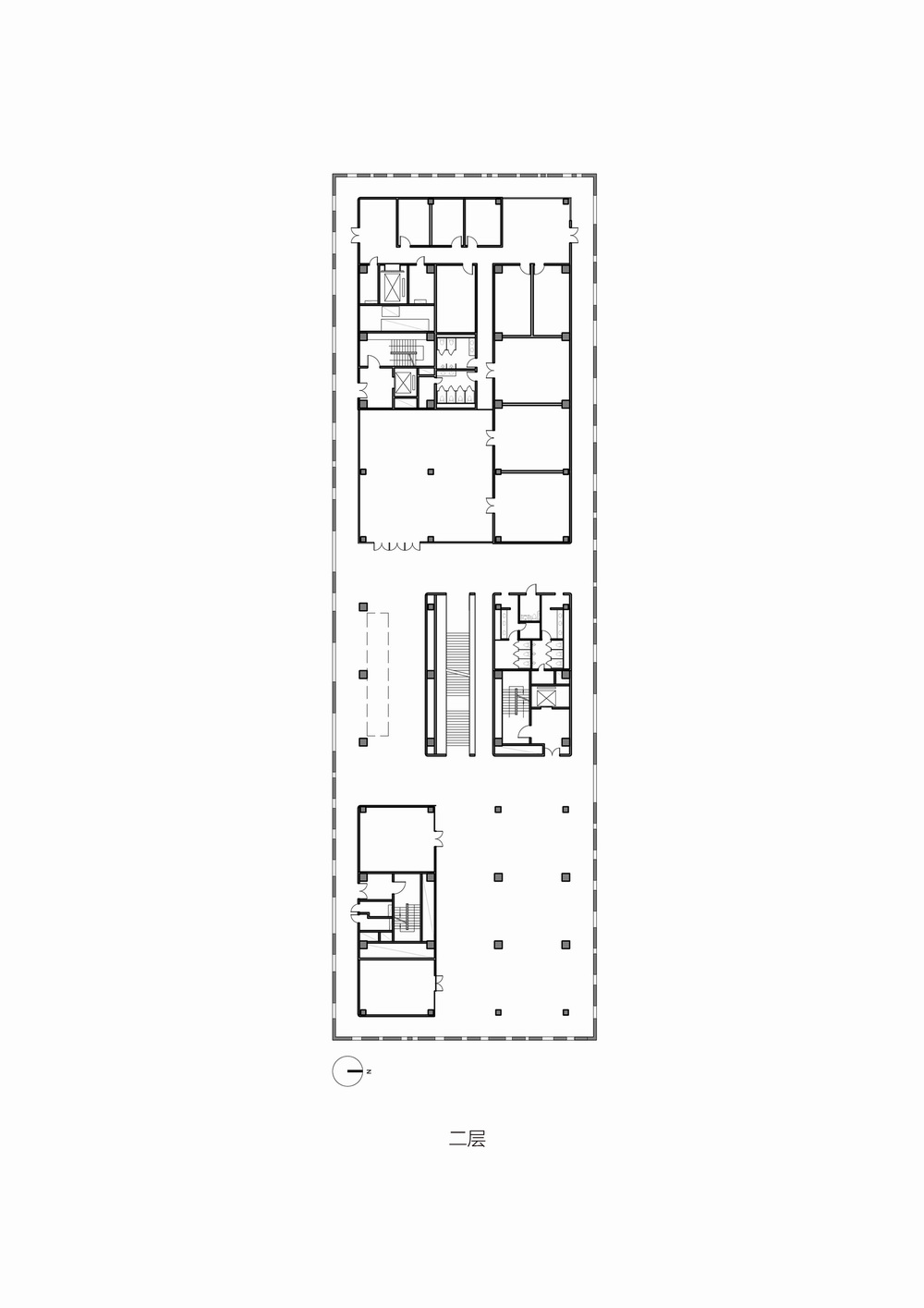
大型楼梯将来访者直接引入二层的接待区和开敞的多功能大厅,贵宾厅、会议室均与大厅直接相邻。大厅与环廊共同构成了这一层的自由流动空间,可以举办活动和引入非专业性小型展览。
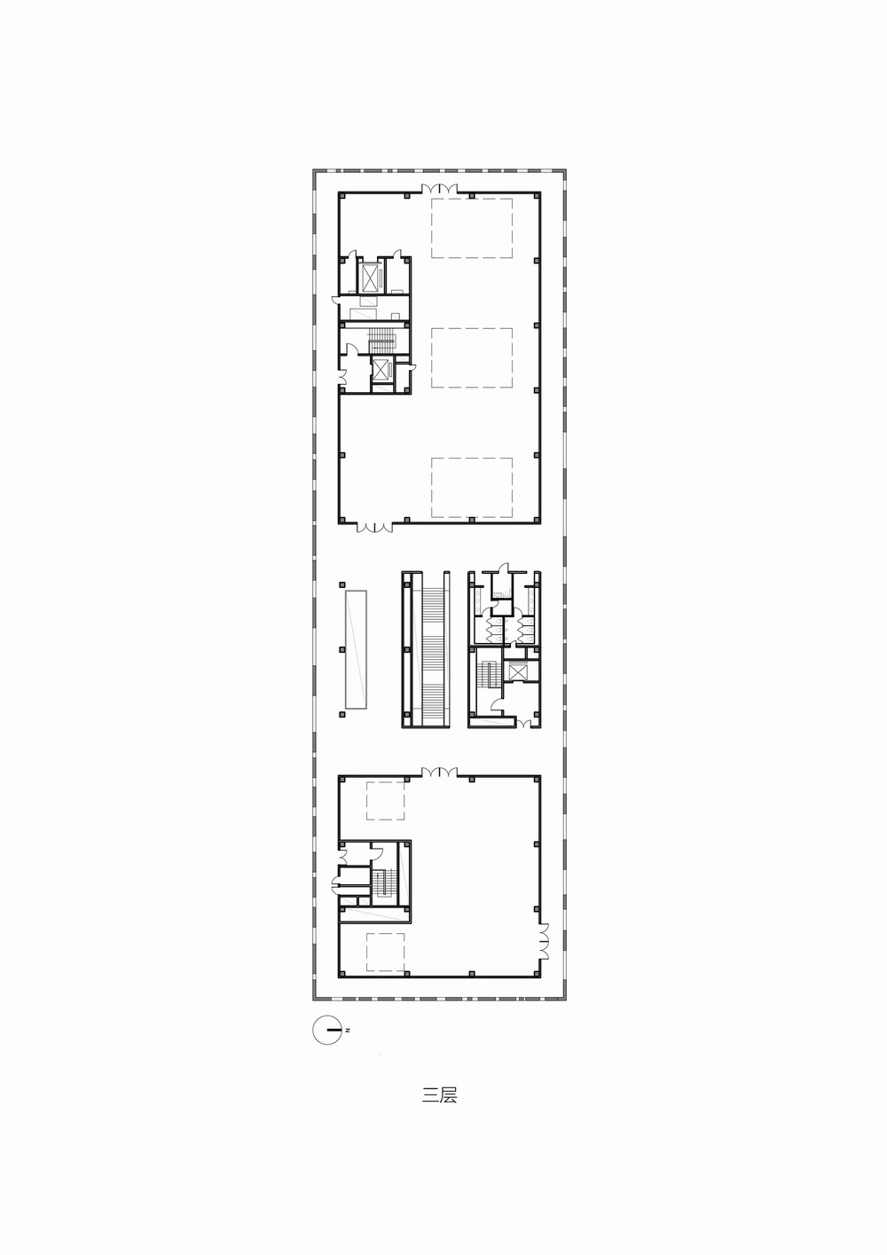
主要展厅均位于三层。大小两个展厅成为建筑的“内核”,是两个仅局部屋顶对天空开敞的内向型盒子;“内核”之外的空间则被最大程度地“释放”,并被独特的建筑外皮统一包裹。建筑的外皮成为室内与室外之间一道具有强渗透性的界面。游走于其中的人则在虚实之间欣赏被并置的自然景致(窗外)和艺术作品(窗内)。
光与色彩
建筑的主要内部空间分为两类,一类是展厅空间,自然光从屋顶垂直进入内部;另一类是展厅外空间,自然光从侧面水平进入室内。大型垂直交通楼梯间则介于两者之间,主要采光从屋顶天窗获得,兼备少量侧窗洞,从相邻空间获得借景,及水平向间接采光。
建筑外表皮的颜色为灰与白,取自徽州民居的黑白素色。容纳主馆与副馆的“核体”,外表皮为彩色(粉色和黄色分别取自徽州春季的特色植物——桃李及油菜花的颜色),内表皮为纯白色用以展示多彩的艺术作品。而垂直交通核的内、外表皮均为新叶绿色,明亮而新鲜,令穿梭于其间的人如入画中,成为“舞台”的主角。
这些室内空间的色彩将从白色镂空外墙面隐约渗出,在白天和夜间,为建筑增添一抹含蓄的神秘色彩。
技术图纸
项目信息
项目名称: 中环艺术馆(The Central Ring Gallery)
项目类型:建筑 /景观/室内
项目地点:安徽省 合肥市
设计单位:Studio A+
主创建筑师: 王敏
设计团队名单:王敏,丁梅,李辉,张雯雯,王崇硕,竟昕,魏玉伟等
甲方:安徽中环地产有限公司
造价:1.5亿元
建成状态:建成
设计时间(起迄年月):2008年5月-2008年12月
建设时间(起迄年月):2018年3月-2019年7月
用地面积(平方米):30017㎡
建筑面积(平方米):16525㎡
合作单位:CCDI(悉地国际)
照明:北京宁之境照明设计有限责任公司
施工:安徽中环创新绿色建筑产业有限公司
摄影:陈溯,方淳

BIM建筑网



































