圣彼得和圣保罗老年人活动中心(St Peter & Paul Courthouse)位于瑞士苏黎世的韦德区,是为当地圣彼得和圣保罗教区基金会养老退休中心新建的活动设施。
该项目由Knorr & Pürckhauer Architekten负责设计和建设,作为既有的养老退休中心扩展的活动空间。
项目主创建筑师Philipp Knorr 和Moritz Pürckhauer表示:“该活动中心位于住宅区的庭院中,这种建筑类型在当地很常见,用作工作室、办公室、医疗室,甚至是美术室”。
△二层办公区域
△二层办公区域
△一层活动区域
活动中心的设计灵感源于德国画家马克斯·利伯曼(Max Liebermann)的作品“布兰嫩堡的花园”(Biergarten in Brannenburg),我们希望它能为当地社区注入新的生命。
△ Max Liebermann 的作品 Biergarten in Brannenburg © artnet
原场地的篱笆被拆除,并铺设上统一的砾石铺地。活动中心共三层(地上二层),各层可用于不同的功能,能为整个社区提供最佳的服务。
活动中心的地面层使用了大面积的落地玻璃,既为室内提供了充足的自然光照,也能将室内与相邻的庭院连通起来。在这里,可以为养老退休中心的居民们承办烹饪、缝纫、插花和手工等各种活动。
△一层活动室
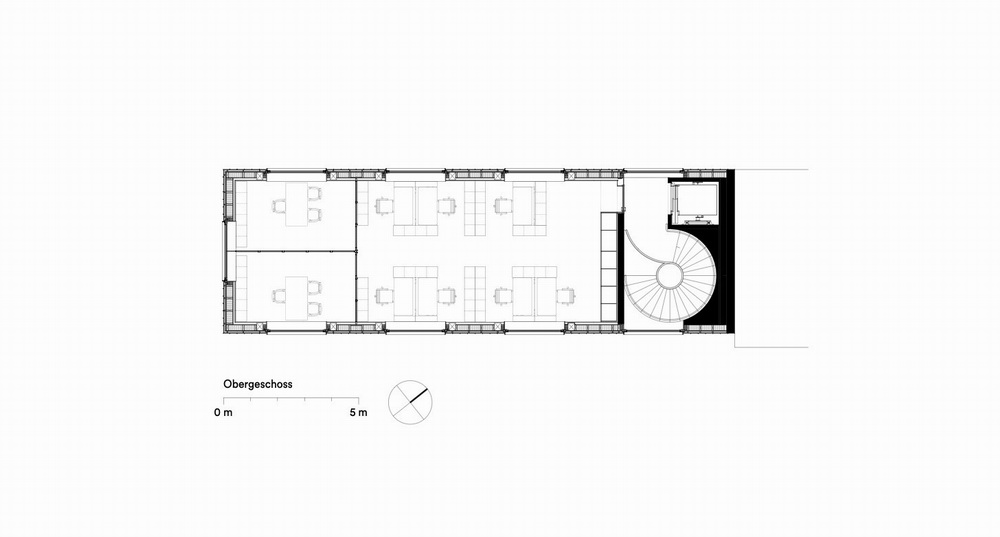
活动中心的二层用作办公空间,类似帐篷的结构让整栋建筑别具特色。二层的立面采用预制氧化铜板构成,因此呈现为宝石绿色。
圆形的大开窗为室内提供充足的照明,白色的内墙面也让整个空间显得更为敞亮。螺旋楼梯作为垂直交通空间,连接着各层。
△旋转楼梯
与此同时,楼梯间的圆形天窗也为地下层的礼堂提供了一定的自然光线。
△地下室礼堂
技术图纸
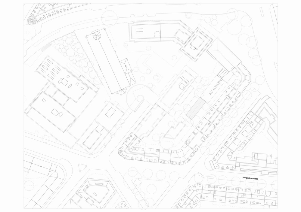
△场地平面图
△底层平面图
△二层平面图
△立面图
△立面图
△剖面图
项目信息
建筑师:Knorr & Pürckhauer Architekten
面积:500m²
项目年份:2020
摄影师:Philip Heckhausen
项目管理:Marco Caviezel
施工管理:WT Partner AG / Frits Dekker
结构工程:Ferrari Gartmann AG / Patrick Gartmann
自动化设计:Kalt + Halbeisen AG, Daniel Raidt
照明设计:Mettler Partner AG / Marc Dietrich
字体设计:m – d- buero / Ramona Heiligensetzer
艺术品:huber.huber / Reto Huber
City:苏黎世
Country:瑞士

BIM建筑网
























