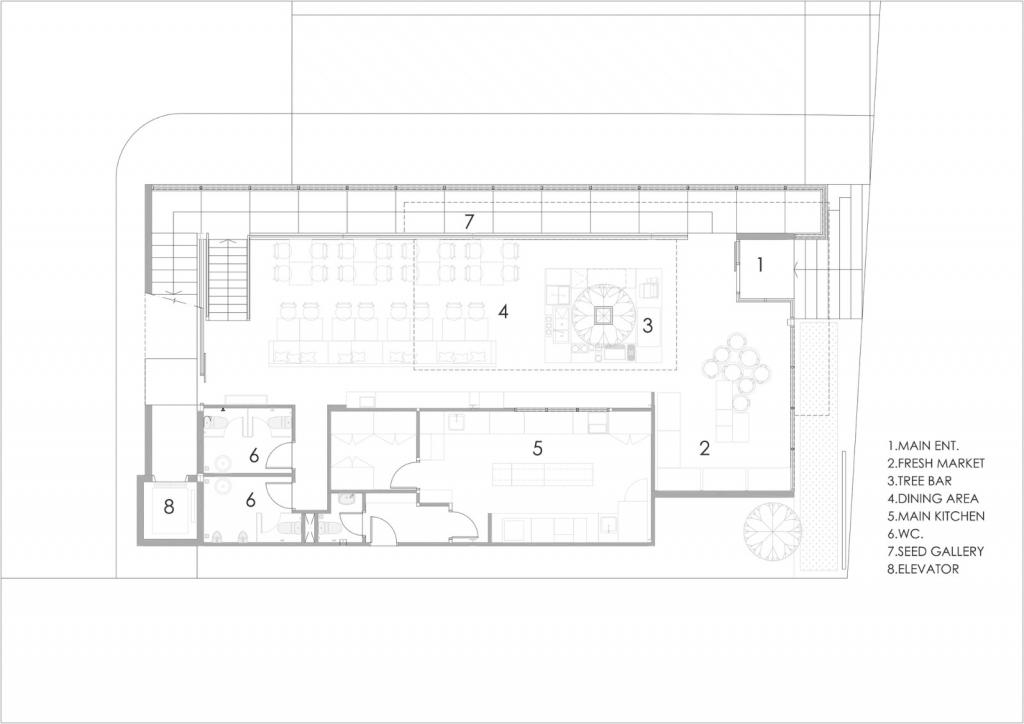
Chia Tai 农场餐厅是一家小规模的城市餐厅,面积只有310平方米,秉持着新鲜美味直接从农场到餐桌的理念。餐厅的内部空间包括新鲜产品售卖区、树荫酒吧、室内餐厅、花园餐厅、家庭花园产品售卖区、厨师餐厅和一个种子展廊。这座建筑的标志性元素之一就是沿着立面对角线上升的阶梯空间,室内流线也与之相应,作为建筑元素的一部分进行设计。同时,对角线的元素也在室外的花园空间与室内的用餐空间之间创造了联系。
对角线台阶空间作为种子展廊,不仅连接了一层和二层,还呈现了 Chia Tai 公司的历史,并通过葡萄干种子帘表达了公司的价值观。这个种子展廊的墙壁上铺满了4520块分别嵌入了250种蔬菜和水果种子的亚克力板,就像一面窗帘一样。此外,这个对角线阶梯空间的中庭不仅连接了水平方向的所有空间,还在竖直方向上打通了一层的树荫酒吧和二层的花园餐厅之间的联系。
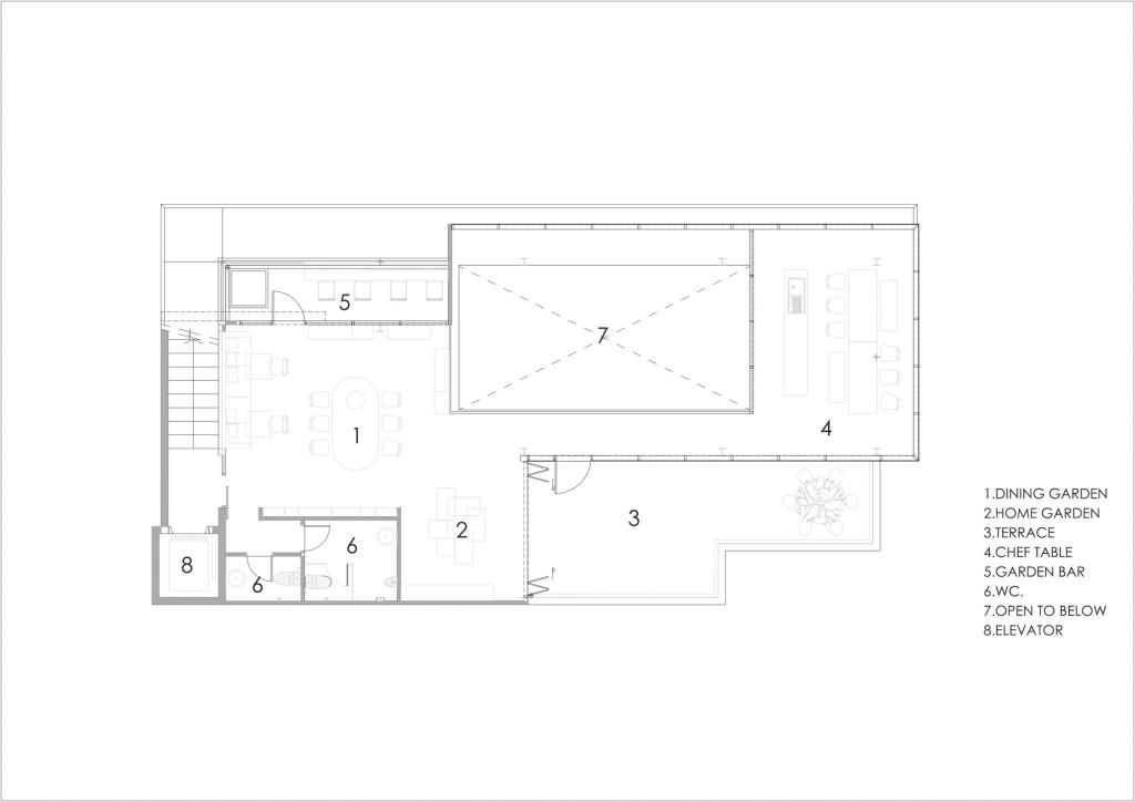
二层的家庭花园产品售卖区与花园餐厅区域相结合,给客人创造了一种花园中的就餐体验。此外,家庭花园露台的设计还将家庭花园产品售卖区、花园餐厅和厨师餐厅三者都连接了起来。厨师餐厅里有直接送来的农产品,这里不仅为著名厨师提供私人用餐,也是一个佳肴实验室,为餐厅开发出各种新的菜品。
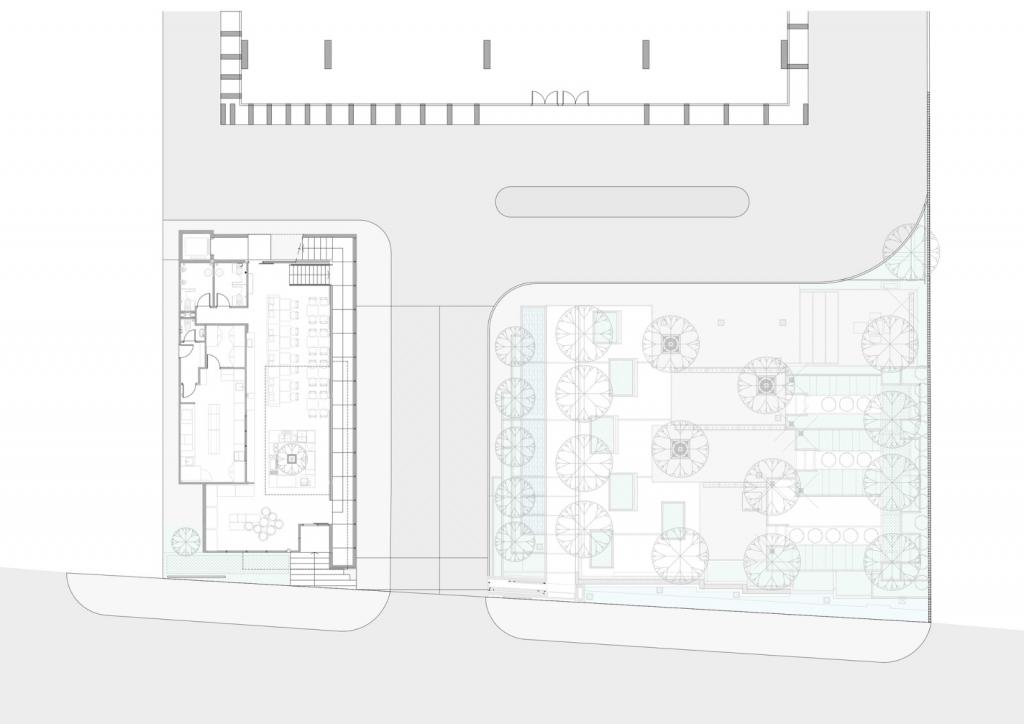
Chia Tai 农场就位于公司这座主楼的前面。因此为了保证公司整体的辨识度,农场建筑所用的材料在适当变化的同时,大体还是沿用了主楼的质感与色调。农场不仅在外立面上具有虚实相间的材料质感,在内部也同样如此。
项目图纸
△总平面图
△一层平面图
△二层平面图
△屋顶平面图
△立面图
△立面图
△立面图
△剖面图
△剖面图
△剖面图
△剖面图
△生成过程图
项目信息
建筑设计:ForX Design Studio
面积:310 m²
项目年份:2021
摄影师:Panoramic Studio
厂家:COTTO, MDC, TOA
主创建筑师:Atta Pornsumalee
视觉效果:Kunyavaree Phitpingkham
室内设计师:Worawut Eksuwanjaroen, Ladawan Aonsud
地点:泰国,Bangkok

BIM建筑网








































