城市海滩寄宿制学院容纳了66名学生,他们来自澳大利亚珀斯市一些最好的学校的资优班。新的住宿设施提供了课后教学和辅导空间,还有娱乐、餐饮、体育馆、管理和会议空间。场地坡度陡峭,靠近海滩,可以看到城市的远景,紧邻Bold公园,设计充分利用了场地条件,平衡了城市,海滩和宁静的公园的景观。
新的教学和娱乐设施包围着一棵现有的成熟榕树,它构成了公共领域和街道的一部分,并成为国家边界上舒适和熟悉的形象代表。榕树为建筑遮挡了西面强烈的阳光照射,将建筑隐藏在了主要是小型住宅的街道,并为室内体验提供了一个即时成熟的花园。
这座建筑围绕着那棵成熟的树伸展开来,形成一个阳光灿烂、朝北的庭院,在建筑和街道之间舒淇屏障,并阻挡了强烈的西南风,同时与相邻的住宅形成声学隔离。这个庭院是主要的外部娱乐空间,北面是原行政大楼。景观设计师CAPA与iph建筑事务所密切合作,结合了当地的景观,创造了流动的、雕刻的混凝土砌块墙,有些部分遮挡了现有建筑,同时提供与人互动的座位和攀爬设施。庭院东边是一片桉树林,前面是乔恩·塔里 (Jon Tarry) 的螺旋式失重蓝色雕塑。
首层平面的设计,重点放在了从接待处到学生空间的被动监视。限制区域、成熟的树木、陡峭的坡地和现有行政大楼的场地参数与此重点相结合,形成了动态的风车平面布置。这种平面布置在保证工作人员获得监视视野的同时,尊重隐私,保持与青少年学生的距离。
开放式的平面布置还允许学生们在感到安全的同时,被动地观察他人,保持替代性的社会互动。它鼓励非正式的聚集和交流,同时可以容纳正式的教学和培训安排。外部的材料参考了20世纪60年代的现代主义住宅,坚固而精致的砌块细节,过滤阳光,并为室内房间创造亲密感。入口墙上的悬挑充当了一个抽象的时间度量单位,与太阳的动态相联系。
场地位于火灾易发地区,并且是原住民土地的一部分。一位名叫Whadjuk的文化顾问受聘评估发现的所有物品的文化价值,并将这些物品进行分类和存储。通过将场地服务与国际学校隔离,扩展场地边界,并为国际学校提供新的通道,这个小而受限的场地在未来将不受潜在的邻近地块发展的影响。
项目图纸
△基地地图
△基地示意图
△一层平面图
△立面图
△立面图
△剖面图
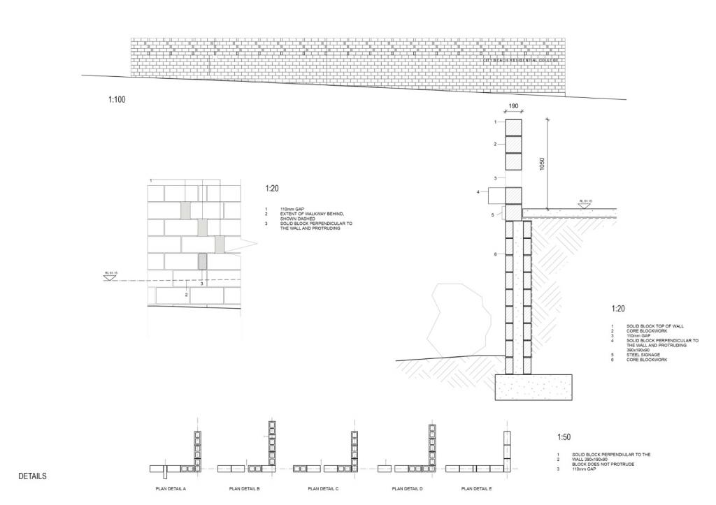
△细节大样图
△手绘图
△手绘图
△手绘图
项目信息
建筑设计:iredale pedersen hook architects
面积:1421 m²
项目年份:2019
摄影师:Peter Bennetts
设计团队:Adrian Iredale, Finn Pedersen, Martyn Hook, Mary McAree, Fred Chan, Gian Tonossi, Daniel Martin, Catherine Dupuy, Leo Leong.
艺术装置:Jon Tarry
室内设计:Iredale Pedersen Hook Architects
结构工程师:Terpkos Engineering
景观建筑师:CAPA- Carrier and Postmus Architects
地点:澳大利亚,珀斯市


BIM建筑网
































