所有的教堂建筑都是为了诠释基督教教义的世界观而建造的(德语中的weltanschauung)。淡江教堂强调了永恒性、广泛性和社区性。由于获取土地的难度,以及台湾都市空间的拥挤程度,该地区的宗教建筑常会面临由建筑的垂直体量带来的人与天堂之间的距离。
与能够通过结构、垂直空间、以及地面和屋顶间的迷幻光线创造神圣感的欧洲教堂不同,淡江教堂还需要面对满足建筑法规和面积要求的挑战,通过垂直堆积教堂的日常和神圣空间。如何在社会中建立一个充满爱与怜悯的神圣场所,是淡江教堂设计中最至关重要的关注点。
教堂建筑经常使用十字形体作为主要元素以组织空间;淡江教堂的设计概念同样以十字架为基础,但在一个更广阔的意义上。它通过教堂的庆典和人们的日常生活,将人们的生活相互交织,同时将自然带入了城市生活之中。
场地位于台湾岛的最北端,新北市的淡海是海岸线上一个多风又多雨的城市。建筑面对着这个海岸的严酷条件,并拥抱着环境中的优美景观。虽然定制化的双层厚墙可以作为一个调节气候的建筑元素,它们也可以起到让空间中的生活相互交汇的作用。
台湾的教堂在社会中扮演着与欧洲不同的角色。淡江教堂的牧师Juang曾说,这会是一个欢迎所有人的教堂,他希望将关注点放在它在社会福利方面的角色上,基于承认“人人有罪”以及“无人是完美的”的前提下,这将帮助弥补社会的缺陷。因此,淡江教堂将超过半数的设施作为社会福利中心使用,强调沟通而非等级,强调安全而非距离。建筑必须反思自身的社会责任,背负十字架,服务这片土地。
项目图纸
△基地示意图
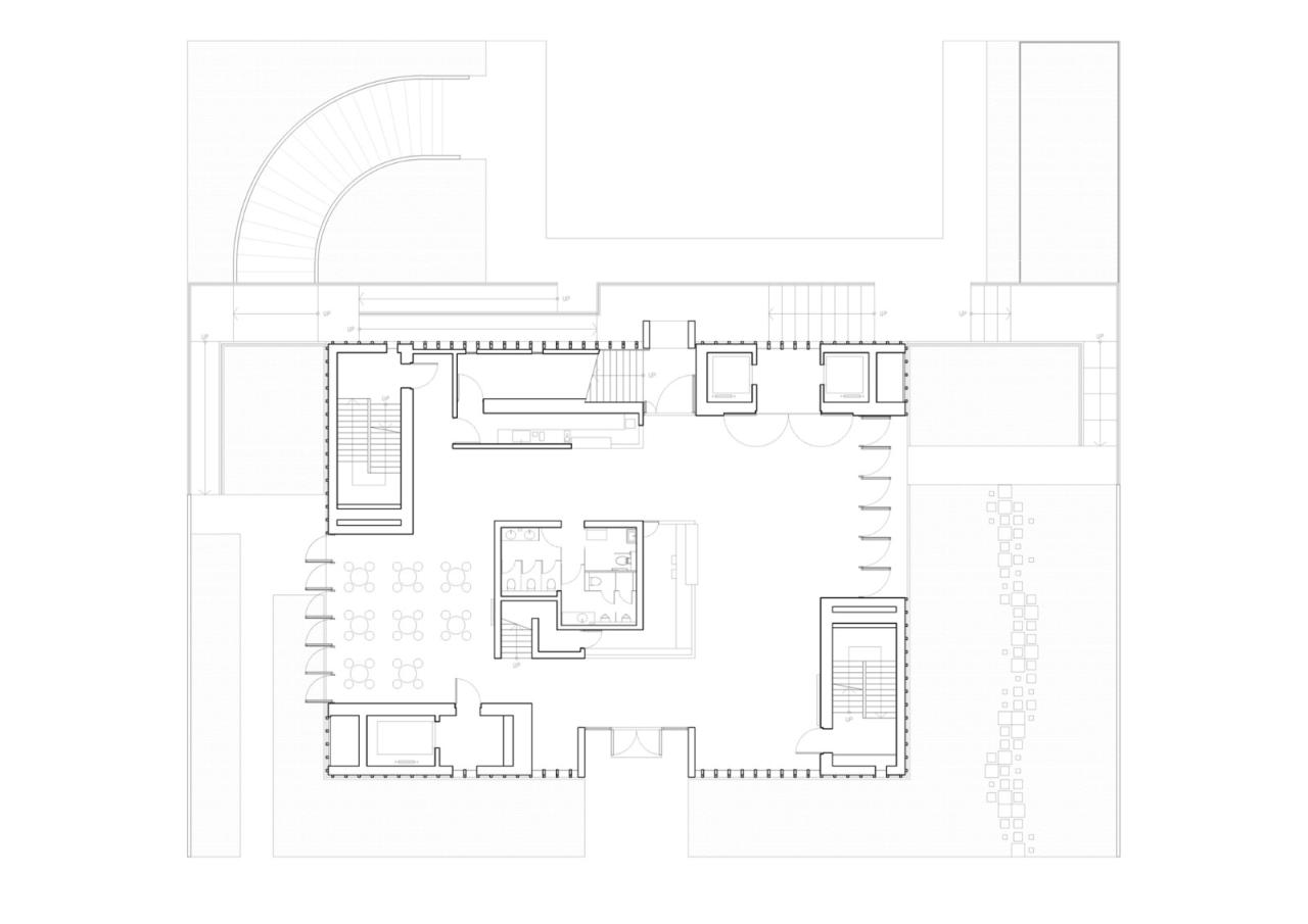
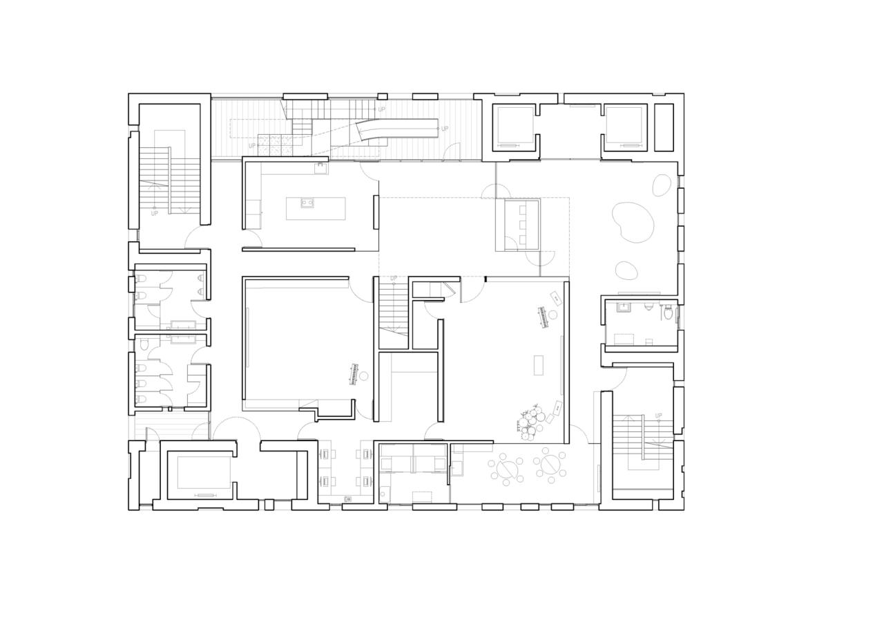
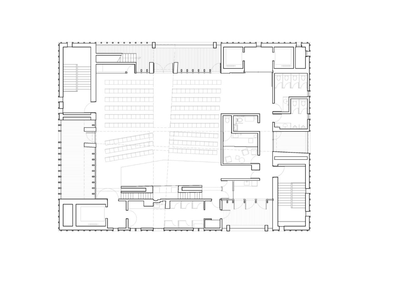
△一层平面图
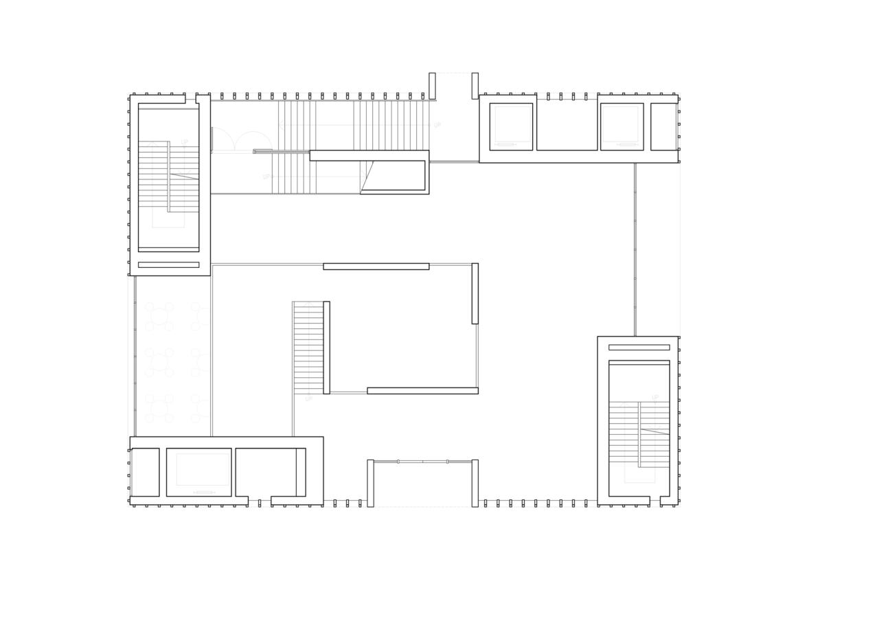
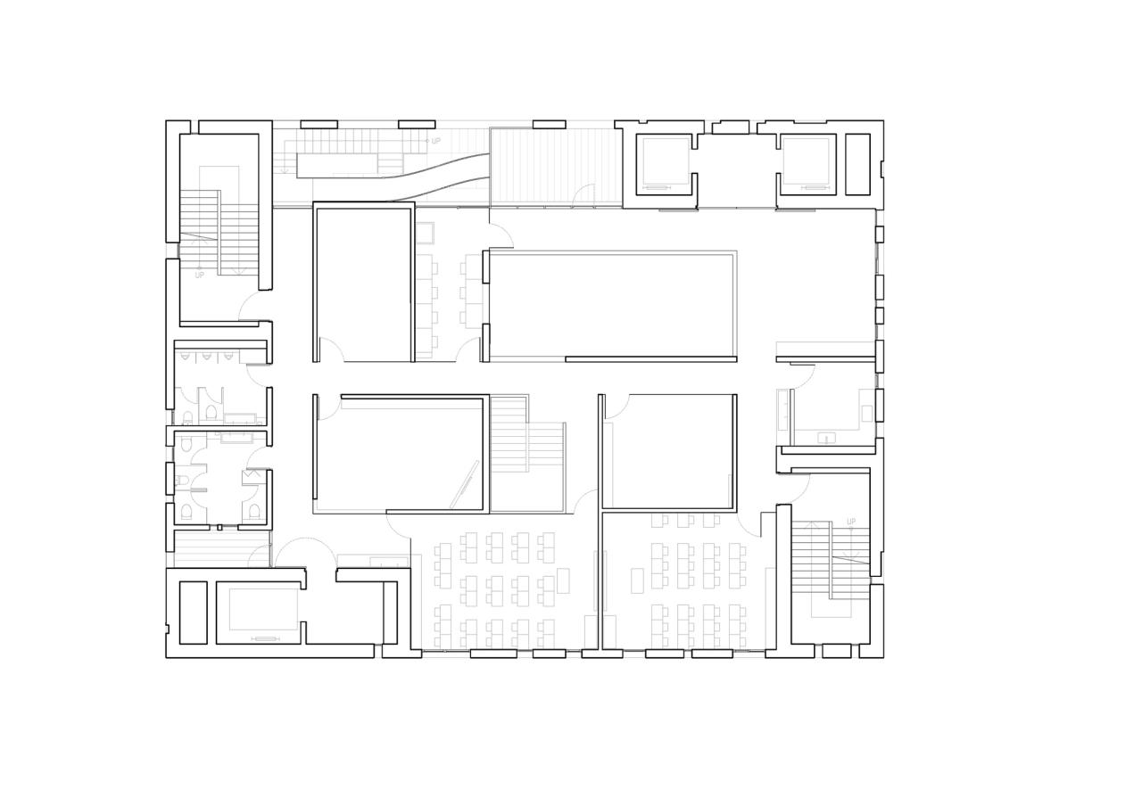
△二层平面图
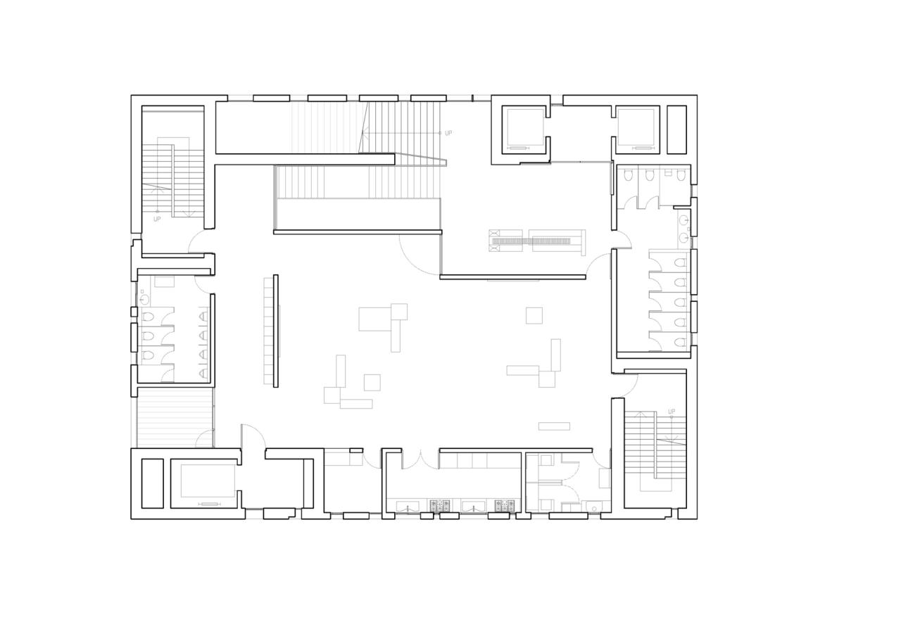
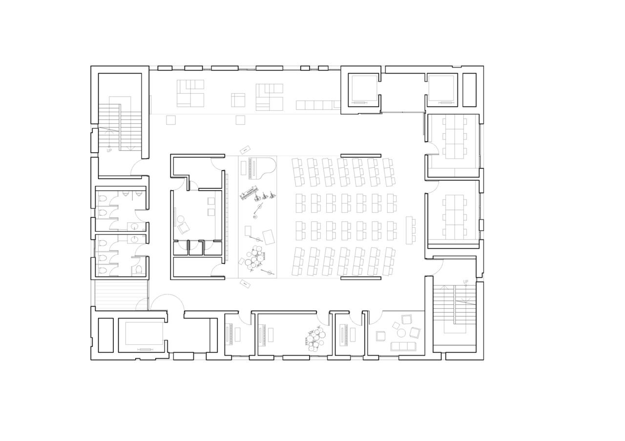
△三层平面图
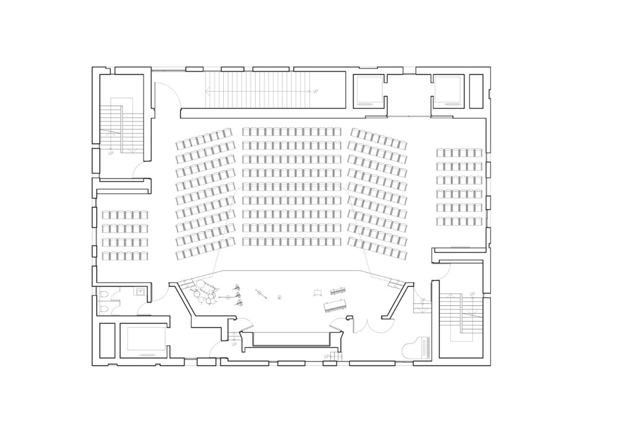
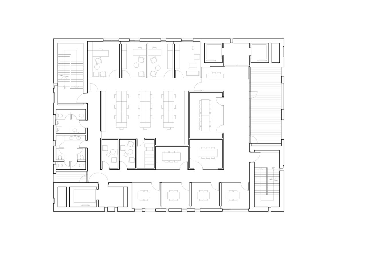
△四层平面图
△五层平面图
△六层平面图
△七层平面图
△八层平面图
△九层平面图
△十层平面图
△夹层平面图
△屋顶平面图
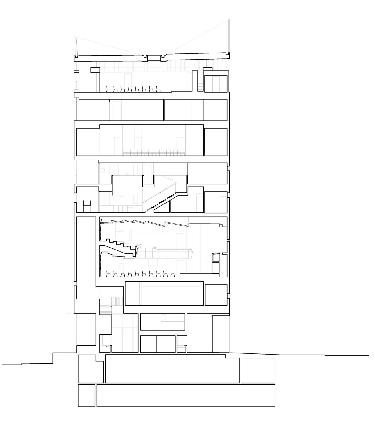
△剖面图
△剖面图
△轴测图
项目信息
建筑设计 :Behet Bondzio Lin Architekten
面积 :63406340平方米
项目年份 :2021
摄影师 :YuChen Chao Photography
主创建筑师 :Yu-Han Michael Lin

BIM建筑网

















































