项目概况
建筑所在位置是原时代集团办公及生产厂房楼,占地面积约12000㎡,总建筑面积约26000㎡,建筑整体呈“L”型,地上六层。场地东西两侧各临城市道路,南北两侧紧邻他方建筑。本次整体改造设计是在原有建筑室内外构成机理,基于“通用性”“灵活性”“舒适性”“标志性”“经济性”等五大原则进行的一次彻底的内外重塑,不仅更换了外观形态,重新梳理了内部功能,新加了趣味空间,并对整体结构进行了加固改造,使得建筑从外观造型到内部功能使用,乃至结构安全都获得了质的提升。
设计灵感来源于“大树”,其根系至树冠的有机系统对于周边环境的重新塑造,试图通过在老建筑中插入一个树形的空间有机体,以达到旧有环境的彻底焕新升级。
△改造前
立面及形体重塑
基于还原基本的建筑构成逻辑,使用玻璃幕墙外挂装饰遮阳格栅加白色石材幕墙为主要外饰面材料。
剔除破损陈旧的饰面以及杂乱的挂板等多余的装饰部分,根据内部空间逻辑合理排布形体切分,虚实分布依据绿建改造原则在梁柱外侧增加外保温。
依据建筑朝向和节能规范,调整窗墙比南向以虚为主,加大采光面。
△改造中
东西两侧是建筑主要沿街展示面,是需着力打造的两个面。这两个面以虚为主,控制采光面,增加竖向装饰遮阳格栅,营造现代简洁的立面形象。
北向以实为主,外墙采用白色石材幕墙,严格控制窗墙比,基本不设遮阳,保留窗下墙和深窗洞。
南向立面采用玻璃幕+装饰格栅与白色石材幕墙组合模式,力求在南向阳光下更富有光影变化。
建筑整个外立面设计通过装饰格栅,玻璃与石材幕墙等的组合运用,反映内部空间的变化,做到内外一致,逻辑通顺。
空间架构重塑
内部空间重新梳理成为“树状”架构,主次分明,开合有致的有机整体。
在原有建筑体量中插入一组全新的垂直交通核,形成内部空间的“主干”,首层插入三座两层通高的大堂,构成通向城市环境的“根基”,吸纳周边人群与城市活力。
全新开凿出的中庭一至六层通高,逐层缩减的金字塔型空间,为建筑最深处引入自然光,增添活力。二层以上,与大堂对应各新增三处多层空中庭院,将各方向城市景观引入建筑,创造出更富趣味的建筑空间。
中庭与空中庭院的开辟,犹如在重塑的建筑空间结出的“硕果”。
场地及室外空间重塑
沿东侧开拓路沿线一侧场地完全打开,全部设置为入口广场,与城市空间无缝连接。
重新规划停车位,南北两侧增设置立体停车位。
西北角原停车场恢复为集中绿地,作为企业花园。
首层为辅助功能层,主要包括办公大堂,商业,后勤及设备用房
三个办公大堂与核心筒紧密联系,分布在东西两侧,三组独立的大堂和垂直交通系统赋予建筑内部空间分合自如的可能。
后勤及设备用房居于首层建筑中心,利于管线布置,充分利用建筑进深。
功能分区重塑
二层至六层为均布主功能区,办公空间环绕中部的核心筒,周边点缀空中花园,做到环境与空间利用效能均好。
项目图纸
△总平面图
△一层平面图
△二层平面图
△三层平面图
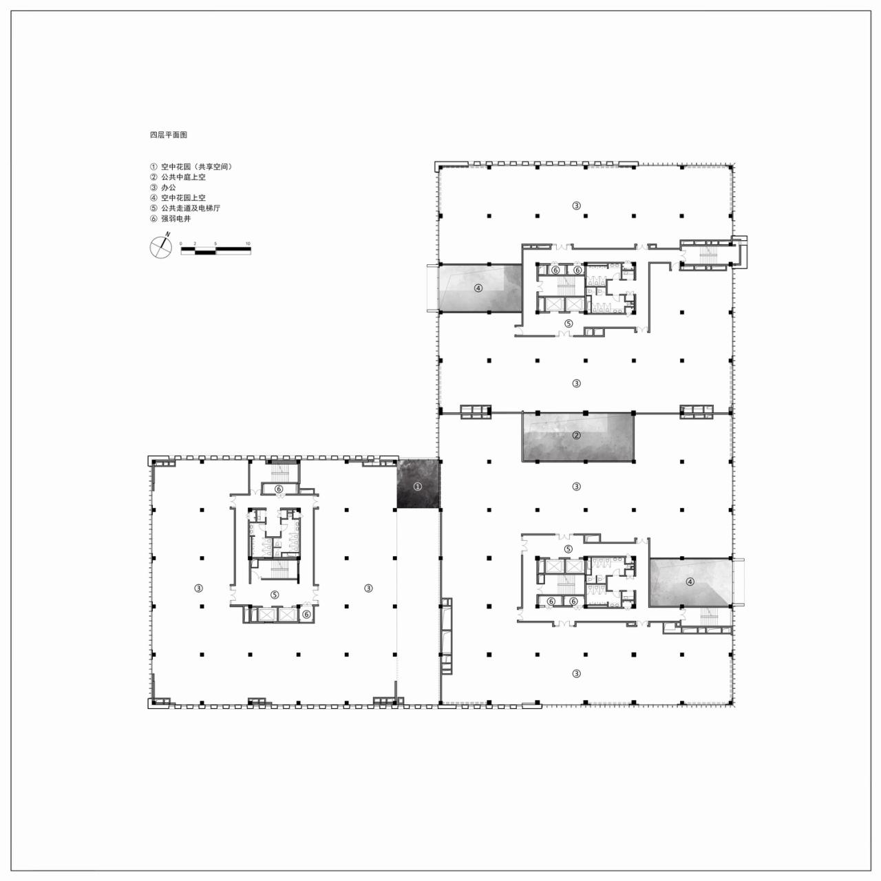
△四层平面图
△五层平面图
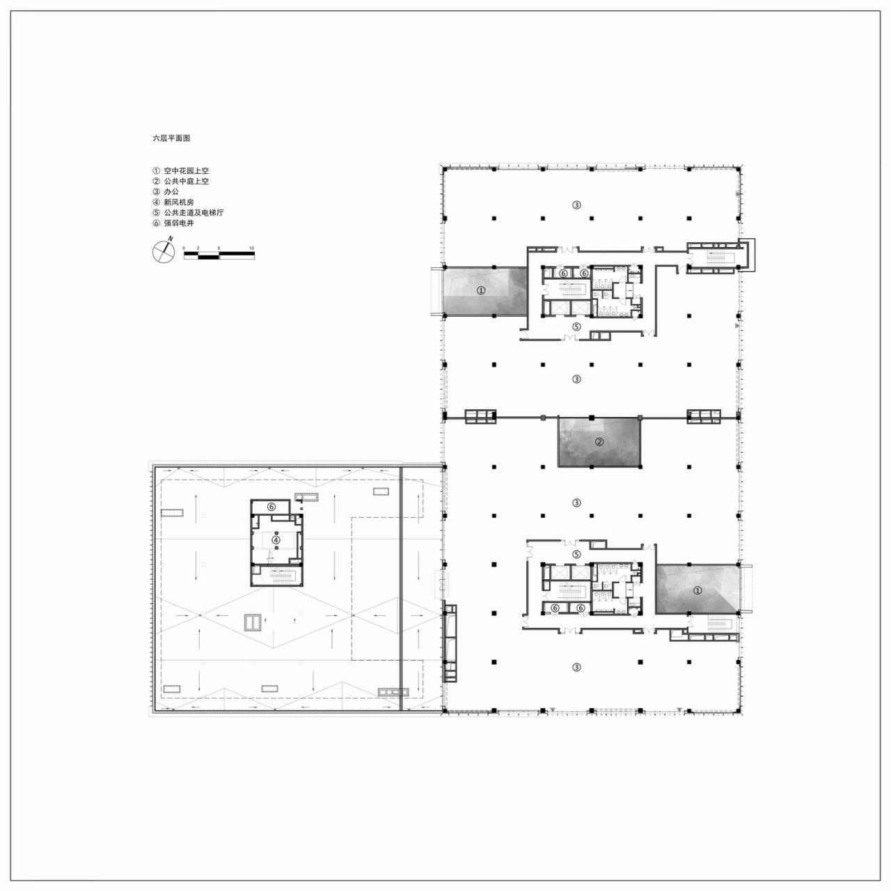
△六层平面图
△立面图
△立面图
△立面图
△立面图
△立面图
△立面图
项目信息
项目名称:弘源新时代大厦
设计方:北京璞作建筑设计有限公司
公司公众号:璞作建筑PUDO
设计年份:2018
完成年份:2020/09
主创:是震辉
设计团队:许雯婷 范争
项目地址:北京市海淀区上地西路38号
建筑面积:26000平方米
摄影版权:弘源资产
景观设计单位:麓楷(北京)国际景观设计有限公司
室内硬装设计单位:北京朋明建筑装饰工程有限公司
照明设计单位:北京三色石环境艺术设计院有限公司
施工图设计单位:中国建筑技术集团有限公司
客户:弘源资产

BIM建筑网


























