该建筑位于巴厘岛乌布(村庄)的偏远地区,周围被森林和起伏的大地环绕。要在此地打造一个与自然融为一体的建筑颇具挑战性。设计的出发点是保持现有如地形轮廓和当地树木等元素,这可以使建筑将人们与自然联系紧密。
一个拥有曲面的多边形使建筑与地形融为一体,并填补了现有树丛空间,也令巴厘岛传统工程师更更容易建造。被“Sirap”(铁木)覆盖的这些曲面多边形与周围自然融合。支撑的管柱在场地内分散排布,引申为建筑内部布局的“树木”。
避开现有树木和调整水平轮廓其结果是在人、空间与自然之间创造了独特的空间感觉和联系。屋顶和栏杆的图案勾勒出大地流线型轮廓,打造出独特动态模式和用 “Sirap”(铁木)覆盖的功能性屋顶。在这被自然环抱的偏远角落,主要楼梯联系了建筑内的不同人群。
这座没有墙壁的建筑让人的五官感受到了许多动态的自然现象,如热变化、风、湿度、雨的气味、自然光和阴影。四周绿树成荫,没有墙,没有空调,呈现出自然光和自然温度。这意味着通过减少灯具和空调使用来降低建筑能耗。
项目图纸
△一层平面图
△二层平面图
△三层平面图
△屋顶平面图
△立面图
△立面图
△立面图
△立面图
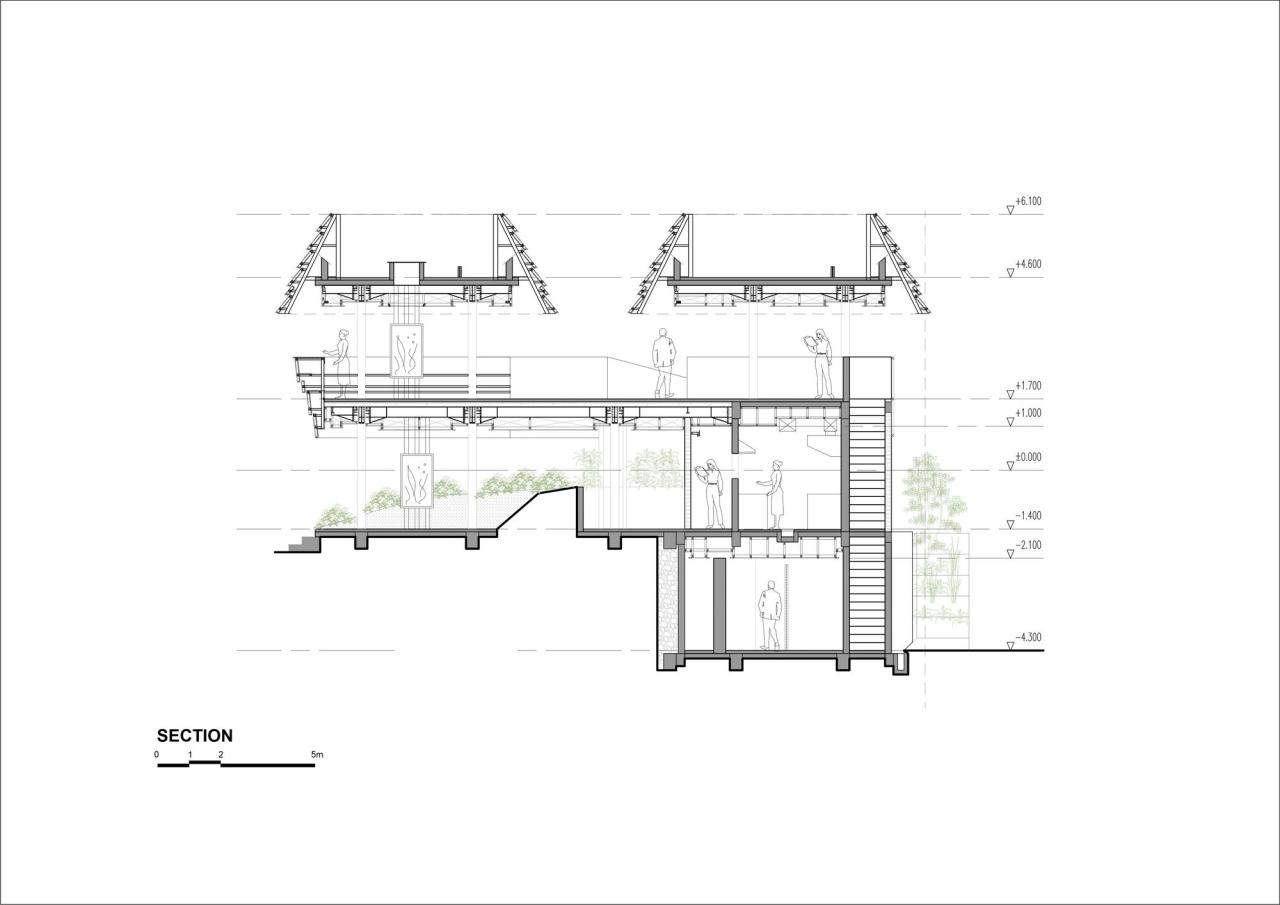
△剖面图
△剖面图
△剖面图
△剖面图
△剖面图
项目信息
建筑设计: PARISAULI ARSITEK STUDIO
面积 : 518 518平方米
项目年份 : 2021
摄影师:Mario Wibowo
厂家 : Toto, Tsudio
主创建筑师 : Ario Wirastomo, Ditta Astrini Wijayanti
设计团队 : Marselinus David
地点 : 印度尼西亚
微信公众号:xuebim
关注建筑行业BIM发展、研究建筑新技术,汇集建筑前沿信息!
← 微信扫一扫,关注我们+

BIM建筑网




































