从废墟到未来……
▲项目鸟瞰 © 是然建筑摄影
01 / 现况
项目前身由前后两栋建筑组成,一栋一层坡屋顶建筑为年久失修的仓库,一栋两层平屋顶建筑为弃用库房。周边为始建于1959年的黄泥山小区,是一个有60余年历史的黄铁矿职工生活区,至今拥有住户500多户1000余人。
2019年作为乡村振兴项目在一期改造中以乡村版未来社区为核心植入了联创公社、共享图书馆、智慧运动场、共享食堂等功能,深受社区居民喜爱,让原本闲置的老旧建筑重新焕发新生的同时也激发了社区与场地的活力。尤其共享食堂与智慧运动场给周边居民带来了诸多便利。
▲改造前建筑立面 © y.ad studio
在乡村人口流失的大背景下,这里人来人往充满活力,仍然有记忆中的乡镇繁荣景象,令人印象深刻。
▲改造前建筑室内 © y.ad studio
▲区域交通 © y.ad studio
▲项目位置 © y.ad studio
02 / 时代记忆与无痕融合
本次二期的改造则是延续一期的理念。在原有基础上完善、补充及升华之前所缺乏的内容,激活闲置场地。本组团作为二期改造中的其中一个点,经过实际勘测与商议后,我们决定保留特有的时代记忆感,叠加符合现代及未来的生活功能需求,一直是业主方及前期设计中强调的一个重要因素。
在功能的梳理上,结合现况条件将两栋建筑重新做了功能分配。原两层平屋顶建筑将其独立作为陶瓷专家工作站功能使用,原有老旧楼梯进行拆除后重新建立垂直动线,并新建前厅与其结合。而原一层坡屋顶建筑,则作为多功能体育馆功能使用。但是由于层高比较局限,我们将原有破旧木结构屋顶进行拆除,升高墙体重新修建屋顶。同时在场内增设卫生间、淋浴等使用功能。
▲设计生成 © y.ad studio
材质的选择上我们采用“延续”的设计策略,将红砖作为主基调,结合斑驳的耐候钢材质,让其在视觉上毫无违和感,充分融入原建筑。我们在“延续”的同时也叠加了玻璃砖、玻璃窗等具有现代质感的材质来调和建筑的沉闷与单调性。
形式上则采用新旧叠加的形式来平衡两栋建筑之间的整体性与协调性。通过不同的叠砖的形式让前后两栋建筑材质上相互呼应,而不同样式的耐候钢窗框在解决空调外机放置功能的同时将设计语言进行统一,从而形成一个整体。户外活动平台与廊的植入则丰富了空间的使用性,让运动、工作之余可以移步户外空间。同时也让两栋建筑更为紧密的进行串联。
▲设计分析图 © y.ad studio
▲建筑北立面全景 © 是然建筑摄影
▲建筑北立面 © 是然建筑摄影
▲项目东立面入口 © 是然建筑摄影
▲项目东立面入口 © 是然建筑摄影
▲项目东立面入口 © 是然建筑摄影
▲夜幕下的窗景 © 是然建筑摄影
▲日光下的东立面入口 © 是然建筑摄影
▲前厅室内旋转楼梯 © 是然建筑摄影
▲1F前厅玻璃砖+红砖墙 © 是然建筑摄影
▲1F长窗框景 © 是然建筑摄影
▲2F平台看向前厅 © 是然建筑摄影
▲新旧叠加后的多功能体育馆北立面 © 是然建筑摄影
▲新旧叠加后的多功能体育馆室内 © 是然建筑摄影
▲开放使用状态下的多功能体育馆 © 是然建筑摄影
▲光影下的多功能体育馆2F平台 © 是然建筑摄影
▲多功能体育馆楼梯空间 © 是然建筑摄影
03 / 回归日常使用的朴素美
▲融于日常生活中的建筑视角 © 是然建筑摄影
项目中我们时常遇到在刚完成时与交还给运营方或使用者后,空间时常会呈现出两种状况。这其中有审美的割裂也有人的使用习惯问题。我们在实践中时常会考虑一个问题,如何在日常使用中仍能维持一种真实的使用状态下的美感?而不是一种刻意的、样板式的状态。所以在空间设计之初我们将框架与原则限定后,也尽可能的控制不做过多的固定性或刻意性的设计或材质,保持空间的灵活性、多样性与可能性,留白更多可能让使用者来填补。
也有很多公共性的设计在进行设计与改造完后,场地被闲置与弃用。这无形中产生了巨大的社会资源浪费。本次项目在设计与改造之初,就运营及内容和业态的填补提高至一个重要的议题。空间完成后我们看到不仅多功能体育馆被周边居民充分利用起来了,年轻人打篮球、羽毛球等、也有居民利用场地跳广场舞……。更幸运的是这次引入的空间主人,不仅符合规划之初的设想,也拥有很好的艺术素养与审美。而在特定使用环境下即使是较为凌乱的空间,也可以呈现出一种比较真实的日常美感。在保持空间美感的同时也让建筑获得新生,重新注入了新的生机和灵魂。
▲1F瓷米工作室室内空间 © 是然建筑摄影
▲2F瓷米工作室室内空间 © 是然建筑摄影
▲2F瓷米工作室室内空间 © 是然建筑摄影
▲常态使用下的瓷米工作室空间 © 是然建筑摄影
▲常态使用下的瓷米工作室空间 © 是然建筑摄影
▲常态使用下的瓷米工作室空间 © 严旸
▲狭缝中的绿色生长空间 © 严旸
项目图纸
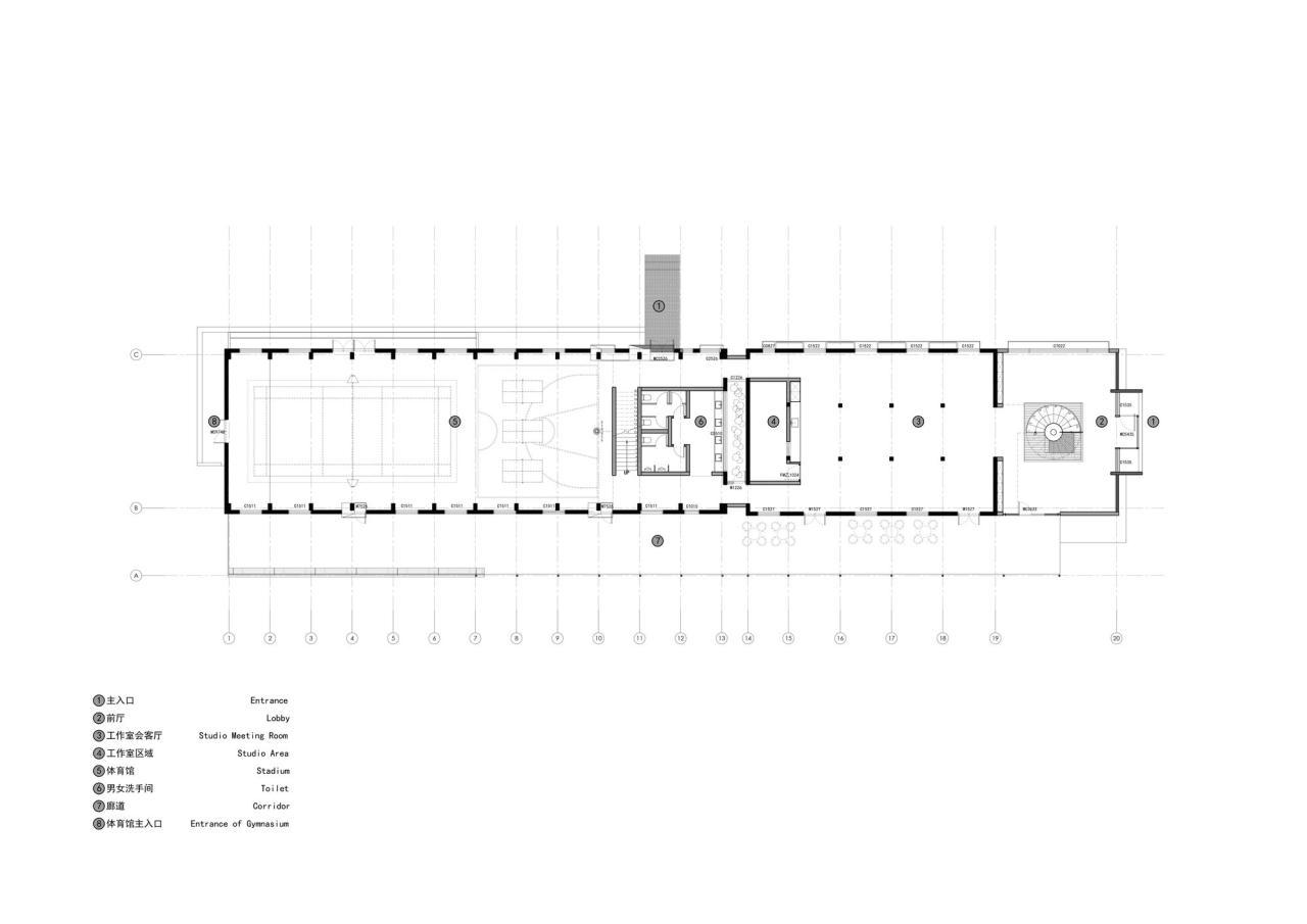
▲1F建筑平面图 © y.ad studio
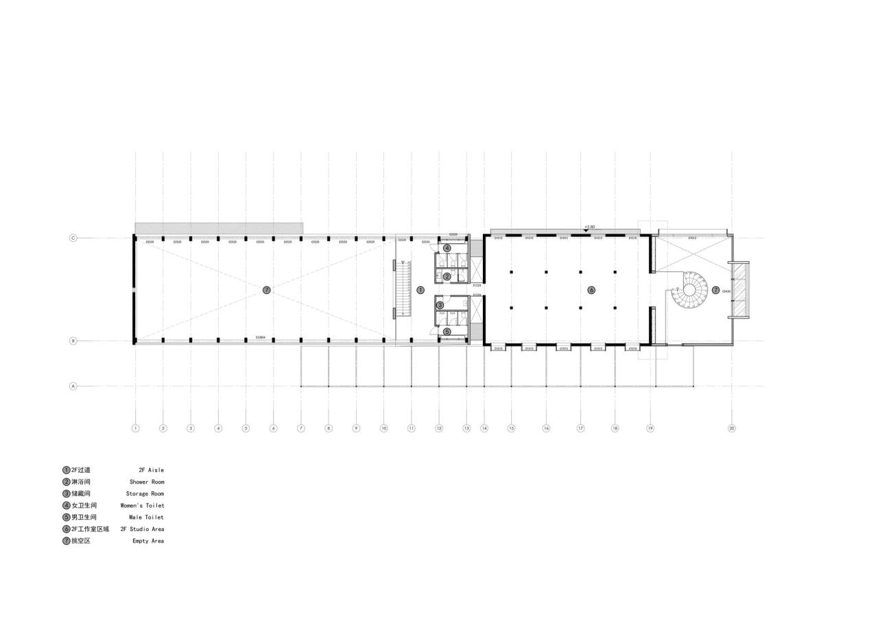
▲2F建筑平面图 © y.ad studio
▲建筑北立面图 © y.ad studio
▲建筑南立面图 © y.ad studio
▲建筑南立面图 © y.ad studio
▲建筑东西立面图 © y.ad studio
▲建筑剖立面图 © y.ad studio
▲建筑剖立面图 © y.ad studio
项目信息
项目名称:龙游溪口镇乡村未来社区多功能体育馆+陶瓷专家工作站改造
建设单位:龙游县溪口镇人民政府
委托单位:乡伴文旅集团
设计单位:y.ad studio | 上海严旸建筑设计工作室
主持建筑师:严旸
项目设计师:吴可嘉
建筑设计院:上海时代建筑设计院
室内深化设计团队:佛山佐恩室内装饰设计有限公司
建筑施工图深化设计团队:杭州中亚建筑设计有限公司
项目设计及施工管理:朱震、高丞锴、贾易东
建筑面积:1,080平方米
主要材质:红砖、玻璃砖、耐候钢、铝板、欧氏运动地板、立邦涂料、大庄户外竹钢木
设计时间:2020/03-2020/06
建造时间:2021/03-2021/12
摄影版权:是然建筑摄影(除特别标注外)

BIM建筑网









































