在开始绘制草图之前,我们与客户讨论了有关社会、文化和环境可持续性的新想法。对他们来说,该建筑的单元组合必须提供多样化的住房类型和尺寸,以满足年轻家庭,学生以及空巢老人的不同需求。此外,设计者认为可持续发展的设计原则是最重要的,并且不是以典型的 "漂绿 "方式来应用,而是作为设计过程的驱动力。
讨论过后,工作室内开始集思广益,想方设法以创新而经济的方式实现客户的愿望,同时避免典型的无趣且不可持续的多住宅设计和施工。我们重点关注用住房功效的指标以及开发商重点关注的术语,如预估值、净收入比和资本率。目标是挖掘潜在的节约成本的可能性,将节约的成本重新投入到建筑中,同时扩大建筑在这一具有挑战性的类型中可利用的资源。
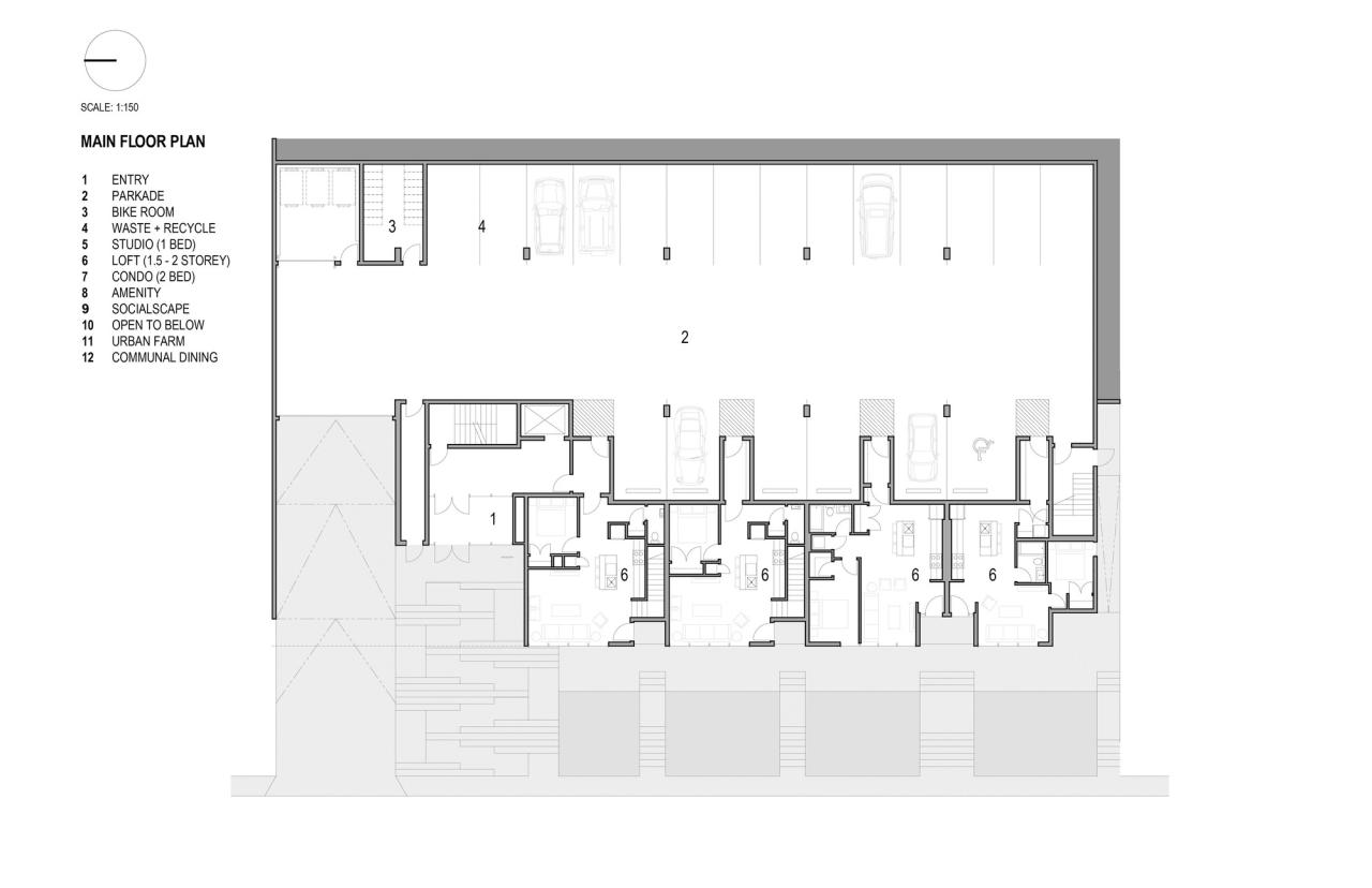
设计者利用从场地西南角到东北角近6米(20英尺)的高度差,将停车场隐藏在一排底层单元的后面,并引入斜坡,减少了挖掘的工作量,从而节省了大量的成本。此举将建筑的后部单元向上推,产生了一种地形上的遮挡效果,使单元的光线和视野更加平均,并为建筑整体的规划提供了参考。
为了满足市政条例中关于提供景观和户外休闲空间的规定,设计者将不同的屋顶层与倾斜的、无障碍的社会景观连接在一起,这不仅满足了法律规定的要求,而且重新激活了住房的休闲空间。景观的74%(242.8平方米‘0.06英亩’)是一个城市农场,由租户和当地的一个非营利性城市农业倡议机构(YYC Growers)管理。
有趣的事实1:农场超过52.67立方米(1860立方英尺)的土壤,连同植物一起,每年可以吸收大约10辆汽车的碳排放。这景观为日常生活提供了一个整体的、可持续的社会背景,无论是耕作、遛狗、公共晚餐、与邻居的偶然会面,还是呼吸新鲜空气,都符合可持续发展的绿色标准。有趣的事实2:租户还可以订阅每周的收获箱,由YYC种植者提供,用其他本地可持续城市农场的新鲜水果和蔬菜来补充GROW的产品。
倾斜的建筑规划让不同的住房类型成为可能,包括一系列单卧室和双卧室的公寓,1.5层的阁楼和2层的排屋。这种包容性的设计使居民的人口结构更加多样化;有孩子的家庭和学生做邻居,旁边住着一对老年夫妇。在我们看来,这种多样性对于发展 "场所 "和打造社区至关重要。
项目图纸
△模型图
△模型图
△模型图
△模型图
△总平面图
△一层平面图
△二层平面图
△三层平面图
△四层平面图
△屋顶平面图
△剖面图
△分析图
△分析图
△分析图
△分析图
项目信息
建筑设计:Modern Office of Design and Architecture
面积:19400ft²
项目年份:2021
摄影师:Ema Peter
主创建筑师:Ben Klumper and Dustin Couzens
地点:加拿大,Calgary

BIM建筑网









































