在悉尼高密度的城市区,大多数小孩都居住在公寓中。而Ultimo公立小学把教室搬到了花园和室外露台中,增强了孩子们与自然的联系。
这所新学校采用了前沿的教学方法。学校包括了灵活的学习空间,也重视室内室外教学的联系。多功能的空间激励学生们和老师们去探索多种多样的教学机会和学习机会。
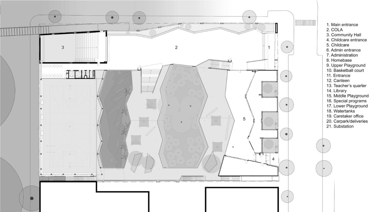
受益于场地中的陡坡地形,学校被设计为一层一层的梯台结构。为了发挥最大的空间使用率,所有的露台和屋顶都变为了花园或者游乐场。这使所有的教学空间都能直接与室外空间相连接。
每一个游乐场都根据其不同的用途设计了独特的主题。该场地同时允许周边社区的居民使用。即使是在下课之后,这个新学校也能成为一个充满活力的社区空间。
项目图纸
△总平面图
△一层平面图
△二层平面图
△三层平面图
△四层平面图
△五层平面图
△立面图
△剖面图
△模型图
项目信息
建筑设计: DesignInc, Lacoste + Stevenson Architects, bmc2 architectes
面积 : 11000 m²
项目年份 : 2021
摄影师 :Brett Boardman
厂家 : Austral Precast, Autex, Colorbond, Dulux, Laminate, Reckli, Tarkett, Troldtekt, Vanceva
建筑设计 : Jacqueline Ong, Thierry Lacoste, Arnaud Bical
委托方 : School Infrastructure NSW
微信公众号:xuebim
关注建筑行业BIM发展、研究建筑新技术,汇集建筑前沿信息!
← 微信扫一扫,关注我们+

BIM建筑网






























