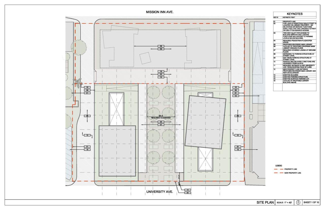
新图书馆坐落在市属的2.5英亩土地上,位于Mission Inn大道的Market街以东,距离Mission Inn和城市的文化和商业区都在步行范围内。两层楼的图书馆体量坐落在36英尺高的巨型混凝土桥墩上,在下方创造了一个8900平方英尺的遮阳户外公共广场,并作为二期步道的入口。新建的这个带顶的广场将举办夜间演出、每周农贸市场、书展和其他社区活动。新的城市档案馆、社区活动室和图书馆之友书店位于广场周边的街道上。
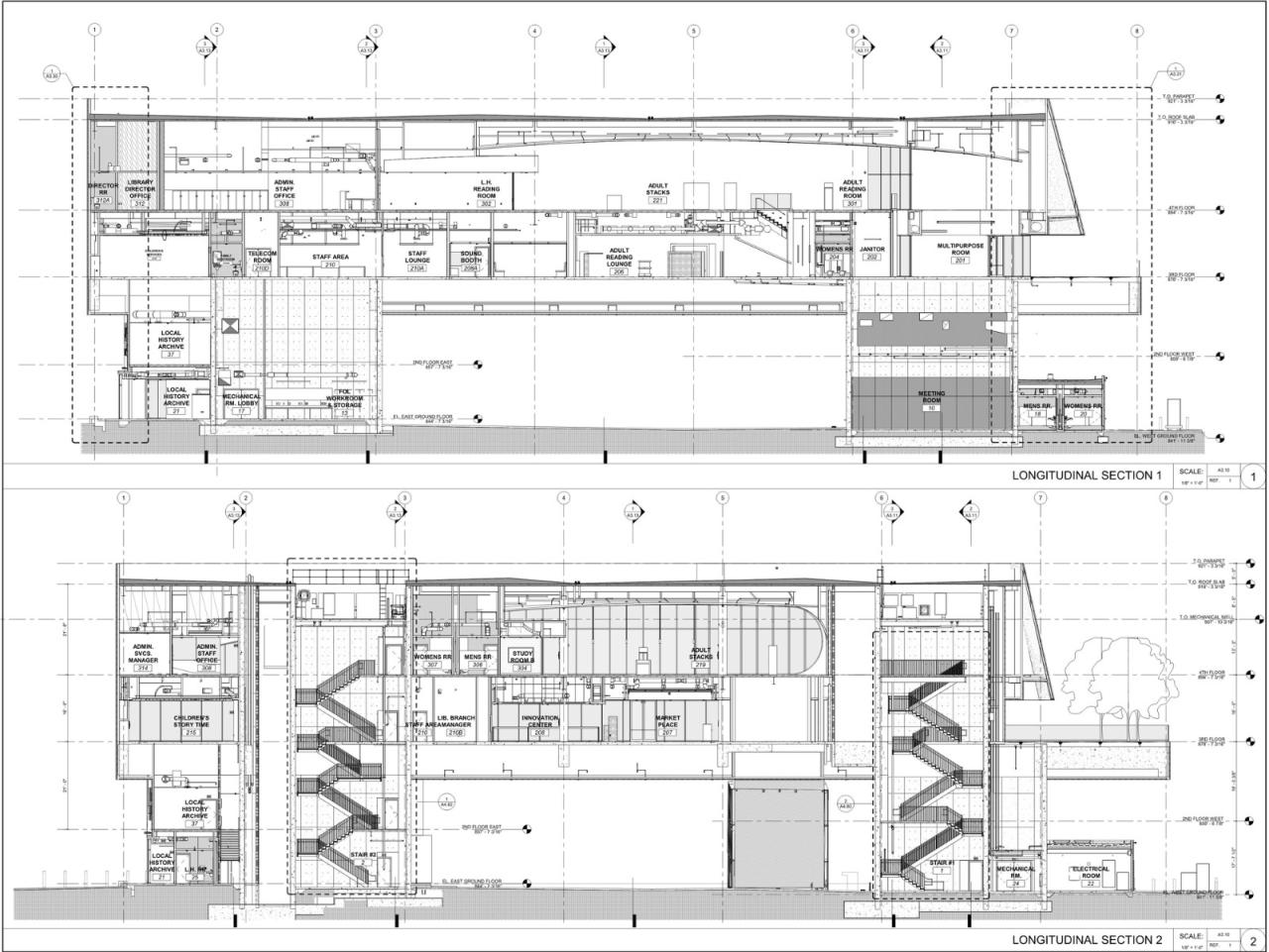
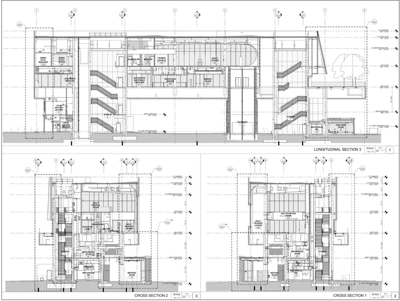
在这个抬高的图书馆里,可以看到北面的圣盖博尔和圣贝纳迪诺山脉。若非有幸生活或工作在高层建筑中,大多数居民是没有这种视野的。三楼35英尺高的体量从头到尾都被覆盖在一个拱顶中,与巨大的南北向窗户大致平行。
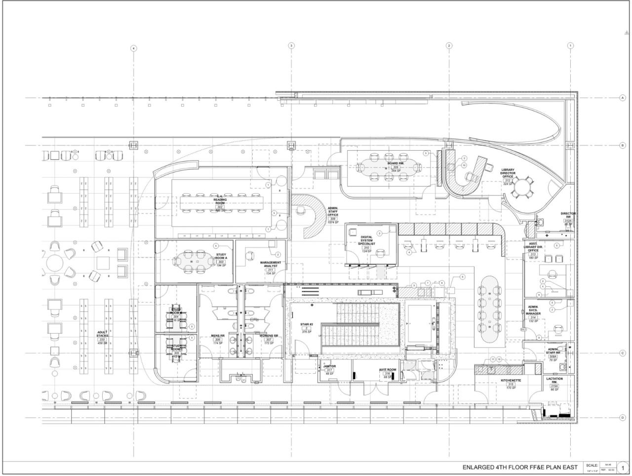
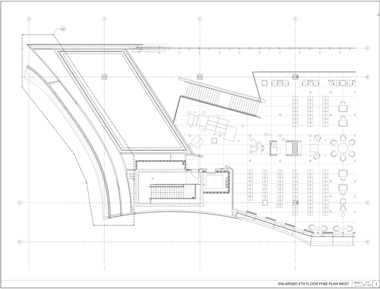
成人阅览室和收藏区位于四楼,南北视野开阔,在视觉上与三楼的图书馆入口楼层相通。这一层包括地方历史阅览室(其中有来自Riverside市1903年卡内基图书馆的家具),几个玻璃封闭的小组学习室,以及Riverside市整个图书馆系统的行政办公室。
儿童图书馆通过书籍和功能的布置,成为孩子们通往广阔世界的入口,在这里孩子们被鼓励发挥创造力和好奇心。它使用高饱和度的颜色装饰天花板和墙壁表面,以及照明的配置,都让人联想到游乐场的摩天轮或旋转木马的灯光。故事时间、唱歌、游戏、艺术和手工,都在这个灯光的天幕下进行。
混凝土桥墩包围着建筑设备,支撑着 34 米的跨度,形成827 平方米的遮阳广场。Riverside 市的夏季温度经常达到 40 度以上。白天,这个广场被用于农贸市场、餐车服务、书展和其他社区活动。到了晚上,它是一个户外剧院和活动空间,并作为活动开始前/结束后的空间,服务于相邻的社区会议室。
图书馆的入口是通过靠近广场中心的玻璃和镜面的电梯进入。该广场将成为绿荫大道的最终北侧入口,随着图书馆广场开发的完成,绿荫大道将连接Mission Inn大道和大学大道,而图书馆广场已被规划为街区大小的地产。
项目图纸
△总平面图
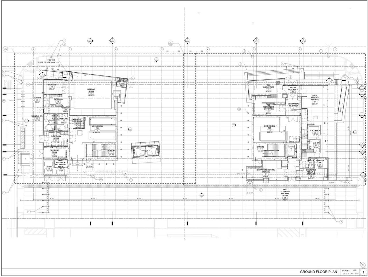
△一层平面图
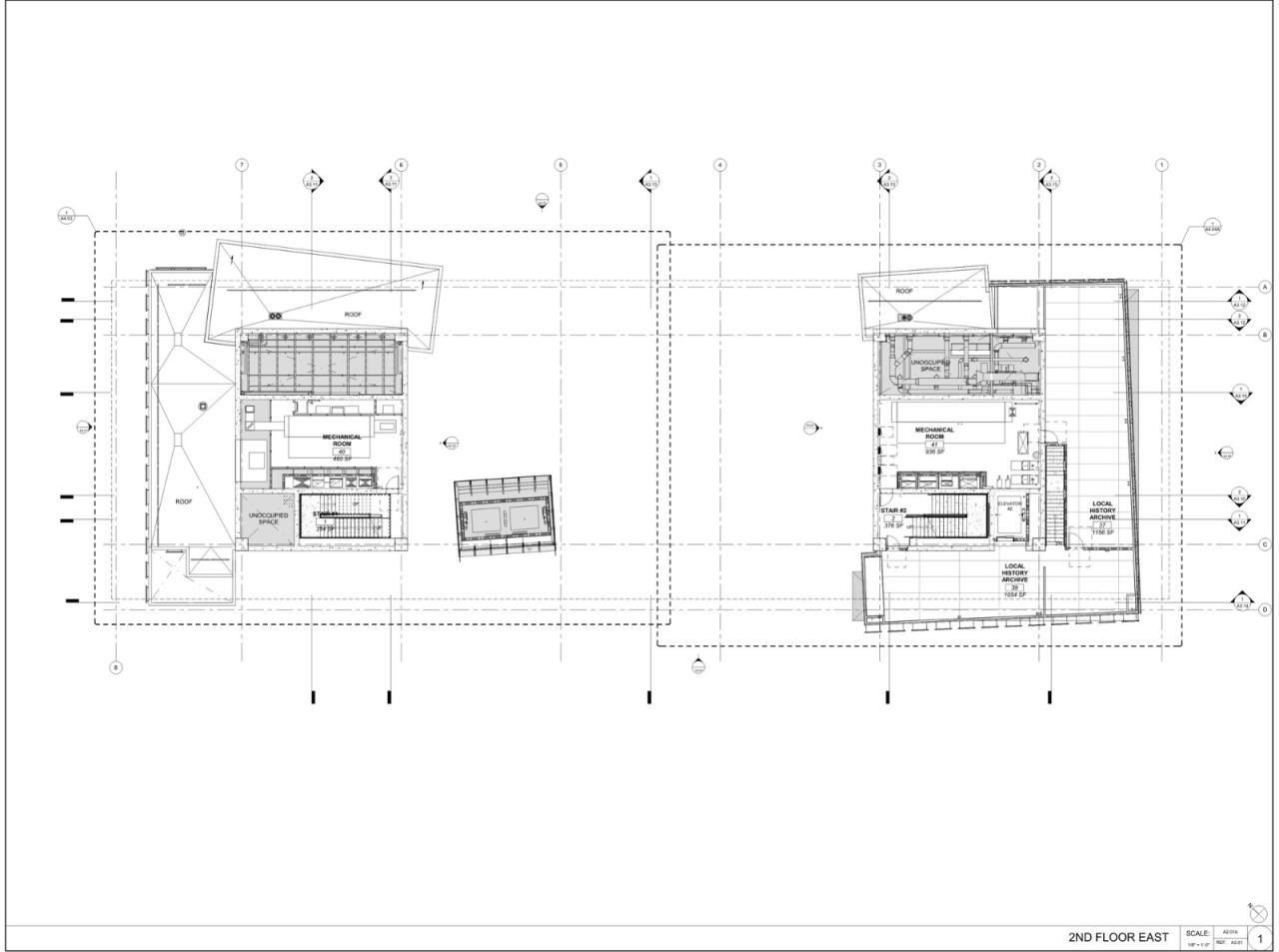
△二层平面图
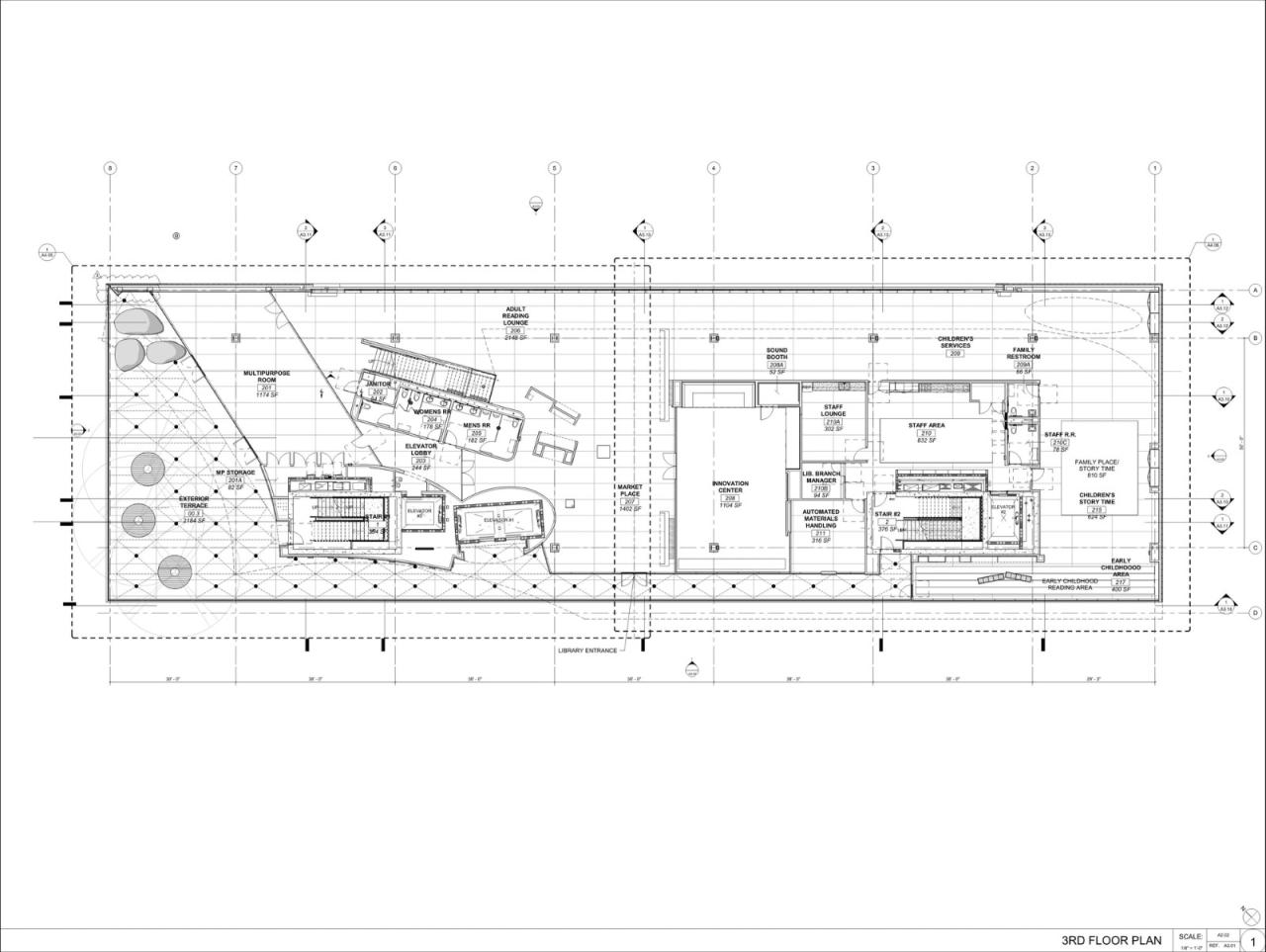
△三层平面图
△四层平面图
△四层局部平面图
△四层局部平面图
△立面图
△立面图
△剖面图
△剖面图
△剖面图
△剖面图
△剖面图
△示意图
△示意图
项目信息
建筑设计: Johnson Favaro
面积 : 40000 m²
项目年份 : 2021
摄影师 :Eric Laignel
厂家 : Bega, Kawneer, Lumenpulse, Sto Crop
项目建筑师和主创 : Steve Johnson, Jim Favaro
副主创 : Brian Davis
设计助理 : Kevin Geraghty
地点 : 美国,Riverside

BIM建筑网




































