Che' Che' 住宅为居住者提供了凉爽的环境,作为对于梅里达气候的回应。Che' Che' 在玛雅语中是新鲜的意思,“让每个空间都充满新鲜感”就是这座住宅的设计理念。
“新鲜感”作为设计理念是通过房屋的布局来体现的——每个内部空间都拥有自己的天井和花园,享受属于自己的空气。
我们选用格子墙作为住宅的外立面,以捕捉来自北面的风,使得它们在天井里旋转,产生气流进入房子。在室外空间中,我们让水参与空间的形成,这使得湿润的空气可以进入各个房间。
在设计的过程中,我们尽量选用当地的材料,例如石头、沙子和木材。我们希望建立一座模块化的建筑,并且探索景观和建筑元素的阴影构成。天井扩展了空间,扩大了室内空间的视觉感受,并且避免了热量的集中。
我们选用现场发现的天然材料,采取交叉通风来获得舒适的室内温度,控制北面的光线来照亮房子内部,并采用水元素来让整个房子焕然一新。这是一座为居住而设计的住宅,居住在其中可以感受到风和影相互交织所带来的新鲜感。
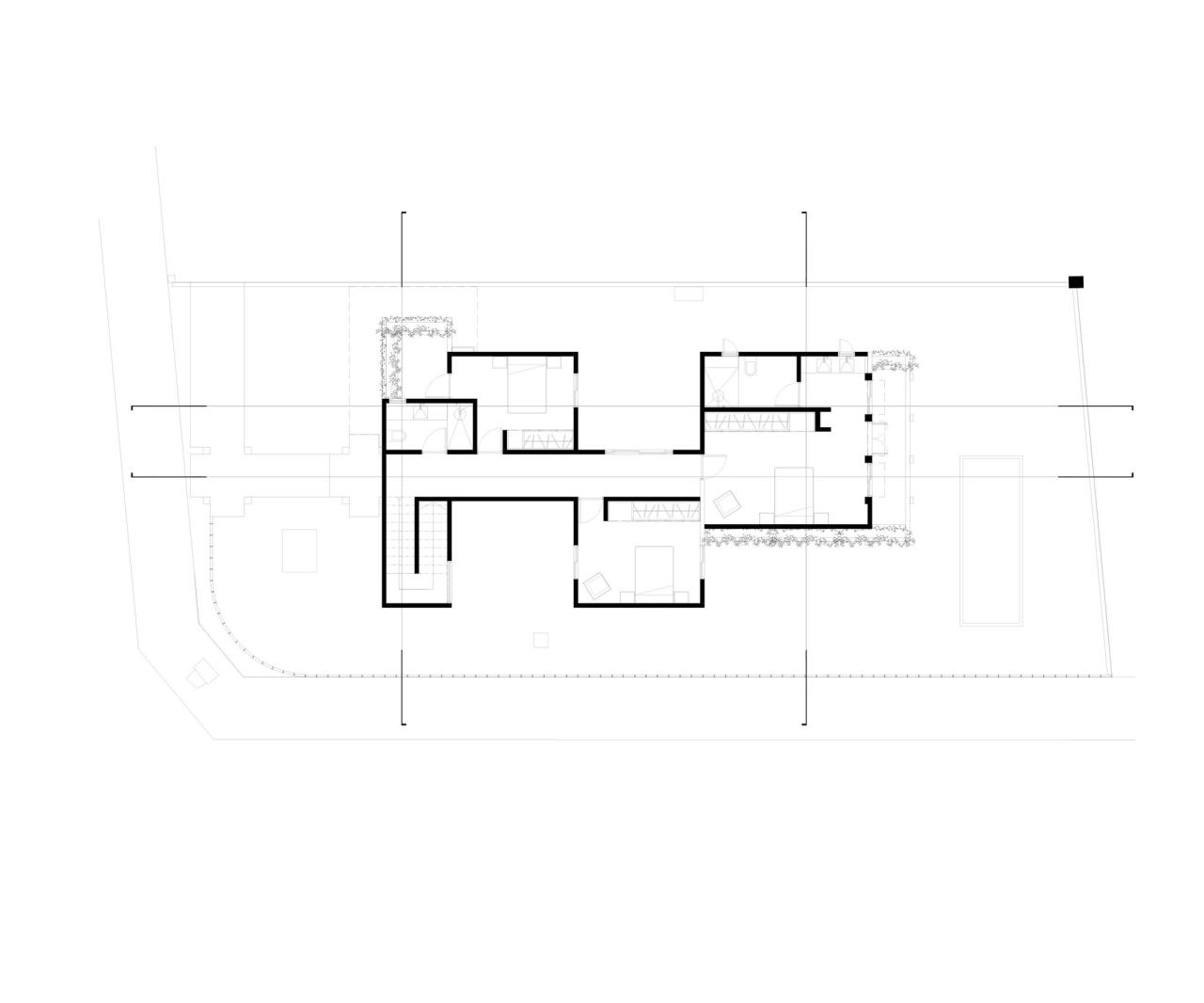
住宅的一楼是公共区域——车辆和行人通道、厕所、厨房、洗衣房、餐厅、客厅、天井和房子后面的泳池。住宅的二楼是私人区域,这里有三间卧室——第一间有一个壁橱和一个私人阳台,第二间有一个可以作为书房的壁橱,第三间主卧室有一个私人浴室、壁橱和可以俯瞰游泳池的阳台。
项目图纸
△一层平面图
△二层平面图
△立面图
△立面图
△立面图
△剖面示意图
△剖面图
△剖面图
△剖面图
项目信息
建筑设计:Javier Puga Estudio
项目年份:2021
摄影师:Zaickz Moz
主创建筑师:Benjamin Lyons, Anisa Brook, Eduardo Hermann, Estefanía Montalvo, Luis López, Julia Villagómez, Javier Puga
地点:墨西哥,Mérida

BIM建筑网



































