新加坡国际学校曼谷吞武里二期项目是为初中学生办学所扩建的空间,项目基址位于原有的一期基地内。在这一全新阶段的平面布局上,建筑师将两座建筑在后边缘对齐,打造了共享的大型绿色活动空间。学校主体功能区包括教室、礼堂、体育馆、图书馆、行政办公室、教职员工室和公共区域。
建筑师的主要设计理念是营造一个学生可以从构筑物习得知识,并在内部设置的各种环境中自由活动和游玩的空间环境。建筑外观为直线形,每间教室前都有8米宽的双向走廊,可被同时用作公共空间和流线通勤。为避免建筑内部缺乏自然光照与通风,建筑师还将方案分成两个部分,并配以额外的大厅,继而让自然风和阳光都能进入内部。
基于城市规划的要求限定,建筑物需要在高度有限的情况下分成两个部分,但建筑师却打算将建筑作为景观的单一背景,继而通过水平立面将各部分相互串联。A 栋建筑靠近入口,其一侧的边缘是礼堂空间。设计方案将A栋建筑带有顶盖走道的侧翼展开,以迎接学生和到来的所有用户,走道的设计使得建筑匹配和联接;B 栋建筑的另一端则坐落着体育馆。
在建筑物的前侧,A 楼和 B 楼的主厅也被专门设计成依据每日天气进行通风控制的大厅。在正常情况下,该大厅可于自然通风的模式下进行使用,即打开建筑物前后两侧的窗户,让空气自然流通;而在 PM2.5 浓度较高时,大厅顶部的轴流风机便会与过滤器一起工作,将新鲜空气带入,使大厅空间成为正压区域,而立面底部的格栅则被用于释放空气。建筑师希望将这个空间打造成过渡空间,社交活动可在此发生、自然光也能进入内部且环境热量较低。该大厅采用了水平鳍片和渐变的不透明墙,继而使内部的人群可以清楚地看到外部的景色,同时即便在恶劣的天气条件下也能尽情玩耍。
侧翼大厅则设有看台,并可与下方的图书馆一起用作剧院空间。绿色屋顶的支架可被用作将绿色区域从地面到顶部串联在一起的楼梯台阶。项目的椭圆形图案将景观和建筑联系在一起,作为具有各种地形的活动区域,继而鼓励不同类型的行为活动,例如建筑前侧的下沉庭院就能从两侧被用作圆形剧场。
这所学校就像一个实验设计,创造了一个能在所有情况下为所有学生使用的环境空间,且每个区域都能物尽其用,从而激发每个人的学习能力。
项目信息
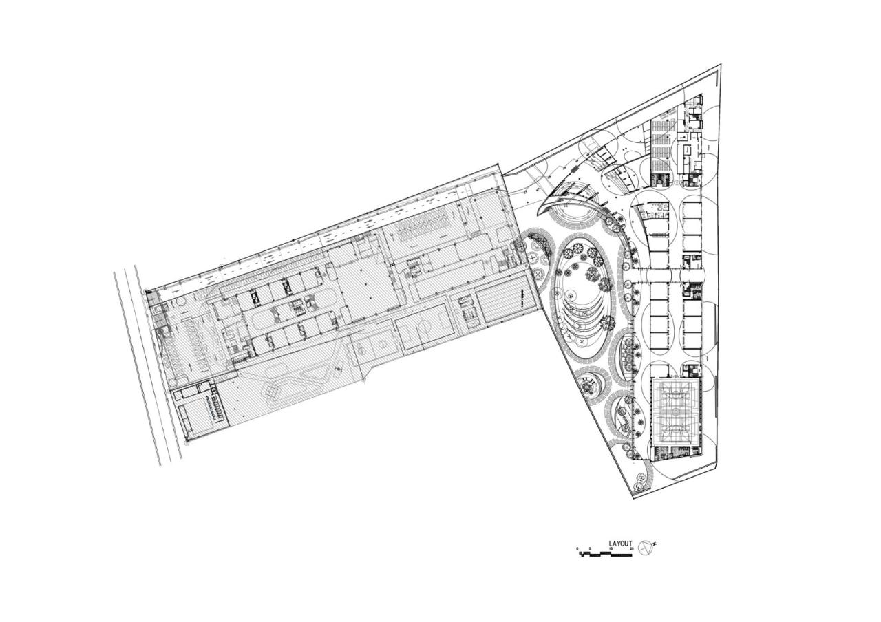
△布局示意图
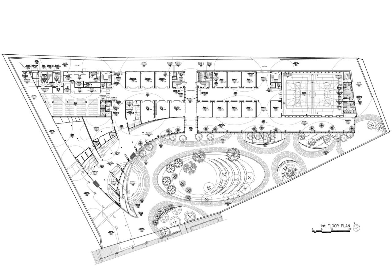
△一层平面图
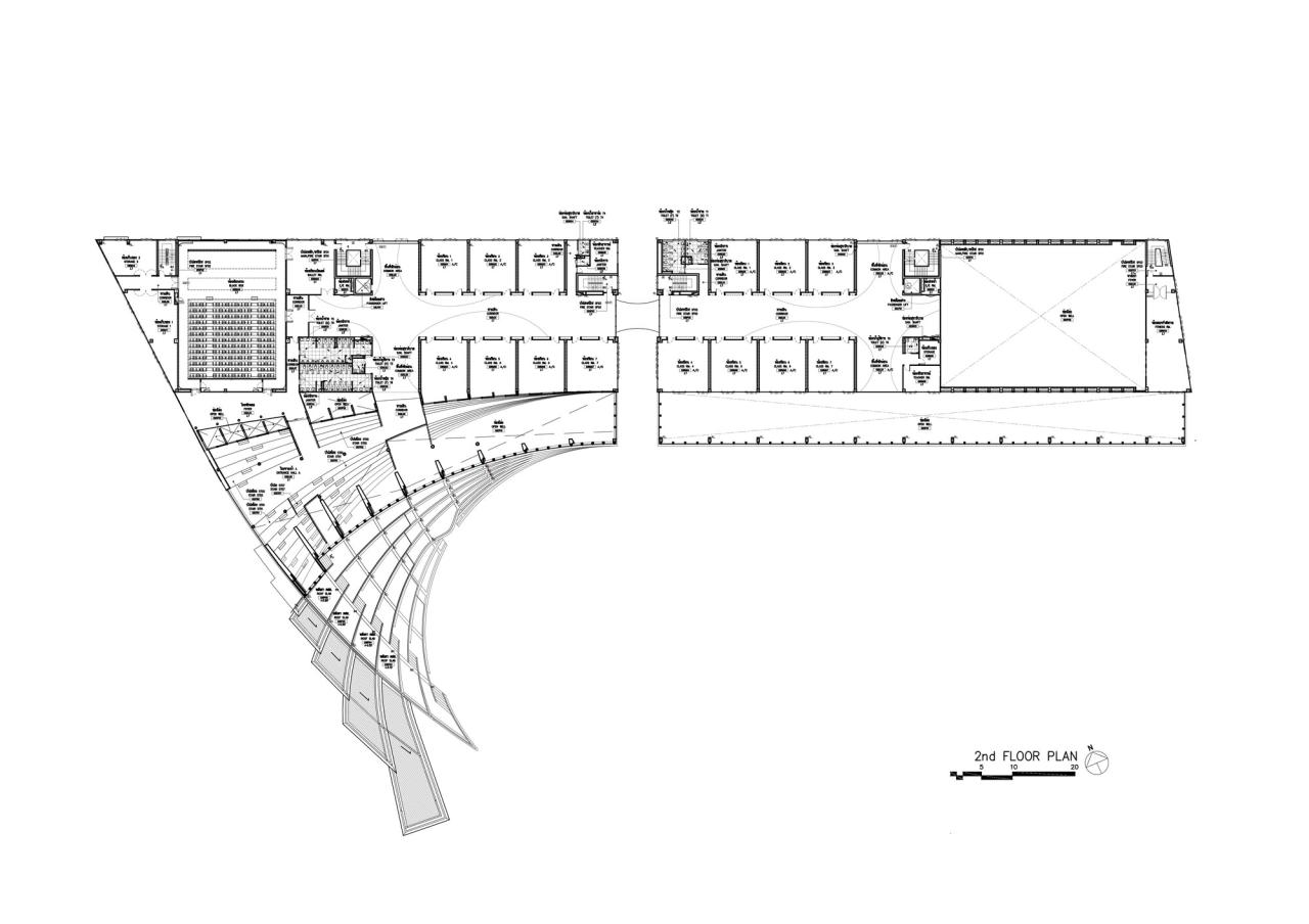
△二层平面图
△三层平面图
△屋顶平面图
△剖透视
△剖面图
△剖面图
△剖面图
△剖面图
△剖面图
△剖面图
△立面图
△立面图
△立面图
△立面图
△立面图
△立面图
△立面图
△立面图
△分析图
△分析图
△分析图
项目信息
建筑师: Plan Architect
面积 : 13200 13200.0平方米
项目年份 : 2022
摄影师 :DOF Sky|Ground
厂家 : Nippon Paint, Thaisoung, WILLY
主创设计师 : Wara Jithpratuck
建筑设计团队 : Jittinun Jithpratugs, Chanin Paiboonsak, Wattana Narksuk, Sira Anugoolprayote
景观设计团队 : Premprajak Teyarajkul, Sitthinon Chanchaiworawit, Ratcha Kantawong
室内设计团队 : Pattanapol Kamolhansa, Pitchanun Chaowsomboon, Ruksit Jitburanachart
地点 : 泰国

BIM建筑网





















































