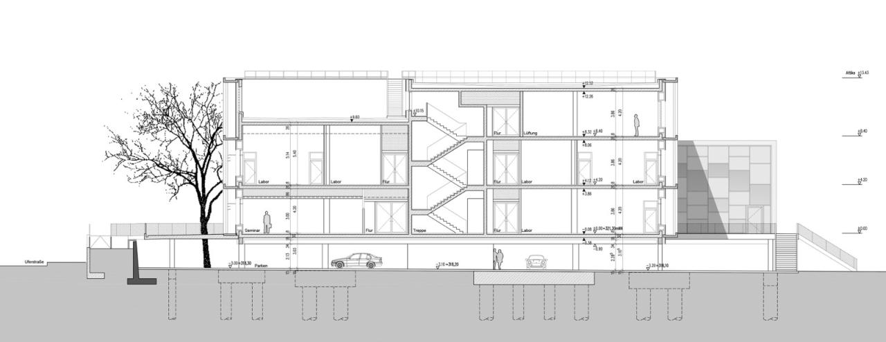
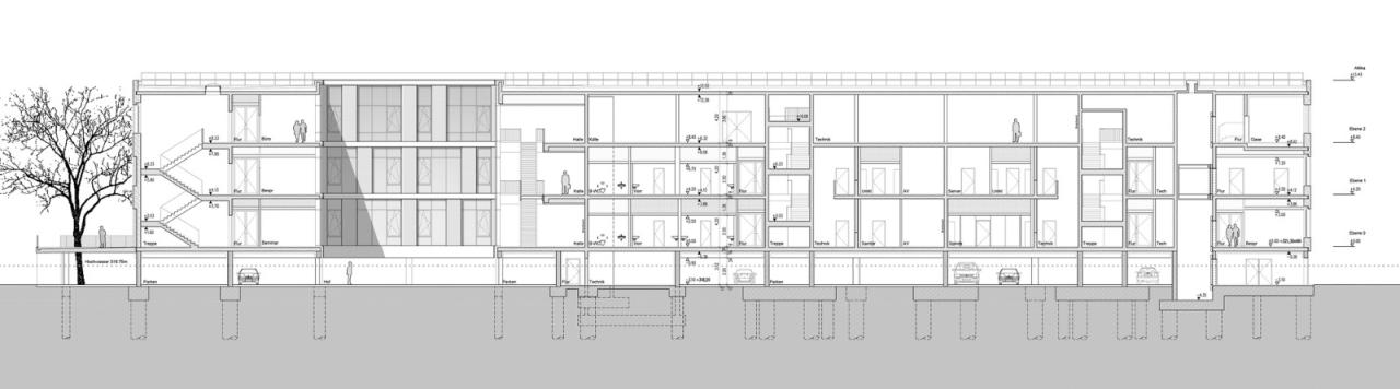
Nachhaltige Chemie 是一座用于可持续化学(绿色化学)研究和教学的新建筑。这栋新的教育建筑不仅扩大了慕尼黑工业大学施特劳宾(Straubing)科研中心,还形成了校园的北入口。这栋细长的三层建筑与码头平行,位于防洪墙后。由于该建筑地处多瑙河洪水泛滥区内,因此被用支柱抬高,离地面 3 米。
人们可以通过高架平台到达位于二楼的建筑入口。处于防洪墙高度的高架平台围绕了建筑物的大部分。进入建筑内部后,首先引入眼帘的是由廊道和开放式楼梯组成的三层高的中央大厅。这个交流的纽带将建筑划分成东西两翼。从主体结构向河岸突出的会堂则进一步彰显了建筑的特点。
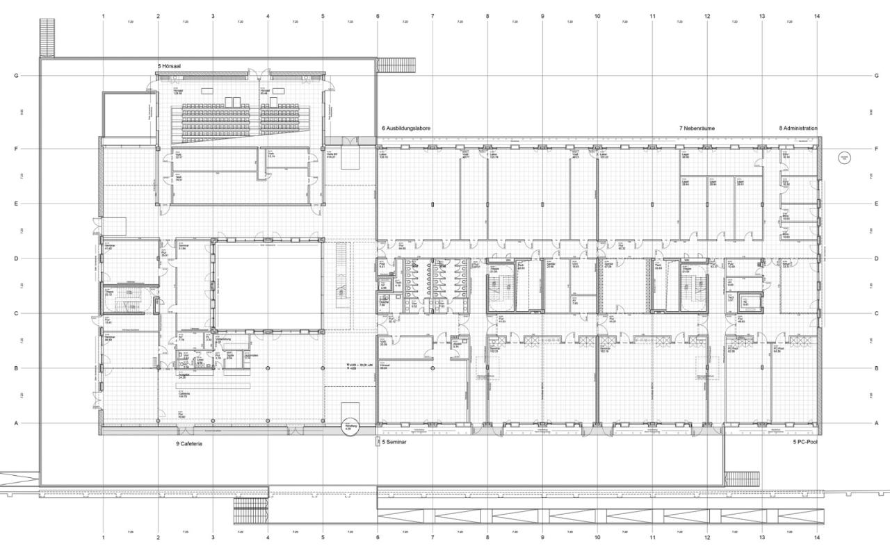
平台上的第一层主要用于教学,而上层则包含办公室、研究实验室和技术工程空间。在第一层,可分隔的大会堂被安置在北部,面朝多瑙河。一楼的西南部是一个供学生和讲师使用的食堂,并且在主入口附近设有室外座位区。大楼的西部是不同规模用于讲座和研讨会的空间,东部则设有教育实验室、较小的第二个礼堂以及行政办公室。
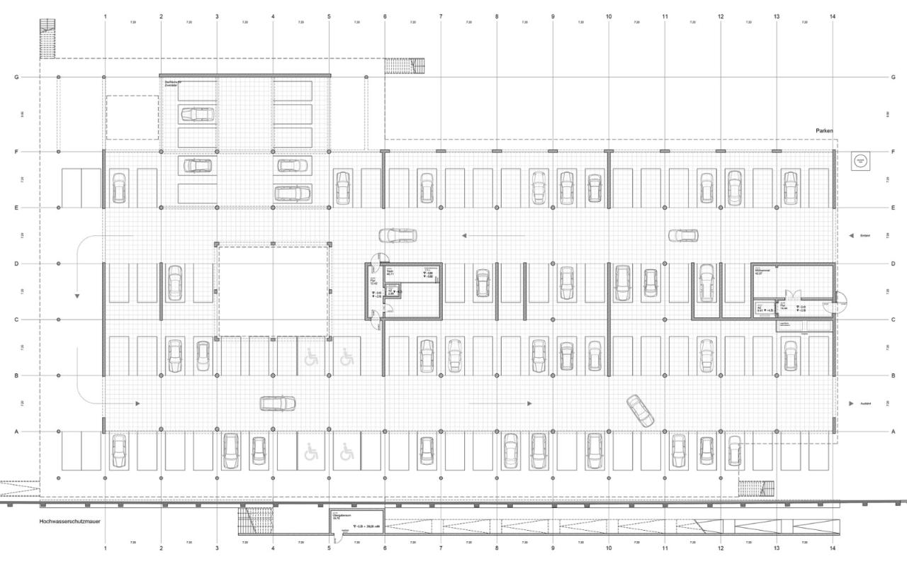
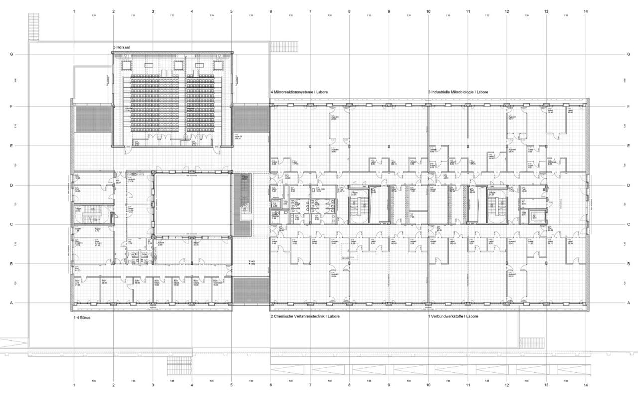
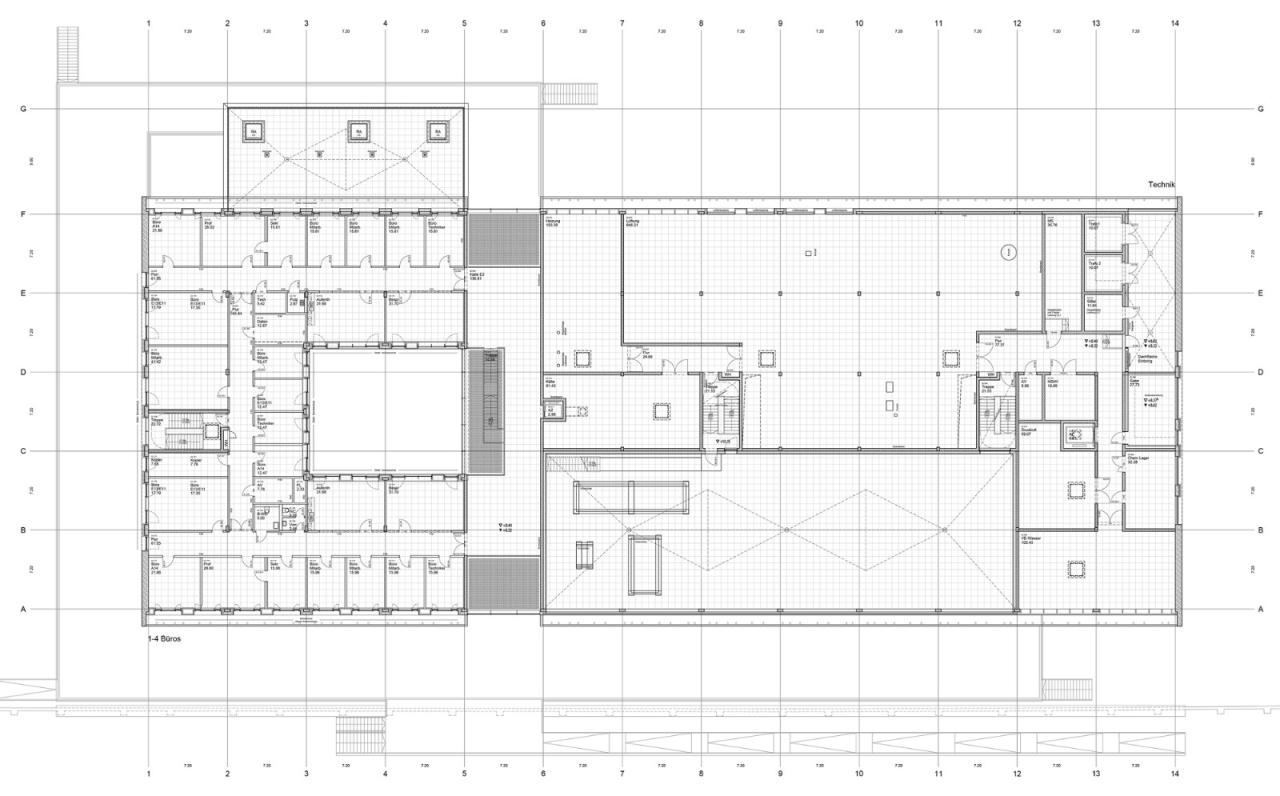
二楼的东部是研究实验室,而这些实验室则被规划为灵活的空间单元。南部的实验区域则有较高的天花板。所有的实验室都朝外。同时,与一楼一致,二楼的内部区域也被楼梯、技术和辅助空间占据。另一方面,二楼的西部包含了通往大会堂的上层入口。办公室、休息室、会议室和其他员工空间位于二楼和三楼,并围绕着西翼的中庭分布。三楼的东部包含了安置电气、暖通空调和其他中央技术单元的主要房间。在建筑的第一层和平台下面,设有停车区。停车场在可能发生洪水时必须清空。
木材、玻璃和混凝土使建筑物的外立面与众不同。大部分的建筑材料都是以可持续方式生产的。纵向的立面采用木质框架,东西立面是由整体隔热混凝土构成。部分被植被覆盖的屋顶还安装了向南的光伏元件。
项目图纸
△地下一层平面图
△一层平面图
△二层平面图
△三层平面图
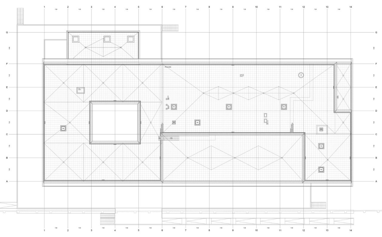
△屋顶平面图
△剖面图
△剖面图
△剖面图
△立面图
△立面图
△立面图
△立面图
项目信息
建筑师: Schuster Pechtold Schmidt Architekten
面积 : 9500 m²
项目年份 : 2021
摄影师 :Felix Meyer
厂家 : Schüco, Fural, Heidelberger Beton (Heidelberg Cement), Nora, Pollmeier, RAICO, Schörghuber, Steico, Topakustik Acoustic Wall Panel, Warema
设计团队领导 : Christian Volles
项目建筑师 : Robert Bogner, Matthias Schmidt, Adriana Lopez Perez
景观建筑师 : Hinnenthal Schaar
电力顾问 : Rücker + Schindele
HVAC 顾问 : Climaplan
结构工程 : ISP Scholz
实验室顾问 : Dr Heinekamp
土木工程 : MKS Architekten – Ingenieure
声学顾问 : Hook Farny Ingenieure
热学工程师 : IFB Ingenieure
地点: 德国,Straubing

BIM建筑网































































