墨卡托一号办公大楼作为“开拓性”建筑及标志性城市门户的代表,在德国杜伊斯堡(Duisburg)“冉冉升起”。其独特的立面沿体块短轴展开、从上至下逐级退后成为扇形,由此导引来自中央火车站的通勤者、及来自市中心的行人前来至此。同时,墨卡托一号办公大楼不寻常的轮廓打造了令人惊叹的全新内、外视野,约 100 米长、17 米宽、26 米高的架构也使其成为市区中的一大地标建筑。
虽然墨卡托一号办公楼的立面采用了哑光金属“无烟煤色”,但是其建筑外观仍旧引人注目,并展示着一种相对保守的特征。此外,这一办公楼大面积的玻璃幕墙增加了体块的透明度及轻盈感。并且,楼梯间与建筑核心筒结合,以此保有以矩形网格为图案理性划分的清晰、独立立面。
墨卡托一号建筑面积约为 9500 平方米,其中包含了办公及餐饮功能区域。其建筑结构实现了灵活的平面设计,由此让内部空间可以高度适用于所有办公概念类型。此外,城市景观从建筑物横向交叠的体量中、顺延着建筑侧面展开的扇形体块向外展开,由此优化了办公楼使用者的舒适度。同时,人们还可以从办公大楼 6 层前往宽敞的屋顶露台。
建筑一层设有 1200 平方米的高层高空间,以此用于餐饮或零售功能。餐厅和咖啡厅架构还将为建筑边全新设计的朴茨茅斯广场(Portsmouthplatz plaza)提供舒适的座位,并激活室内外公共通道空间,由此形成连接火车站及杜伊斯堡“市中心”的城市核心焦点。此外,这一办公大楼的实用性还体现在地下空间,这一大区域设有 2 层地下停车场、约 130 个停车位、以及建筑服务设施和仓储区域。
墨卡托一号的立面使用了由 Wicona 制造的 90%再生铝 Hydro CIRCAL。这一再生材料中的铝来自于先前的已拆除项目、汽车或食品包装,因此这一材料的制作、使用也可以被视为德国市场上具有开拓性的旗舰项目。此外,出于对隔热、隔音的考量,建筑安装了三重隔热太阳能控制玻璃,由此让立面玻璃板块也成为了遮阳的设施。同时,设有集成式照明的前沿天花板系统集结了供暖、制冷、换气、以及优化的声学效果等功能,由此让整体建筑有着超过 80%的热回收率。
建筑地下停车场预计设有 50 个自行车站、22 个电动车充电站,并保有未来扩建的可能性。为工程预留的屋顶区域则覆有大面积绿化,因此6层空间将享有密集的景观,并且可以让建筑系统可以更好地应对城市“热岛效应”。此外, 外立面的白色光照明将突出建筑物侧面逐级退后的扇形体量感,同时这一泛光设计还将随着不同的城市活动举办而改变颜色。例如,在圣诞市场举办期间,立面照明灯光色彩将为红色,在 MSV 足球比赛期间灯光则为蓝色与白色等。
墨卡托一号如入口大厅、侯梯厅、楼梯间等公众可达室内空间皆符合德国最大都市区“鲁尔河畔(Ruhr)”“粗与犷”的信条,此外建筑还使用了如混凝土、钢材、玻璃、石材、木材及油漆等纯粹、直接、过时时也不失优雅的材料。
项目信息
△总平面图
△负一层平面图
△一层平面图
△二层平面图
△立面图
△立面图
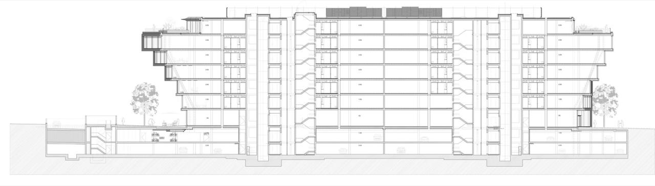
△剖面图
△剖面图
△局部示意图
△局部示意图
项目信息
建筑师: Hadi Teherani Architects
面积 : 16817 m²
项目年份 : 2020
摄影师 :Olaf Rohl, Jochen Stüber, Jörg Hempel
厂家 : AGROB BUCHTAL, Byok Lighting, Caparol, DURLUM, EGGER, Hahn Lamellen , Laminam, REC , St. Gobain, Trilux, Wicona Facadesystems (Facade), recycled
项目管理建筑师 : Bernd Muley
项目建筑师 : Anna Mass, Maciej Gerszewski, Xinghua Liu
学生建筑师 : Sabrina Weber
平面设计 : Anja Sorger
幕墙顾问 : DS-Plan Ingenieurgesellschaft mbH
泛光设计 : Kardorff Ingenieure Lichtplanung GmbH
消防工程 : HHP GmbH
建筑物理工程 : Peutz Consult GmbH
建造工程 : panta engineers
项目管理 : IQ Real Estate
业主 : Devario Invest GmbH
地点 : 德国,杜伊斯堡

BIM建筑网


































